Braintree Essex CM77 6SL Fentons Road, Rayne

Offers In Excess Of
£200,000
  • 4
  • 2
  • 2
  • Freehold
  • F Energy Efficiency Rating
  • G Council Band
Ref: CHM250117
Interested in this property?
Offers In Excess Of
£200,000

Features at a glance

  • *LOT 2 ONLY LISTING*
  • Available as a whole, or in 2 Lots.
  • Proposed 4 Bedrooms, 2 bathrooms
  • Proposal of 2,314sqf of accommodation
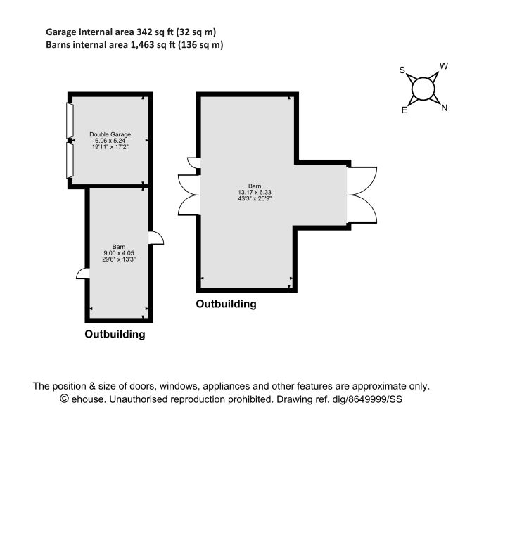
  • Array of outbuildings
  • Planning permissions approved
  • Tranquil gardens of 0.25 of an acre
  • *Proceedable Buyers Only*
  • *No Onward Chain*

A range of traditional barns that have planning permission, in a semi-rural spot.

Lot 2 - Offers Over £200,000 - Blue on plan

Buildings and Planning

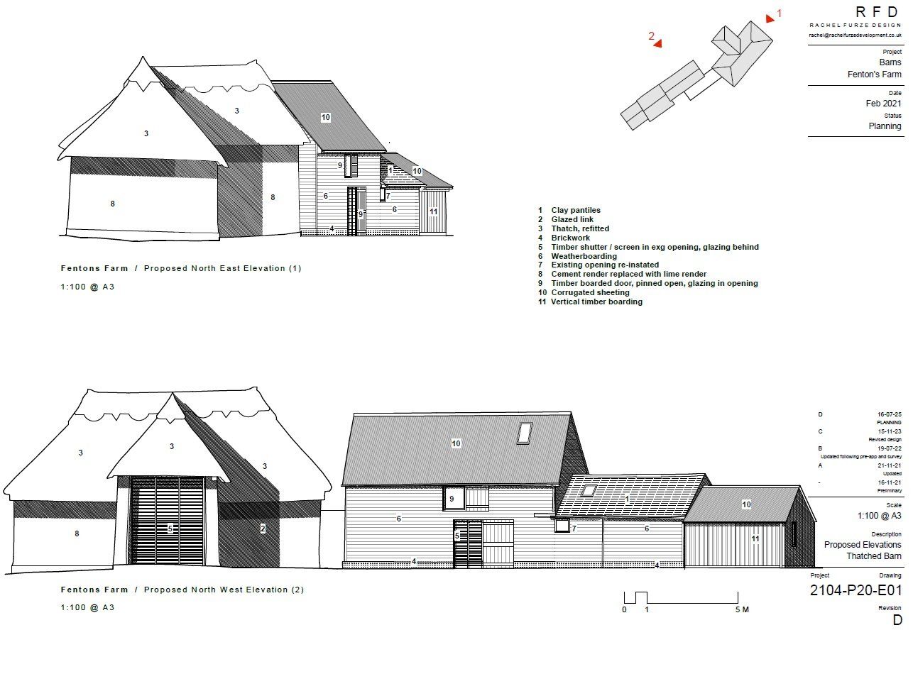
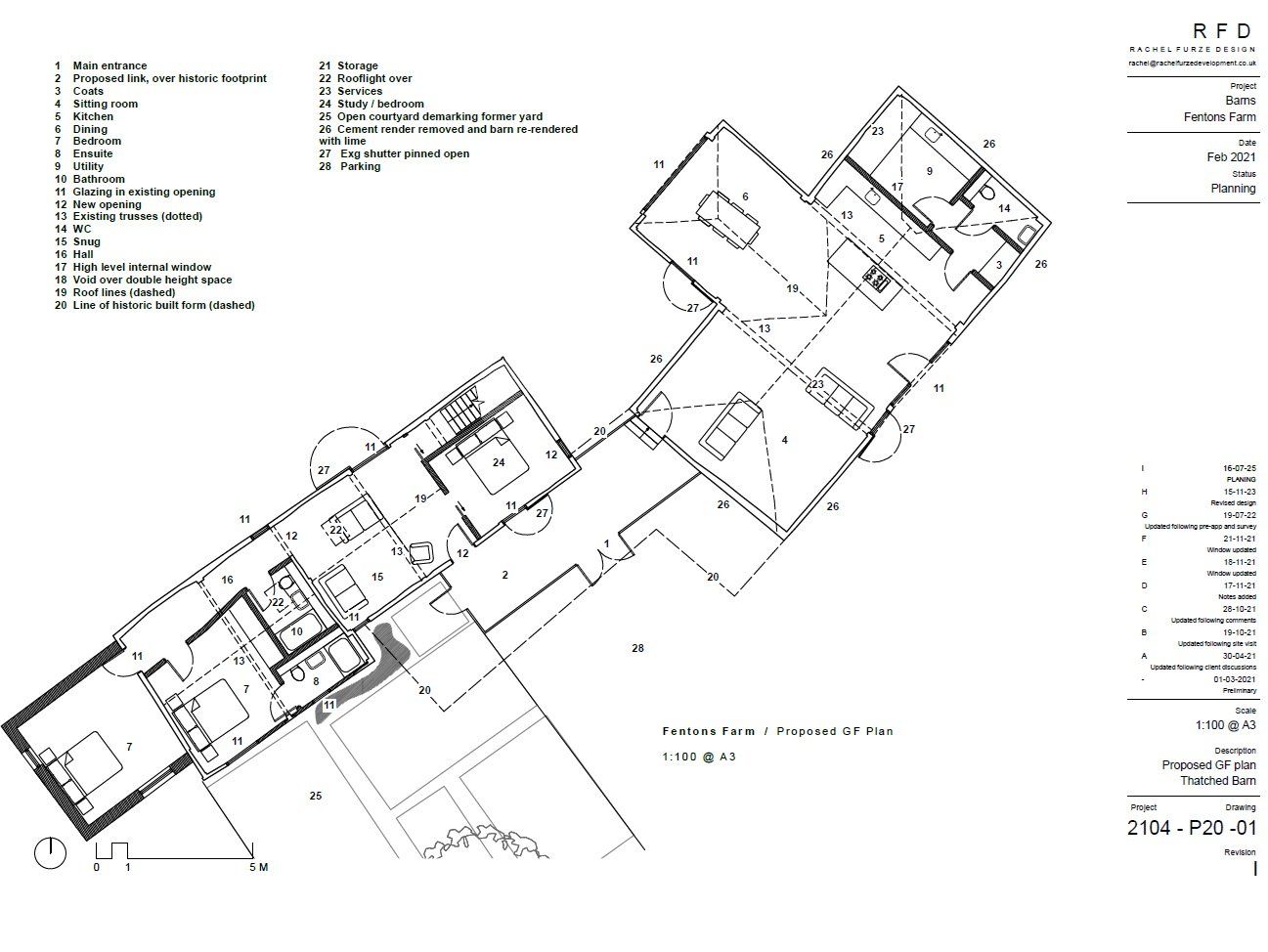
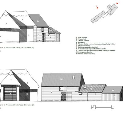
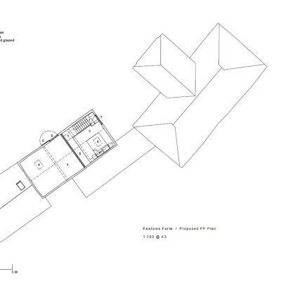
To the north of the farmhouse which is available for sale at a guide price of 'Offers Over £600,000' (pink on the plan), are 3 barns. The largest is a Grade II listed 16/17th century timber framed thatched barn with rendered walls, hipped roof and hipped midstrey. Adjoining is a listed timber-clad 18th century barn with a corrugated iron roof. Abutting this is a timber-clad double garage with pan tile roof.

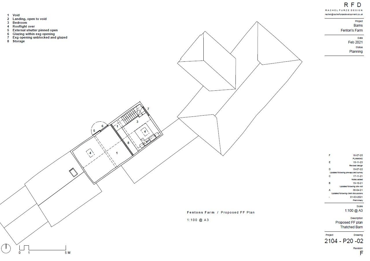
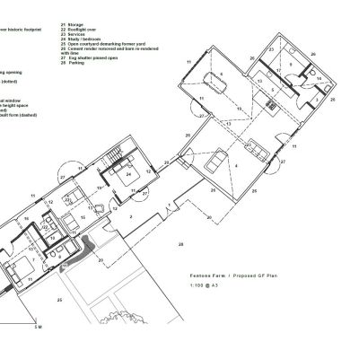
The vendor has applied for planning permission for these buildings to be converted to a new single residential dwelling, though these buildings could also be used as an annexe to the main house or home office; subject to the necessary consents.

Planning reference 25/01607/LBC | Conversion of barns into 1 No.dwellinghouse, with single-storey extension and single-storey link extension. Planning and Listed building consent submitted on 16th July 2025, HAS NOW BEEN GRANTED. Full plans and details available on Braintree District Council's website.

General Local Authority: Braintree District Council Services: The following services are available to Lot 1 (the Farmhouse) Mains electricity and shared water mains. Shared private drainage, we understand this does comply with relevant regulations. Oil fired central heating. Buyers for the barns will need to make their own investigations to having separate services. Grade II Listed Mobile and Broadband checker: Information can be found here https://checker.ofcom.org.uk/en-gb/ Council Tax: Band G Agents Note: Please note there is a proposal for a solar farm in the land to the rear of the farmhouse.

This property has 0.25 acres of land.

Outside

Fentons Farm is accessed via a gravelled driveway that curves around to a parking area between the farmhouse and the array of traditional timber framed barns.

The level grounds are mainly lawned, with mature hedging, and a variety of established trees that offer privacy while allowing views south across open fields.

Situation

The property enjoys a rural setting, yet is conveniently located close to the A120, ideal for commuters, just under two miles from the centre of Rayne and five miles from Braintree. The charming village of Rayne offers a public house, shops, restaurant, village hall, and playing field, while the larger town of Braintree provides a wide range of amenities and schools. Braintree railway station offers regular services to London Liverpool Street in around an hour, and from Chelmsford in approximately 30 minutes. The surrounding countryside and the Flitch Way provides walking routes, just a few yards from the farmhouse has been repurposed as a bridleway and traffic-free cycle path connecting nearby towns.

Distances Braintree 5 miles Great Dunmow 9.2 miles Halstead 10.4 miles Coggeshall 11.2 miles Chelmsford 11.6 miles Witham 11.6 miles

Nearby Stations Braintree Witham Chelmsford

Nearby Schools Rayne Primary Notley or Tabor Gosfield Felsted New Hall St Cedd's

Directions

CM77 6SL what3words: ///emporium.airfields.supposed - brings you to the driveway

Read more
  • Floorplan
  • Map & Street View
Map View Street View
Get Directions
Have a property you want to sell?
Ref: CHM250117
Interested in this property?
Offers In Excess Of
£200,000