Dorking Surrey RH5 5EE Partridge Lane, Newdigate

Guide Price
£700,000
Ref: GFD250190
Interested in this property?
Guide Price
£700,000

Features at a glance

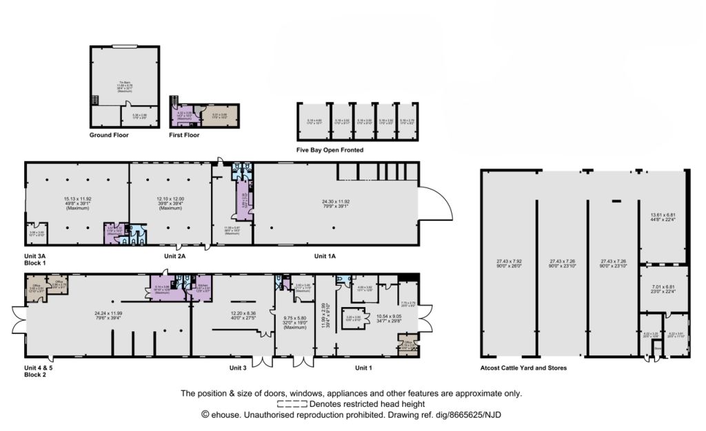
  • Almost 26,500 sq ft of buildings.
  • Commercial and agricultural.
  • Ex-poultry and steel frame barn currently let.
  • Further agricultural buildings.
  • Further 69 acres available.

Commercial and agricultural buildings set on 3.9 acres with further 69 acres available.

Commercial and agricultural buildings.

Two ex-poultry buildings and two-bay steel framed barn are let as light industrial units. Further range of agricultural buildings including a five bay open sided pole barn and Atcost six bay barn with solar panels.

Current income available upon request.

Surrounded by miles of walking, cycling and riding routes, the property sits around two miles east of Newdigate village, which has a church, village hall, store, Post Office, GP surgery, cricket club, pub and an infant school. More extensive shopping, recreational and sporting facilities can be found in the market towns of Dorking, Reigate and Horsham. Local sporting amenities include golf courses and equestrian facilities including Coombelands, Hickstead, Felbridge Showground, polo at Cowdray Park and Surrey Union pony club and hunt. The area offers a good selection of state primary and secondary schooling together with independent schools. Transportation links are excellent: the A24 links to the A3, M25 and motorway network, giving access to major regional centres, the south coast, London and Gatwick airport. Horley and Redhill mainline stations offer regular services to London Victoria from around 35 minutes.

This property has 3.9 acres of land.

Directions

what3words: ///stays.aside.random

Read more
  • Floorplan
  • Map & Street View
Map View Street View
Get Directions
Ref: GFD250190
Interested in this property?
Guide Price
£700,000