Oswestry Shropshire SY11 3FX 7 Ashmore Grove, Gobowen

Guide Price
£204,000
  • 3
  • 2
  • 2
  • Freehold
Ref: WMH240084
Interested in this property?
Guide Price
£204,000

Features at a glance

  • Village Location
  • Three Bedrooms
  • Kitchen/Dining Room
  • Sitting Room
  • Cloakroom
  • En Suite Shower
  • Air Source Heat Pump
  • Driveway
  • Rear Garden

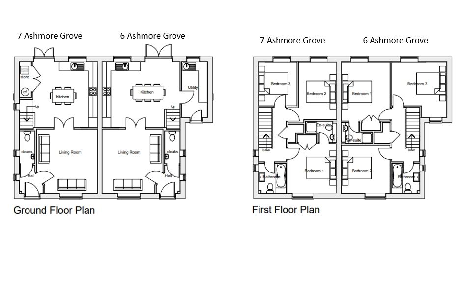
A brand new semi-detached home offering generous accommodation of around 1060 square feet whilst boasting a good size garden and driveway.

The property Providing three spacious bedrooms and a wealth of beautifully presented living space of around 1060 square feet over two floors, this property with handsome brick elevations offers stylish modern fittings including air source heating combined with understated natural décor to create a thoroughly pleasant and comfortable living space.

The welcoming entrance hall has porcelain tiled floor and cloakroom, a door leads to the generous living room. Double opening doors open up into the wonderful kitchen/dining room. The well-equipped bespoke kitchen supplied by Millard & Lancaster with porcelain tiled floor has integrated appliances and offers wall and floor units with granite work surfaces, there are double opening doors leading out to the rear patio which is ideal for alfresco dining and entertaining.

On the first floor the principal bedroom boasts a modern en suite shower and built in wardrobe, there are two additional bedrooms and stylish family bathroom.

Outside

Outside The rear garden has an ample paved patio and courtesy lighting. To the front a pathway gives access to the front door and driveway for approximately two cars.

Agents Notes: There will be a management charge per dwelling to contribute to the communal areas/services including the unadopted road and pumping station - please consult with your solicitor for verification.

These discounted homes are only available to purchasers who match the required buyer criteria. Please ask the agent for further information.

The front elevation and site plans are CGI and the internal photos are of the view home at Ashmore Grove

Services: Air source heating, mains water and electric, mains foul drainage via pumping station.

Situation

Location The village of Gobowen is surrounded by quintessentially English countryside and boasts a plethora of local amenities including shops, primary school and public houses - the active All Saints village hall holds several events throughout the year.

There is an abundance of fabulous walks on the doorstep as well as numerous sporting pursuits which include regular meetings at Bangor-on-Dee racecourse, popular golf club at Oswestry as well as Lion Quays Gym and Spa.

The vibrant market town of Oswestry is about 3 miles away, within the characterful town centre there is an abundance of excellent independent shops and cafes as well as supermarkets and additional leisure facilities. Oswestry has several restaurants and public houses and every year plays host to a popular food & drink festival.

There are several well-regarded schools in the area, including the independent Oswestry School and Moreton Hall.

Gobowen train station offers good connecting links north to the historic cities of Chester and Manchester and south to the vibrant county town of Shrewsbury & London, for frequent air travelers there are airports at Birmingham International, Manchester & Liverpool. The A5 gives access to the nearby M54 link providing convenient access to the Midlands motorway network and regional hubs.

Distances • Oswestry 3 miles • Wrexham 13 miles • Shrewsbury 18 miles • Chester 24 miles • Aberdovey 61 miles

Nearby Stations • Gobowen • Shrewsbury

Key Locations • Whittington Castle • Oswestry Leisure Centre • Cae Glas Park • River Severn • Chirk Castle (National Trust) • Erddig (National Trust) • British Iron Works Centre • Oswestry Golf Club • Bangor-on-Dee Racecourse • Lion Quays Gym and Spa

Nearby Schools • Oswestry School • Marches School • Ellesmere College • Moreton Hall • Packwood Haugh Prep • Prestfelde Prep • Adcote School for Girls • Shrewsbury School • Shrewsbury High School for Girls • Gobowen Primary School

Directions

Directions Post Code SY11 3FX what3words: ///prancing.helpful.jots

Please note - you are visiting a working site. Our team will ensure you are aware of any site health and safety measures prior to any viewings and these should be followed at all times. It is advised to wear sturdy and sensible shoes when attending any development site.

Read more
  • Floorplan
  • Map & Street View
Map View Street View
Get Directions
Ref: WMH240084
Interested in this property?
Guide Price
£204,000

Shropshire & Mid Wales Estate Agents

Theatre Royal, 16 Shoplatch
Shrewsbury
SY1 1HR

+44 1743 284 200