Nr. Tetbury GL8 8YL Babdown Farm,

Guide Price
£950,000
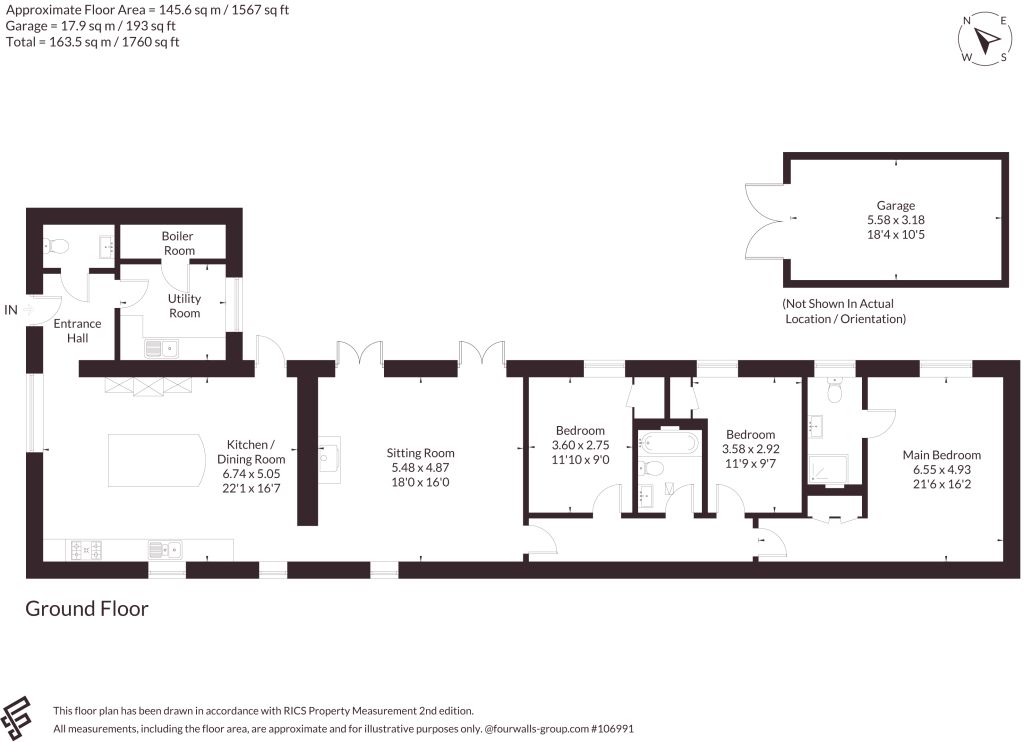
  • 3
  • 2
  • 1
  • Freehold
  • D Energy Efficiency Rating
  • F Council Band
Ref: CRN260026
Interested in this property?
Guide Price
£950,000

A stunning barn conversion finished to a high specification, set within an award-winning farmstead.

The Stables is a striking and beautifully presented former agricultural building, forming one of just seven individual barn conversions alongside a farmhouse at Babdown Farm, formerly a working ‘Model Farm’ redeveloped by award winning Stonewood Homes.

The property has been finished and maintained to an exceptional standard throughout, successfully blending its original character with high-quality contemporary finishes to create a stylish and highly desirable home.

Internally, the house retains a wealth of character features, including exposed timbers and traditional detailing, while incorporating modern design elements and a carefully considered layout suited to modern living. The accommodation is light-filled and well proportioned, with a natural flow between the principal living spaces.

At the heart of the home is an impressive open-plan living environment, designed for both everyday living and entertaining. The kitchen and dining area provide a sociable and elegant space, enhanced by high-quality finishes and a feature wall that adds depth and character. The adjoining living space offers a comfortable and inviting setting, with a strong sense of openness and connection throughout.

The specification is to a very high standard, including limestone and solid oak flooring throughout, complemented by underfloor heating powered by an oil-fired system, ensuring both comfort and efficiency.

The bedroom accommodation is equally well appointed. The principal bedroom enjoys attractive views across the garden and towards the model farm courtyard, creating a calm and private retreat. Additional bedrooms offer flexibility for guests, family or home working, all presented to the same high standard.

Overall, The Stables represents a rare opportunity to acquire a property that combines architectural character, modern specification and an exceptional level of presentation within a cohesive and well-regarded development.

Outside

The property is set within attractively maintained surroundings that reflect the overall quality of the development. The outside space provides a natural extension of the house, offering areas for relaxation and enjoyment within a peaceful and private setting.

Parking is well provided, with space for multiple vehicles, together with the benefit of a garage, offering both convenience and additional storage. The wider setting of Babdown Farm enhances the sense of community while retaining privacy, with the layout of the development carefully designed to create an attractive and cohesive environment.

Situation

Babdown Farm is situated in a particularly attractive rural location within the Cotswolds, offering a high degree of tranquillity while remaining well connected. The nearby market town of Tetbury provides a wide range of independent shops, cafés and restaurants, while Cirencester and Malmesbury offer more extensive amenities.

The area is renowned for its outstanding natural beauty and offers a wealth of leisure opportunities, including walking, riding and cycling. Nearby attractions include Westonbirt Arboretum, one of the country’s most celebrated arboretums, as well as a number of country estates and parks.

Transport links are excellent, with mainline rail services from Kemble providing direct access to London Paddington. The M4 motorway is also within easy reach, offering convenient connections to London, Bristol and the wider motorway network.

Directions

Postcode: GL8 8YL

Read more
  • Floorplan
  • Map & Street View
Map View Street View
Get Directions
Have a property you want to sell?
Ref: CRN260026
Interested in this property?
Guide Price
£950,000