London NW3 4EE Belsize Park, Belsize Park

Guide Price
£1,200,000
  • 2
  • 3
  • 1
  • Share of Freehold
  • D Energy Efficiency Rating
  • G Council Band
Ref: HAM250017
Interested in this property?
Guide Price
£1,200,000

Meticulously refurbished two-bedroom flat in Belsize Park

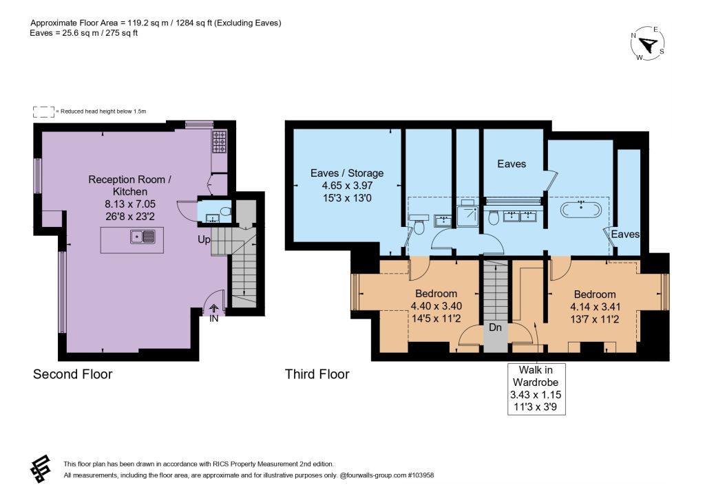
The top two floors of an imposing stucco-fronted Victorian Property provide the setting for this contemporarily-designed flat. It is on one of the area’s most sought-after streets, and enjoys an elevated position and very quiet position over the leafy gardens of Belsize Park and the adjoining Belsize Lane. The property has an abundance of natural light and has been refurbished to an exemplary standard. There is electric underfloor heating on both levels. Upon arrival the front door opens directly into the stunning living space that includes a well-equipped and thoughtfully designed kitchen, featuring luxury appliances including a six-ring Wolf gas hob/oven plus US style Bertazzoni fridge. In turn this is adjacent to the open plan dining area, and a guest w.c. On the upper floor there is the principal bedroom with en-suite bathroom and walk-in wardrobe. There is a second double bedroom, with its own facilities, and a dual-access shower room. Across the width of the property there is ample eaves storage. The flat benefits further from a linked digital sound system and three wall-mounted LG televisions.

Situation

Ideally positioned within 0.3 mi of highly desirable Belsize Village, the property is also easily accessible to Swiss Cottage, Hampstead, Primrose Hill, and St. John's Wood. It is superbly well served by public transport - within 0.2 mi of Swiss Cottage (Jubilee Line), 0.3 mi of Finchley Road (Metropolitan Line), and 0.6 mi of Belsize Park (Northern Line). Even nearer are two frequent buses to Hampstead and other destinations. There are three further Overground stations Hampstead Heath (0.9mile), South Hampstead (0.5mile), Finchley Road and Frognal (0.7mile).

Read more
  • Floorplan
  • Map & Street View
Map View Street View
Get Directions
Have a property you want to sell?
Ref: HAM250017
Interested in this property?
Guide Price
£1,200,000