Tiverton Devon EX16 8RR Bickleigh

Asking Price
£850,000
  • 5
  • 4
  • 3
  • Freehold
  • D Energy Efficiency Rating
  • G Council Band
Ref: EXE120219
Interested in this property?
Asking Price
£850,000

Features at a glance

  • ONLINE VIEWING TOUR AVAILABLE
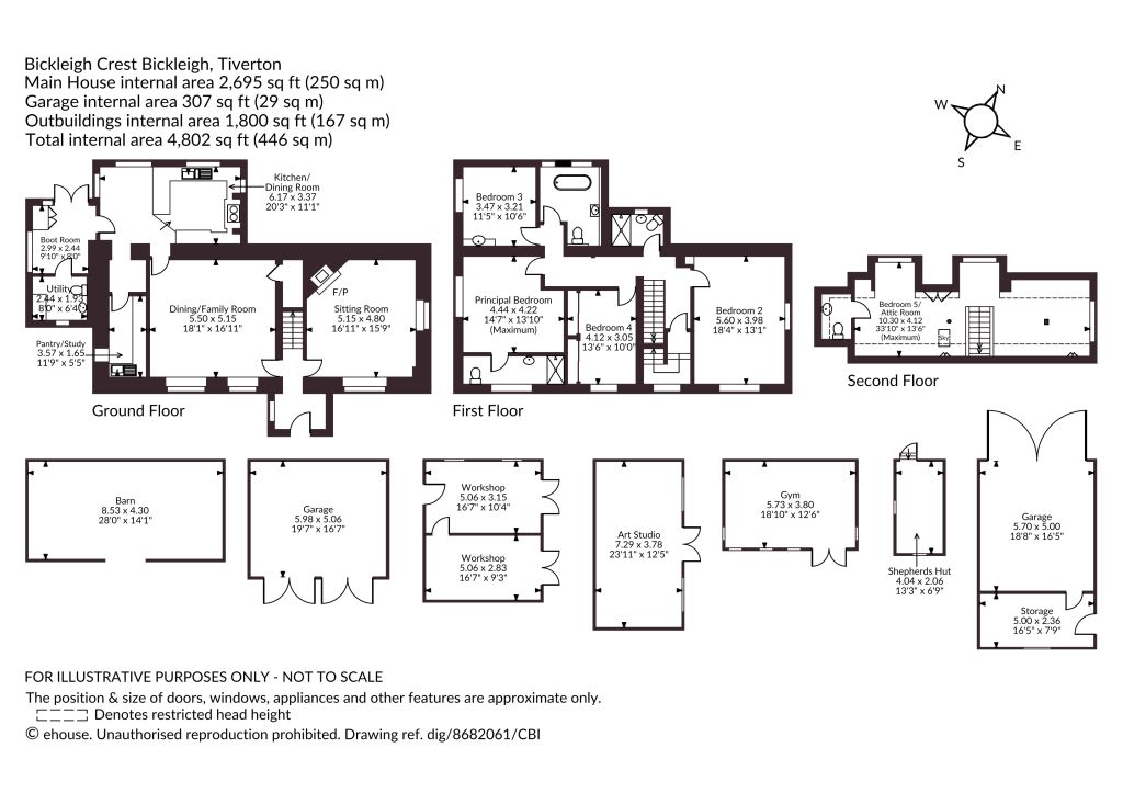
  • Over 2,600 sq ft of versatile living accommodation
  • Far-reaching rural views
  • Solar panels + EV charging
  • Various outbuildings inc a barn, workshops & art studio
  • Home gym + shepherd's hut
  • Double garaging
  • Approx. 3 acres of grounds inc 2 fenced paddocks
  • Potential equestrian use or land for livestock
  • Approx. 9 miles to Tiverton Parkway station

A substancial detached house with just under 3 acres and several outbuildings in a rural setting.

Bickleigh Crest is an impressive family home providing over 4,800 sq ft of total accommodation, including a flexible array of outbuildings. The property combines comfortable traditional features with modern amenities, notably featuring a roof-mounted solar array and bright, expansive interiors that make the most of its elevated position.

The ground floor is well arranged for both family life and entertaining, with the accommodation flowing from a welcoming entrance porch into a central hall. To one side is a well-proportioned sitting room, centred around a wood-burning stove set within a chimney breast, while to the other side is a spacious dual-aspect dining/family room. The kitchen/dining room is accessed from the dining/family room and provides a light-filled, triple-aspect space, fitted with bespoke cabinetry, a traditional Aga and a butler sink. A utility room and adjoining boot room offer further practicality, particularly suited to a rural setting.

On the first floor, there are four bedrooms, including a principal suite with an en suite shower room. A family bathroom with a roll-top claw-foot bath and a separate WC/shower room serves the remaining rooms. The second floor consists of a vast, 33ft attic room or fifth bedroom, offering potential for a hobby space, teenager's den or additional guest suite.

This property has 3 acres of land.

Outside

The property is set within significant gardens and grounds totalling just under three acres, surrounded by dog-proof fencing and hedging. A large gravel driveway offers ample parking and access to the garages. The outbuildings are a standout feature, comprising a barn, gym, art studio, workshops, kennels and a shepherd’s hut. These provide exceptional scope for those working from home or seeking creative studio spaces. There are two fenced paddocks, suitable for equestrian use or livestock, while the gardens include various patio areas for al fresco dining, a vegetable garden, fruit cage/chicken run and a poly tunnel, all positioned to take in the far-reaching views across the Exe Valley and surrounding rolling hills.

Situation

The property lies in a rural position on the edge of the sought-after village of Bickleigh, surrounded by the rolling countryside of the Exe Valley in Mid Devon. The village has a well- regarded primary school, church and pub. Many opportunities for walking and cycling can be found direct from the property whilst the beautiful Exmoor National Park is within easy reach. The property is set mid-way between the dramatic North and South Devon coastlines offering miles of pristine beaches to explore. The historic town of Tiverton (4 miles) provides a wider range of everyday amenities, including high street shopping, supermarkets and leisure facilities. The town also offers an excellent selection of schools, including the renowned independent Blundell’s School, for which the property is in the school's reduced fee catchment area. Exeter, approximately 11 miles away is one of the most thriving cities in the South West and offers a wide choice of cultural activities with two theatres, a museum, arts centre and a wealth of good restaurants and shopping including John Lewis. Many good primary and secondary schools can be found in Exeter including Exeter School, Exeter College (Ofsted ‘Outstanding’) and The Maynard, whilst Exeter University is recognised as one of the best universities in the country.

Tiverton Parkway mainline station is 9 miles away providing direct services to London Paddington and Exeter. Exeter St. David's station offers services to London Waterloo. The M5 motorway provides links to the A38 to Plymouth, or the A30 to Cornwall to the South and Bristol and London to the north and east. Exeter Airport is the regional airport for Devon and is within easy reach.

Directions

EX16 8RR

Read more
  • Floorplan
  • Virtual Viewing
  • Map & Street View
Map View Street View
Get Directions
Have a property you want to sell?
Ref: EXE120219
Interested in this property?
Asking Price
£850,000