Fulham Estate & Letting Agents
701 Fulham Road
London
SW6 5UL
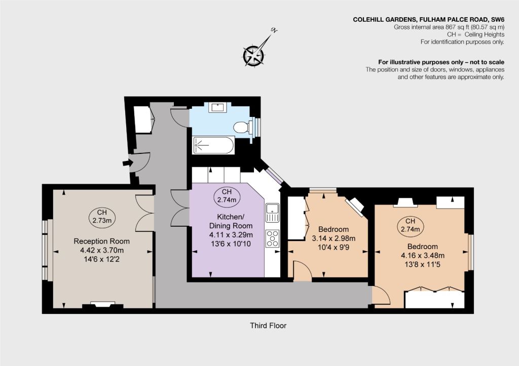
A fantastic two double bedroom, top floor apartment available to rent in this popular mansion block.
The property comprises a modern, fully-fitted eat-in kitchen, separate reception room and two double bedrooms both with excellent fitted storage as well as an additional family bathroom.
The apartment enjoys a quiet location on Colehill Gardens, moments from the lovely open spaces of Bishops Park, the attractive Thames Path and Bishops Park Tennis Centre. The property is well served by transport links with Putney Bridge underground station just a short walk away and many bus routes running up the Fulham Palace Road.
EPC Rating D
Read more