St. Albans Hertfordshire AL4 8ER Coleman Green Lane, Wheathampstead

Asking Price
£730 per year
plus charges
Ref: ALB250009
Interested in this property?
Asking Price
£730 per year
plus charges

Commmercial Storage Unit to Rent in Rural Location

Coming to the Market – December 2025

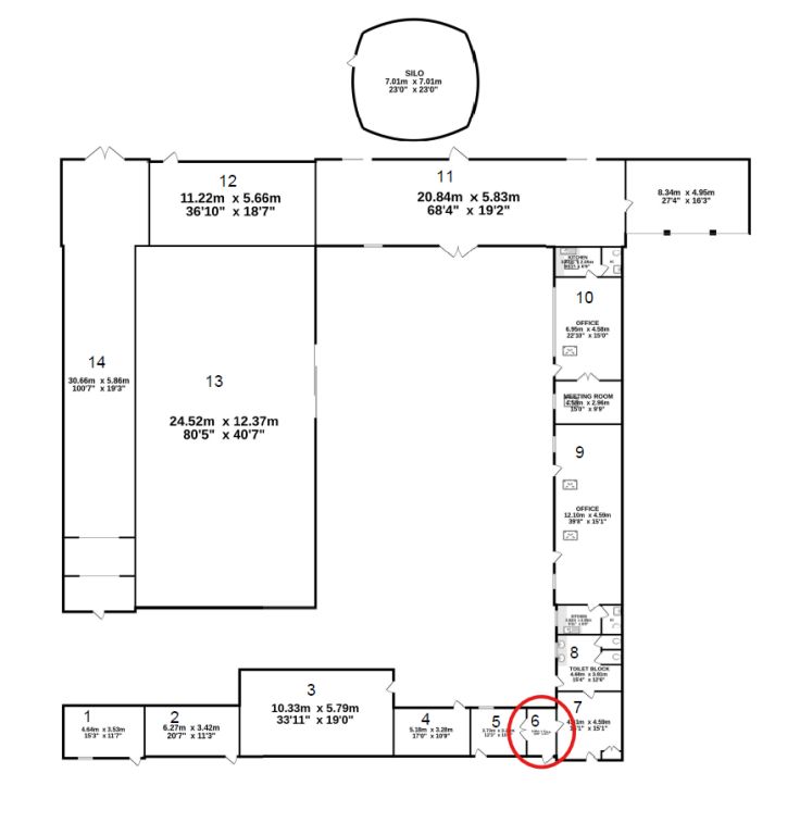
Samuels Farm Buildings Samuels Farm Buildings comprise a recently developed range of high-quality commercial units situated in an attractive rural location. The development offers a selection of rural office suites and commercial storage units of varying sizes, providing flexibility for a range of business requirements. Tenants will benefit from: • Allocated parking spaces • Communal toilet facilities • Automated security gates, ensuring controlled access and enhanced site security Set back from the main road, the premises provide a quiet and secure working environment, ideal for occupiers seeking functional space within a well-managed rural setting. Unit 6, extending to approximately 73 sq ft, is considered suitable for storage purposes. Viewings: Viewings are strictly by appointment only.

Please note, site access will be restricted to 7am-7pm, Monday-Sunday.

Additional charges such as VAT and service charge will apply.

For further information or to arrange a viewing, please contact Strutt & Parker St Albans

Read more
  • Floorplan
  • Map & Street View
Map View Street View
Get Directions
Ref: ALB250009
Interested in this property?
Asking Price
£730 per year
plus charges

St Albans Estate Agents

15 London Road
St Albans
AL1 1LA

+44 1727 840 285