Pulborough West Sussex RH20 3ER Crays Lane, Thakeham

Guide Price
£975,000
  • 4
  • 2
  • 4
  • Freehold
  • G Council Band
Ref: GFD250219
Interested in this property?
Guide Price
£975,000

Features at a glance

  • Grade II listed property offering period charm
  • Drawing room with wood burning stove
  • 3 further reception rooms
  • Kitchen/breakfast room forms heart of the house
  • Principal bedroom with dressing room
  • 3 further bedrooms
  • 2 Bathrooms
  • 0.27 acres garden with view over the fields
  • Garage, summer house and stores

A charming detached 4 bedroom house situated in a picturesque setting adjacent to the village church

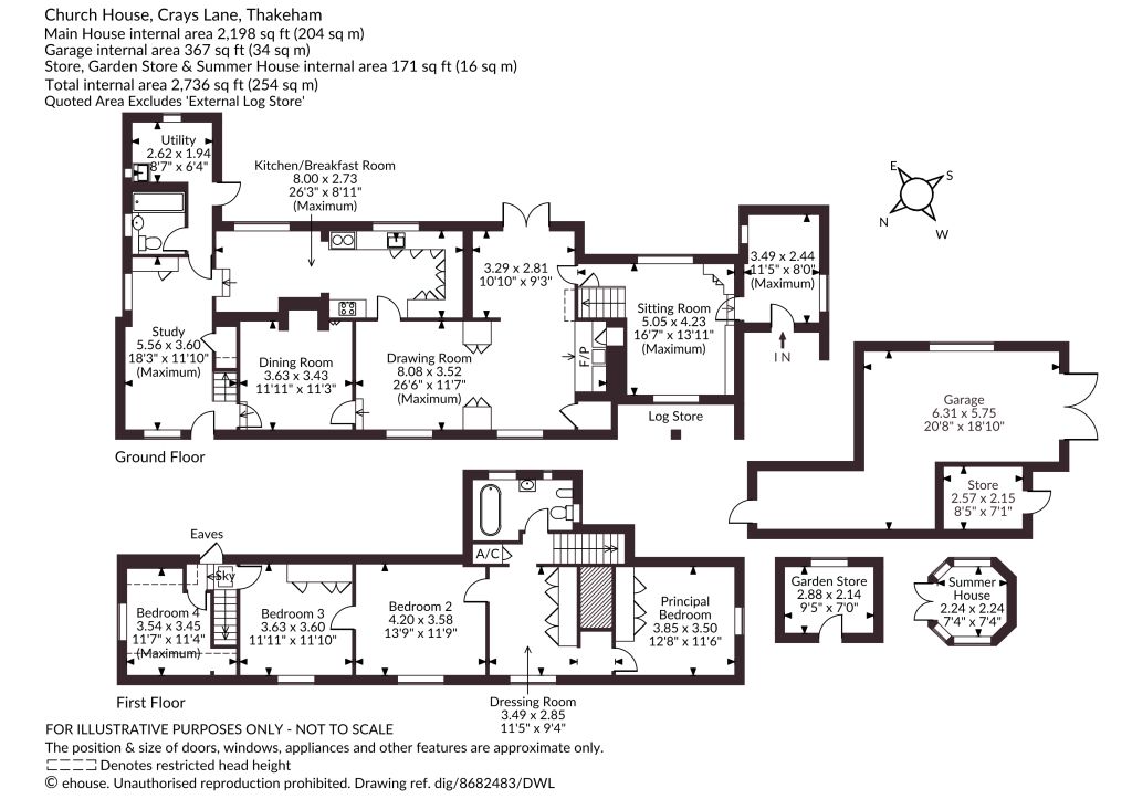
Church House is a handsome and enchanting timber-framed home, displaying striking black-and-white elevations beneath a clay-tiled roof. The property offers nearly 2,200 sq ft of beautifully preserved accommodation, rich in historic character and architectural interest. Period features are evident throughout, including heavily timbered ceilings, leaded light windows and impressive inglenook fireplaces.

The ground floor provides versatile and well-balanced accommodation. An entrance porch opens into a comfortable sitting room, which in turn leads to the principal reception spaces. The well-proportioned drawing room features a wood-burning stove and French doors opening onto the garden, while a separate formal dining room provides an ideal setting for entertaining. A study offers a quiet space for home working. The kitchen/breakfast room forms the heart of the house, fitted with a traditional Rayburn, tiled flooring and space for a good-sized table, with an adjoining utility area. A modern bathroom completes the ground floor.

On the first floor there are four well-proportioned bedrooms. The principal bedroom is a particular feature, benefiting from a substantial adjoining dressing room. The bedrooms are served by a family bathroom, fitted with a freestanding roll-top bath.

Outside The gardens are a particular feature of the property, wrapping around the house and affording a high degree of privacy. To the side, a characterful stone-paved courtyard incorporates an ornamental well. The main gardens are predominantly laid to lawn, interspersed with mature trees and well-stocked borders. A paved terrace adjoins the house, providing an ideal space for outdoor dining, while a raised terrace, set within the gentle slope of the garden, enjoys views towards the neighbouring village church. The property also includes a detached summer house, garden store and a separate garage.

This property has 0.27 acres of land.

Situation

Location The property lies in a peaceful position along Crays Lane, close to the heart of the desirable West Sussex village of Thakeham, surrounded by attractive countryside at the foot of the South Downs National Park. The village offers a range of local amenities including a public house, village hall, parish church and a well-regarded primary school, while more extensive facilities are available in the nearby towns of Storrington and Pulborough, both providing a selection of shops, supermarkets and everyday services. The historic market town of Horsham lies approximately 12 miles to the north, offering a wider range of shopping, leisure and cultural amenities. Schooling in the area is well regarded, with a choice of highly regarded independent schools including Windlesham House, Dorset House, Christ’s Hospital and Farlington School. Communications are excellent, with Pulborough railway station providing regular services to London Victoria, and the A24 offering access north towards Horsham, Guildford and London, and south towards Worthing and the coast.

Directions

RH20

Read more
  • Floorplan
  • Map & Street View
Map View Street View
Get Directions
Have a property you want to sell?
Ref: GFD250219
Interested in this property?
Guide Price
£975,000