Haslemere Surrey GU27 1LS Critchmere Hill

Guide Price
£1,650,000
  • 4
  • 3
  • 2
  • Freehold
Ref: SWH250069
Interested in this property?
Guide Price
£1,650,000

Features at a glance

  • • EPC A rated home offering significantly lower running costs and long term energy savings
  • • A beautifully designed four bedroom detached home combining classic country styling with modern efficiency
  • • Advanced energy system including solar panels, battery storage and air source heating for greater independence
  • • Electric car and bike charging powered by renewable energy generated on site
  • • Thoughtfully arranged living space with a formal reception room, study, cloakroom and dedicated utility area
  • • Underfloor heating, integrated media wiring and high speed fibre broadband throughout
  • • Striking kitchen, dining and family space designed for everyday living and entertaining
  • • Secure and well built with alarm system, reinforced entrance door and locking windows
  • • Attractive exterior with traditional brickwork, oak entrance and covered parking
  • • Located in Haslemere close to well regarded schools, countryside walks and direct trains to London Waterloo

A beautiful detached home in Haslemere with outstanding design, bespoke kitchen and EPC A

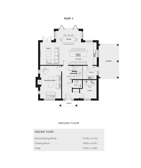
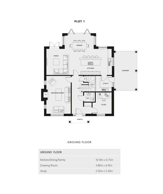
Plot 1 Truman Place is a stunning, newly built, detached home which is presented to a superb standard and includes many luxurious features. The house offers generous accommodation with a light and spacious feel throughout. The property is sold with the benefit of an EPC A rating and a 10 year warranty.

The Charles Yorke kitchen/breakfast/family room is a real feature of the house, combining generous space with bespoke craftsmanship. Finished with stone worktops and breakfast bar, Quooker hot tap and premium Siemens appliances, it provides the perfect setting for entertaining or relaxed family life.

Full height glazing and a seamless flow into the dining and family area create a light filled space that truly defines the home.

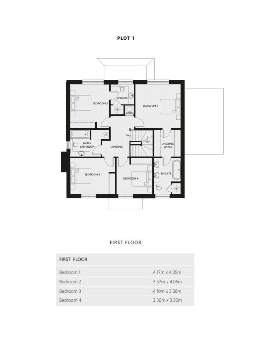
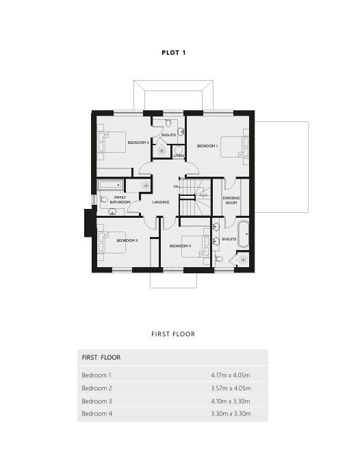
Beyond the kitchen, interiors showcase meticulous attention to detail with handmade joinery, luxury Italian tiling, bespoke fitted wardrobes and elegant cornice finishes. The layout includes a welcoming lounge with feature fireplace, a dedicated study and practical utility, while upstairs the bedrooms are accompanied by beautifully appointed bathrooms and en suites with walk in wet rooms and bespoke vanity units. Every element reflects Kirkby Homes’ commitment to combining traditional character with modern comfort.

These homes are built with the latest renewable technology including solar panels, battery storage, air source heat pumps and under floor heating to the ground floor. Electric car and bike charging points are included, supported by a Megaflo pressurised hot water system and high grade insulation. Together these features deliver lower running costs, long term savings and an EPC A rating, offering buyers energy sustainability for the future.

Outside

The property offers a private driveway, double carport and landscaped rear garden designed by Chelsea Flower Show Gold medallist Clifford Stanley.

The development itself benefits from communal planting, a pond and attractive pathways laid in Indian sandstone.

Situation

Set in a desirable position in Haslemere, Truman Place enjoys a blend of countryside charm and town convenience. The high street is lined with independent shops, cafés, regular markets and supermarkets, while a choice of restaurants, pubs, gyms and golf courses are close at hand. Schools in the area are well regarded and there are plenty of family friendly amenities.

The surrounding countryside is a major attraction, with the South Downs National Park, Blackdown and the Devil’s Punch Bowl providing miles of National Trust woodland, open heath and scenic trails for walking, cycling and riding.

For commuters, Haslemere station offers direct services to London Waterloo in under an hour, while the nearby A3 provides straightforward connections to Guildford, London and the south coast.

IMPORTANT NOTICE Strutt & Parker gives notice that: 1. These particulars do not constitute an offer or contract or part thereof. 2. All descriptions, photographs and plans are for guidance only and should not be relied upon as statements or representations of fact. All measurements and specifications are approximate, are not necessarily to scale and may be subject to change. Any prospective purchaser must satisfy themselves of the correctness of the information within the particulars by inspection or otherwise. 3. Some images may be Computer Generated Images, are indicative only and may differ from the final build product. 4. Images may be of the show home rather than the individual unit. 5. Lifestyle images are indicative only. 6. Strutt & Parker does not have any authority to give any representations or warranties whatsoever in relation to this property (including but not limited to planning/building regulations), nor can it enter into any contract on behalf of the vendor. 7. Strutt & Parker does not accept responsibility for any expenses incurred by prospective purchasers in inspecting properties which have been sold, let or withdrawn. 8. We are able to refer you to SPF Private Clients Limited (“SPF”) for mortgage broking services, and to Alexander James Interiors (“AJI”), an interior design service. Should you decide to use the services of SPF, we will receive a referral fee from them of 25% of the aggregate of the fee paid to them by you for the arrangement of a mortgage and any fee received by them from the product provider. Should you decide to use the services of AJI, we will receive a referral fee of 10% of the net income received by AJI for the services they provide to you. 9. If there is anything of particular importance to you, please contact this office and Strutt & Parker will try to have the information checked for you. Photographs taken April 2019. Particulars prepared April 2019. Strutt & Parker is a trading style of BNP Paribas Real Estate Advisory & Property Management UK Limited, a private limited company registered in England & Wales with company number 04176965 whose registered office is at 5 Aldermanbury Square, London EC2V 7BP.

Directions

From our offices in Haslemere High Street: Turn right at the town hall and proceed along Lower Street for a total of 1.6 miles, passing the railway station on the right hand side. Turn left into Critchmere Hill (signposted Woolmer Hill) and the property can be found towards the bottom of the hill on the right hand side.

What3Words: ///zinc.steers.retain

Read more
  • Floorplan
  • Virtual Viewing
  • Map & Street View
Map View Street View
Get Directions
Ref: SWH250069
Interested in this property?
Guide Price
£1,650,000