Buckie Banffshire AB56 5TR Deskford

Offers Over
£1,995,000
  • 8
  • 6
  • 6
  • Freehold
  • E Energy Efficiency Rating
  • G Council Band
Ref: CSD253603
Interested in this property?
Offers Over
£1,995,000

Features at a glance

  • Central conservatory reception hall
  • 6 Receptions rooms & study
  • 4 Kitchens/breakfast rooms
  • 8 Bedrooms with en suite/WC
  • Galleried landing
  • Courtyard gardens
  • 2 Bed cottage
  • Swimming pool with sauna
  • Large shed with office space above
  • Approx. 5.4 acres

A beautifully converted steading with spectacular ornamental gardens and landscaped grounds

A sprawling historic property set in peaceful north Aberdeenshire, featuring a substantial main house and holiday cottages centred around one of the country’s most renowned private gardens. The property sits amid beautiful rolling grounds, with open countryside and the Moray Firth coastline just moments away.

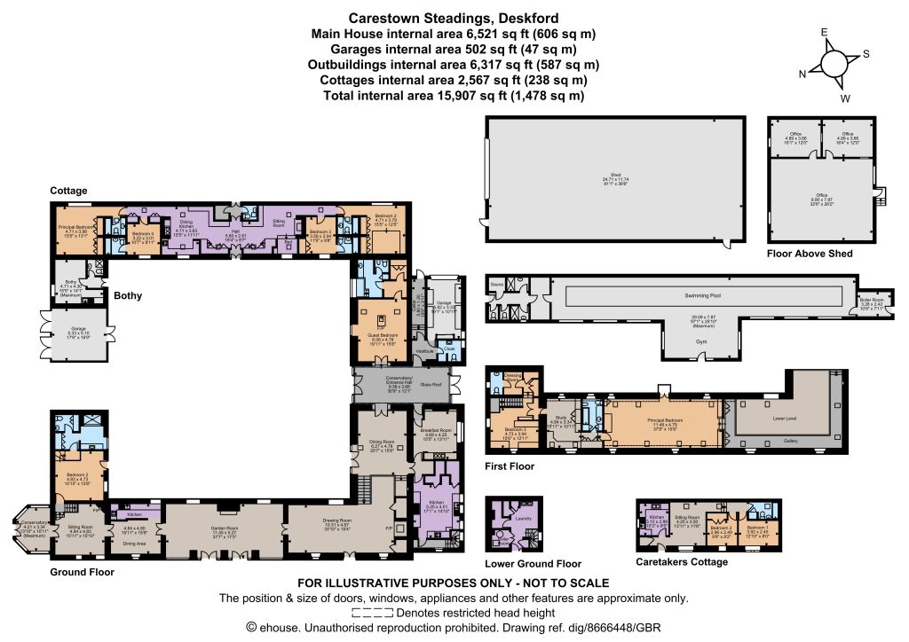
The Property Carestown Steadings is a magnificent period property arranged around delightful ornamental gardens. It includes a grand main residence offering over 6,500 sq ft of beautifully appointed living space, along with an additional cottage, a bothy, and a separate caretaker’s cottage, all set within five acres of rolling grounds.

The light and airy conservatory acts as an entrance hall to the main home, which occupies the west wing of the property. The main formal reception room is the drawing room, with its flagstone flooring, stone-built fireplace fitted with a log burner, vaulted ceiling with exposed timber eaves and galleried landing above. There is also a 37ft garden room with exposed stone walls and dual French doors opening to the gardens, as well as a formal dining room, a breakfast room with an Aga for casual meals and a well-equipped kitchen with modern fitted units and integrated appliances. Adjoining the main accommodation is further flexible living space, including a sitting room, a conservatory, a dining area and kitchen and one double bedroom en suite, which could either be used as part of the main house, or as an annexe.

Upstairs, the galleried landing leads to an impressive principal bedroom with an adjoining study and en suite bathroom, plus a further bedroom with a dressing room, accessed via a staircase in the annexe wing. A guest bedroom can also be found off the conservatory entrance hall, with a dressing area and an en suite bathroom with a recessed bath. The east side of the property has the splendid cottage, with its wonderful open-plan hall, sitting area, dining area and kitchen, with flagstone flooring, exposed timber eaves and various other character features. The cottage also has four double bedrooms, each of which is en suite.

Additional accommodation is provided in the studio-style Bothy, with its kitchenette and shower room, and in the Caretaker’s Cottage. This detached property features a siting room, a separate kitchen and two bedrooms, plus a bathroom.

Outside The house is set within five acres of breathtaking gardens and grounds, including the jewel in the crown, the central courtyard gardens, which feature immaculate box hedging, ornate topiary, a pergola and paved and gravel terracing, pathways and seating areas. Surrounding the house there are also beautiful rolling lawns, a maze, a wealth of well-maintained hedgerows, shrubs and trees, a kitchen garden with a polytunnel, patio seating areas for al fresco dining and a beautiful pond, which is a haven for wildlife. There is plenty of parking space, as well as double garage attached to the main house. Outbuildings include a large storage shed/barn with an office above, an open-sided barn as well as a further outbuilding housing a gym, a swimming pool, a sauna and shower facilities.

Location The property lies in a stunning and secluded setting, surrounded by Aberdeenshire countryside and within easy reach of the Moray Firth coastal villages of Cullen and Portsoy. Cullen lies three miles north with its pretty harbour, and offers various everyday amenities, including local shops, restaurants and cafés, as well as a primary school, while breathtaking beaches and links golf are also close by. The town of Buckie, nine miles away, offers a wider choice of shops and large supermarkets, while the cities of Inverness and Aberdeen are equidistant, at around 60 miles. The area provides easy access to coastal activities, including sailing in Moray Firth, while inland, the Cairngorms National Park is approximately an hour away, providing stunning hiking and climbing. Main road connections in the area include the nearby A96 towards both Inverness and Aberdeen, while rail services are available from Keith, 11 miles away with airports at both Inverness and Aberdeen.

This property has 5.4362 acres of land.

Directions

Post Code: AB56 5TR What3Words: ///handrail.friend.present (takes you to the property entrance)

From Cullen take the A98 to Fraserburgh and on leaving the village turn right signposted 'Deskford & Keith'. Follow this road for approx. 1.6 miles and then turn left signposted Fordyce & Cornhill'. Continue for approx 0.4 miles where you will reach a V junction, take the left over a bridge, following the road sharp round to the right. After about 0.5 miles you'll see on the right hand side the gated access to Carestown Steading.

Read more
  • Floorplan
  • Virtual Viewing
  • Map & Street View
Map View Street View
Get Directions
Have a property you want to sell?
Ref: CSD253603
Interested in this property?
Offers Over
£1,995,000