Highland IV2 4JZ Drummond Hill, Inverness
- Fixed Price
- £395,000
- 2
- 2
- 1
- Freehold
Features at a glance
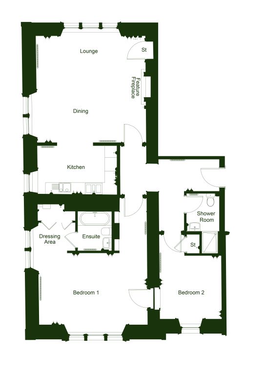
- First Floor apartment:
- Entrance hall
- Open-plan Lounge/Kitchen & Dining area
- Principal bedroom with en suite bathroom & Dressing area
- Bedroom 2
- Shower room
- In all, 1,173 sq ft
- Communal Garden Grounds
- Parking space
First floor 2 bedroom apartment (Plot 4) in the exclusive restored, Category B listed mansion house in the Drummond Hill development.
The Mineral Collection - Plot 4: The Anaclime
An outstanding Victorian manor house with superb character, situated within the expansive grounds of the Drummond Hill estate, in the Highland capital of Inverness, featuring beautifully landscaped gardens, a tree lined avenue and mature woodlands.
The Mineral Collection forms the centrepiece of the Drummond Hill estate, originally constructed in the late 19th century, a grade B listed Victorian Manor House. The design of the original house has been attributed to prominent Inverness architect, Alexander Ross, and will now be sympathetically restored into six unique apartments to form the Mineral Collection.
The Mineral Collection will retain the splendour of the property’s many period features, the impressive external façade, the striking entrance, imposing fireplaces, ornate cornicing, oak panelling, and the grandeur of the sympathetically upgraded original oak staircase. This spectacular collection of apartments will be set amidst over six acres of woodland within the prestigious Drummond Hill development, under a canopy of ancient native trees and vast open spaces where the bustle of city life feels a world away.
As residents enter over the original 19th Century mosaic floor of the remarkable historic mansion house, notable for its classic Tarradale sandstone with contrasting Marigold sandstone quoins and intricate detailing, they are enchanted by the grand entrance hall, which radiates light and elegance. This provides direct access to the two spacious ground floor apartments while upstairs apartments are accessed via the sympathetically upgraded original oak staircase. Apartments three and six, which are housed in the former annex to the Main House, boast their own private entrances and small private garden spaces.
Each two-bedroom apartment within the Mineral Collection presents charm through their unique designs, while reflecting contemporary living with open plan spaces, flooded by natural light through the restored sash and case windows. The apartments offer high-specification amenities throughout and all modern luxuries you would expect within this serene setting. The kitchens, carefully curated by luxury kitchen designers Ashley Ann feature integrated Neff appliances.
Many bedrooms feature striking characteristics such as restored fireplaces, bespoke wardrobe/dressing spaces, and all overlook the beautifully landscaped gardens of Drummond Hill creating a tranquil space to relax and unwind. The bathrooms and ensuites are fitted with crisp, contemporary sanitaryware, wall hung vanity units and chrome towel rails.
EPC rating - B
Situation
Drummond Hill truly offers the best of both worlds. A spectacular leafy suburb, it presents the chance to live in a tranquil and secluded setting, surrounded by rich local history, while benefitting from close proximity to a bustling city centre.
Situated to the south of Inverness City Centre, Drummond Hill is within close proximity of all the city has to offer by way of shopping, leisure and entertainment. This includes popular cafés, bistros, bars and restaurants lining the River Ness. It has great connectivity, bound by the east and west residential areas, and to the north of the city by the B862 Dores Road.
The surrounding views of the famous Scottish Highlands are outstanding, with acres of native pine trees, cherry trees, open green spaces and public gardens, making it the ideal place to connect with the outdoors. Within easy reach, residents will find several historical and cultural points of interest including Inverness Castle, St Andrew’s Cathedral and an original Victorian Market packed with independent traders who complement the busy high street.
Plenty of play parks, bike parks and golf courses are also nearby, including award-winning championship course, Castle Stuart Golf Links and the highly acclaimed Inverness Golf Club, which opened in 1883.
Directions
Drummond Hill is located on Stratherrick Road, Inverness. Sat Nav: IV2 4FA. What3Words - ///costumed.rumble.denim
Read more- Floorplan
- Map & Street View