Shaftesbury Dorset SP7 0LU French Mill Lane

Guide Price
£2,500,000
  • 5
  • 4
  • 3
  • Freehold
  • G Council Band
Ref: LON250106
Interested in this property?
Guide Price
£2,500,000

Features at a glance

  • Significant un-listed Mill house
  • Wonderful gardens and grounds of about 18.46 acres
  • Annexe within the main house, if required
  • Stunning bespoke kitchen/breakfast room
  • Beautiful interior
  • Separate cottage
  • Stabling and barn
  • Stone barn/games room
  • Rolling pasture land
  • Quiet and tranquil location

An impressive and substantial Mill House with cottage annexe and set in wonderful gardens and grounds

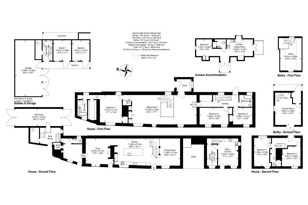
French Mill is an exceptional family which has undergone an extensive programme of refurbishment by a renowned local builder and is now presented to a high standard. The property offers over 4,300 sq ft of versatile accommodation over three floors. The house has been carefully re-modelled to provide flexible living spaces, whilst retaining the Mill’s period features. The stunning interior is most elegant by design and is also mirrored in the detached cottage/annexe situated to the northern side of the Mill.

French Mill’s origin dates back to the mid nineteenth century and was one of several working Mills set along The Stirchel. As one enters French Mill, one is immediately struck by the fabulous vaulted ceiling and the Elm wood crafted staircase that rises to the stunning first floor sitting room with its spectacular oak floored and vaulted and raftered living space. A wood burner stands at one end, whilst to the other, a stylish wood panelled living room area provides a most relaxing space with wonderful views over the front grounds.

Annexe Cottage (Millview) Accessed from a spur off the main driveway and via a five-bar gate, Millview is a stunning and beautifully presented self-contained property, which could provide accommodation for staff or a dependant relative. The accommodation comprises a sitting room/kitchen, bedroom and enjoys the most lovely views from a balcony over its land and beyond.

Alternatively, subject to planning, Millview offers the possibility to convert into a separate residential dwelling. Its current status is for staff accommodation. Set below the cottage is a garage/workshop, 2 loose boxes and a tack room.

The kitchen/breakfast room is truly stunning. Fitted with a range of Gillerson crafted units, complemented by a large central island with a beautiful cherry wood worktop, this really is a kitchen of significance. This area, leading from the dining room through to the sitting room has limestone flooring and the whole ground floor is serviced by underfloor heating.

At the north end of the property is a charming side hall, complete with a restored exposed brick bread oven above a quarry tiled floor, and steps leading up to a boot room, services room and the attached cart shed. At the other end of the property, next to the old mill workings, is a utility and laundry room which is set out as a potential annexe, accessed via its own door from the garden and having a fitted kitchen and stairs to two first floor double bedrooms, which are, more importantly, accessed from the main landing.

The principal bedroom boasts a walk-in closet, bathroom and an airing cupboard. A further staircase leads up to two further spacious loft bedrooms and a shower room

This property has 18.46 acres of land.

Outside

Outside French Mill is approached through automated gates, flanked by attractive Estate fencing across the full width of the property. The long and impressive gravel driveway sweeps and curves down to the property where a gravelled turning and parking area can be found. There is a very useful stone Bothy with a cobbled and flagstone floor, and stairs that rise to a first-floor room, currently used as an office.

Immediately in front of the house is a lovely stone terrace providing the perfect area for al-fresco dining. Level lawns with planted flower and shrub borders sweep away from the terracing and over towards more informal grounds that enjoy pathways close to the river and paths through to a stunning natural garden area, perfect for those who love to be amongst nature. There is also a large pond.

Pasture land For those who may wish to keep livestock or horses, the majority of the pasture lies elevated to the north of the driveway and is enclosed in the main by post and rail fencing.

In addition and set just across the lane immediately opposite the mill lies a further area of pasture, which is enclosed by a mix of fencing, mature hedgerows and trees

Situation

French Mill sits in an unspoilt location just two miles from Shaftesbury. Shaftesbury offers a comprehensive selection of amenities, including High Street and boutique shopping, a delicatessen, supermarkets, numerous restaurants and cafés, a health centre, hospital, library and arts centre. Gillingham also offers a wide range of shopping including a Waitrose, together with recreational and leisure facilities and a mainline station with regular services to London Waterloo. The Cathedral city of Salisbury is within easy reach, with the A303 providing excellent communication links to the national motorway network, London and the West Country. Further to the south is the Dorset coastline which includes both the towns of Poole and Weymouth and the Jurassic coast, a famous UNESCO world heritage site

The area offers a wide range of notable independent schools, including Port Regis, Sandroyd, Hazelgrove, Handford, Clayesmore, Bryanston, Leweston, Godolphin, Kings Bruton, Sherborne and Downside

Read more
  • Floorplan
  • Map & Street View
Map View Street View
Get Directions
Have a property you want to sell?
Ref: LON250106
Interested in this property?
Guide Price
£2,500,000