Farnham Surrey GU10 3HN Frensham Vale, Lower Bourne

Guide Price
£1,395,000
  • 4
  • 3
  • 3
  • Freehold
  • C Energy Efficiency Rating
  • G Council Band
Ref: FRN210081
Interested in this property?
Guide Price
£1,395,000

Features at a glance

  • Detatched family home in popular Lower Bourne
  • Contemporary decor and modern living with the kitchen dining room forming the heart of the home
  • Two reception rooms, one with access directly to the terrace
  • Four double bedrooms, principal bedroom with en suite bathroom and Juliet balcony

A contemporary detached, stylishly presented family home, set in a prime position in the heart of Lower Bourne.

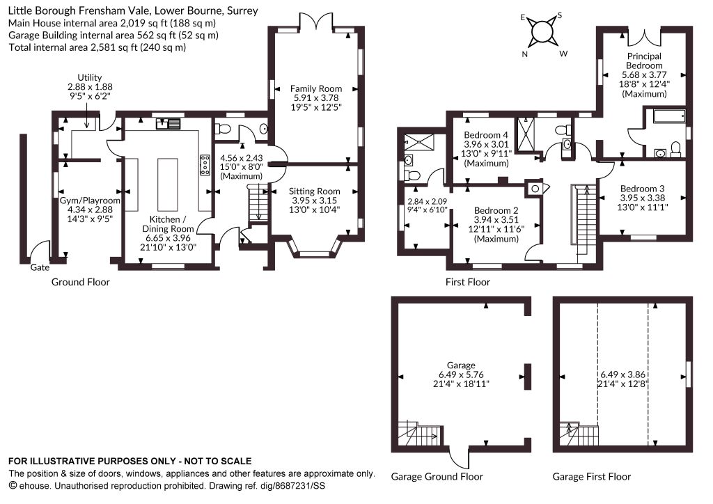
Little Borough is an attractive and well-presented family home, featuring handsome red brick elevations and an oak-framed entrance porch, extending to more than 2,000 sq ft of well-balanced accommodation arranged over two floors. The property is characterised by elegant contemporary décor, slate flooring and large windows allowing for excellent natural light throughout.

The welcoming reception hall, with its oak staircase, provides access to the principal living areas. The kitchen/dining room forms the heart of the home, a well-proportioned open-plan space designed for modern family living, fitted with quality cabinetry, stunning quartzite work surfaces, a central island and a range cooker, together with ample space for a dining table. A neighbouring utility room offers additional practicality, while a further room, currently arranged as a gym, provides flexible accommodation. The ground floor also provides two reception rooms: a multi-aspect family room with French windows providing direct access to the terrace, and a separate sitting room featuring a bay window and an arched feature window. On the first floor, the galleried landing leads to four well-proportioned double bedrooms. The principal bedroom features a Juliet balcony overlooking the pretty garden and benefits from an en suite bathroom. A second bedroom also has en suite facilities, while the remaining bedrooms are served by a spacious shower room.

Outside

The property is approached via a generous gravel driveway providing ample parking for several vehicles. The detached double garage incorporates a versatile first-floor studio, ideal for hobbies or additional storage. To the rear, the garden is attractively arranged, with a large stone terrace adjoining the house providing space for al fresco dining. Steps rise to a level lawn bordered by stone retaining walls and mature hedging, creating a private and well-screened setting.

Situation

Little Borough is situated in the highly regarded Frensham Vale, within the desirable Lower Bourne area to the south of Farnham. The location offers a strong sense of community, with local amenities including a village shop, public house and tennis club, while the nearby Georgian market town of Farnham provides a comprehensive range of shopping, dining and leisure facilities, together with a mainline station offering services to London Waterloo. The surrounding area is renowned for its natural beauty, with Frensham Common and the National Trust-owned Frensham Ponds close by, providing excellent opportunities for walking, riding and outdoor recreation. The area is also well served by a number of highly regarded schools, including South Farnham School, Weydon School, Edgeborough, Frensham Heights and More House School.

Communications are excellent, with the A31 providing access to the A3 and wider motorway network, linking to Guildford, Winchester and London, while Farnham station offers regular rail services to the capital.

Directions

GU10 3HN

What3Words///screeches.presenter.outpost brings you to the entrance to the property.

Read more
  • Floorplan
  • Map & Street View
Map View Street View
Get Directions
Have a property you want to sell?
Ref: FRN210081
Interested in this property?
Guide Price
£1,395,000