Henfield West Sussex BN5 9BS Fryland Lane, Wineham

Guide Price
£1,195,000
  • 4
  • 2
  • 3
  • Freehold
  • E Energy Efficiency Rating
  • G Council Band
Ref: GFD250180
Interested in this property?
Guide Price
£1,195,000

Features at a glance

  • Substantial lodge in rural location.
  • 4 double bedrooms and attic room,
  • Principal bedroom with dressing room.
  • 2 bathrooms and cloakroom.
  • Superb kitchen/dining/family room.
  • 2 further reception areas.
  • Private gated driveway.
  • Attractive wrap around garden.
  • Network of bridleways and footpaths on the doorstep

A detached four bedroom family home located in a beautiful rural West Sussex hamlet

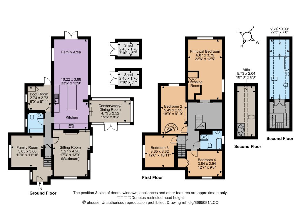
East Lodge is an attractive part tile-hung period family home, sensitively extended to offer more than 2,400 sq ft of light-filled, flexible accommodation arranged over three floors. Configured to provide an elegant and practical living and entertaining environment maximising the views over the garden and woodland beyond, the accommodation flows from a welcoming part-panelled entrance hall with wooden flooring. It opens into a wooden-floored family room with a fireplace, opening in turn to an inner hall. It has a useful cloakroom and gives access to a dual aspect sitting room with painted wooden flooring and a fireplace with woodburning stove flanked on each side by bespoke shelving, a through boot room with terrace access and a large wooden-floored kitchen/family room. The kitchen has a range of bespoke wall and base units, a large zinc-topped central island with a breakfast bar and wine chiller, complementary work surfaces, tiled splashbacks, a Rayburn cast iron stove and modern integrated appliances. It opens on one side into a family area with full-height glazing and French doors to a garden terrace and on the other to a triple aspect orangery-style conservatory/dining room with a vaulted glazed roof, patterned tiled flooring and feature picture glazing incorporating French doors to a garden terrace.

Stairs rise from the entrance hall to a spacious first floor landing. It gives access to a dual aspect principal bedroom with a fitted dressing room, three further double bedrooms, and a modern family bathroom with contemporary freestanding bath and separate shower enclosure. One of the bedrooms incorporates a spiral staircase leading up to a vaulted attic room, suitable for a variety of uses. A separate staircase rises from the landing to a large vaulted second floor bathroom with freestanding rolltop bath.

Set behind mature hedging and having plenty of kerb appeal, the property is approached through double wooden electric gates over a gravelled driveway providing private parking. The generous well-maintained garden surrounding the property is laid mainly to level lawn interspersed with mature trees and bordered by well-stocked flower and shrub beds. It features numerous seating areas, a paved barbecue area, a raised wraparound decked terrace accessible from the boot room and kitchen/family room and a further raised decked terrace off the conservatory/dining room, the whole enjoying easy access to peaceful surrounding woodland and its walks.

Situation

The West Sussex hamlet of Wineham has a pub. Henfield village offers independent shopping, a supermarket, churches, inns, a library, primary school, health centre and sports/leisure centre. More comprehensive amenities can be found in Hurstpierpoint, Hassocks, Burgess Hill, Haywards Heath, Horsham and Brighton. The wider area offers superb outdoor and sporting opportunities: Woods Mill Nature Reserve and the South Downs National Park provide miles of walking, cycling and riding routes, Wickwoods (David Lloyd) has tennis, spa and fitness facilities, and there are several race courses, numerous golf clubs, polo and equestrian grounds and sailing off the south coast. Transportation links are excellent: the A23 links to the M23 and motorway network, and Hassocks station (6.8 miles) provides mainline services to central London in around an hour.

The area offers a wide range of state primary and secondary schooling including St Paul’s Catholic College (rated Outstanding by Ofsted) together with independent schools Handcross Park and Hurstpierpoint College.

Directions

BN5 9BS what3words: ///bowhead.never.mavericks

Read more
  • Floorplan
  • Map & Street View
Map View Street View
Get Directions
Have a property you want to sell?
Ref: GFD250180
Interested in this property?
Guide Price
£1,195,000