Whitchurch on Thames Oxfordshire RG8 7HW Hardwick Road

Guide Price
£1,500,000
  • 4
  • 3
  • 5
  • Freehold
  • D Energy Efficiency Rating
Ref: NEW260037
Interested in this property?
Guide Price
£1,500,000

Features at a glance

  • 4 bedrooms
  • 5 reception rooms
  • 3 bathrooms
  • Garage
  • Village location
  • Comprehensively modernised and upgraded throughout
  • Walking distance to Pangbourne village and station

A beautifully restored family house with a generous garden within walking distance of Pangbourne

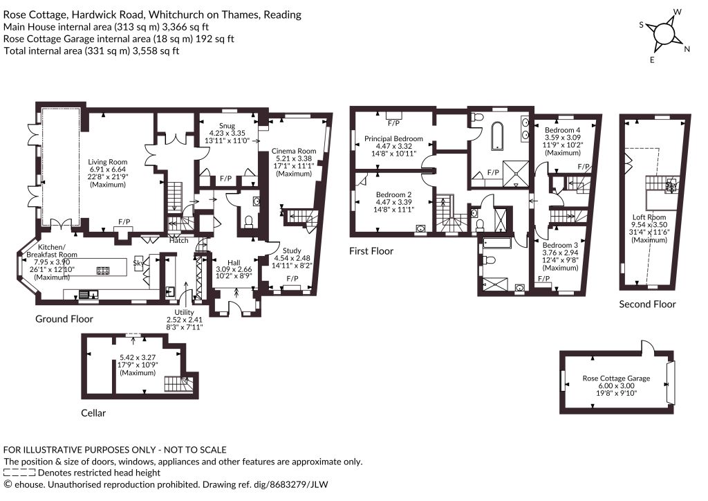
Rose Cottage forms the major part of an unlisted Victorian house in the sought after village of Whitchurch on Thames. It occupies an elevated south facing position looking out over its secluded garden with views across the village and beyond. The house has been the subject of considerable modernisation and upgrades to energy efficiency, whilst retaining its period features. It is flooded with light and has large, well-proportioned rooms and plenty of storage. The house has an enviable layout focused on a spacious living room incorporating a seating area with open fireplace and dining area which flows seamlessly through a pair of arched double French doors onto the raised garden terrace. This living room also links nicely with the kitchen creating a relaxed, yet sophisticated, central living space. The newly refurbished kitchen has a smart limestone floor with underfloor heating and also benefits from a lovely bay window with original details. It is a light and beautiful place to dine with views across the garden. In addition to the main reception room, there is a cosier snug with a ceramic log burning stove, a cinema room, a study, and a utility room on the ground floor. On the first floor there are four bedrooms and three bathrooms, including the principal suite with working fireplaces in both the bedroom and grand en suite. On the second floor there is a versatile 30-foot loft room and double doors to a very large attic.

Outside

The mature gardens and grounds at Rose Cottage follow the contours of the land, widening as they descend. The south facing terrace outside the living room leads down to a second ballustraded terrace, perfect for entertaining and enjoying the sunshine. Steps descend to a formal lawn surrounded by mixed borders. Mature trees, including a cherry, Judas, Western Red Cedar and fig punctuate the design. At the bottom of the garden is a wilder and attractive area of sloping lawn and additional borders. There is a designated garage, EV charger, bike shed and parking area by the front door.

Situation

The village sits on the River Thames, has one of The Telegraph’s top ten primary schools, and a popular pub, The Greyhound. A picturesque bridge crosses to the neighbouring village of Pangbourne which provides a variety of independent shops, a Co-Op, pharmacy, doctors surgery, vet, library, restaurants, cafe, three pubs and a London bound train station. The fastest services to London take around 45 mins with trains also connecting to the Elizabeth Line via Reading. There is also swift access to the M4 at junction 12. The area has long been renowned for its selection of both state and private schools, including but not limited to Whitchurch Primary, St Andrew’s School, Cranford House, Moulsford Prep, Langtree, The Downs, Reading Grammar, Kendrick, The Oratory, Bradfield College, and Pangbourne College.

Directions

Postcode RG8 7HW Directions: What3Words:///quick.reinvest.pegged

Read more
  • Floorplan
  • Map & Street View
Map View Street View
Get Directions
Have a property you want to sell?
Ref: NEW260037
Interested in this property?
Guide Price
£1,500,000