Banningham Norfolk NR11 7DY Highbury Farm Barns

Guide Price
£895,000
  • 4
  • 4
  • 3
  • Freehold
Ref: NOR260058
Interested in this property?
Guide Price
£895,000

Features at a glance

  • Exclusive New Development
  • Barn Conversion
  • Village Location
  • North Norfolk

An exclusive newly developed 4 bed barn conversion in a rural village location in North Norfolk

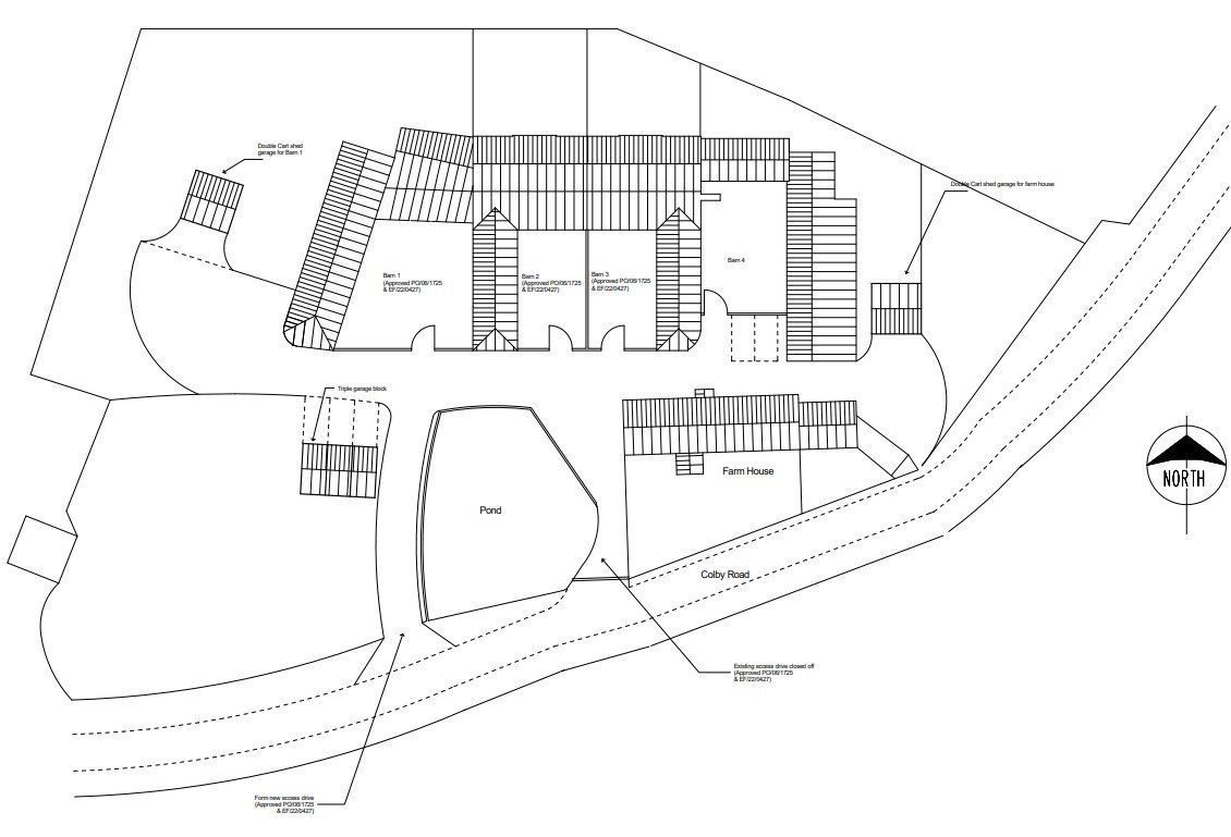
Milling Barn is an exclusive newly developed four bed barn conversion, specified to exacting standards with double cart shed and garden, and situated in a rural village location in North Norfolk. Completion due in May 2026.

Situation

Milling Barn is situated in Banningham, a well served North Norfolk village located near to the market town of Aylsham. The village has a public house and village hall, and the neighbouring village of Colby has a primary school and garage. The market town of Aylsham (3 miles) is increasingly popular with an array of amentities including public houses, schooling, supermarkets, banking, doctors surgery, pharmacy, veterinary surgery and sporting clubs. The National Trust property of Blickling Hall is 4 miles away providing delightful country walks through parkland. The Cathedral City of Norwich, the regional centre, is 15 miles to the south and offers a comprehensive range of commercial entertainment, cultural amenities and excellent schooling. Norwich has a mainline railway station providing regular services to London and Cambridge. On the North side of the City is Norwich international Airport (12 miles) which caters for both domestic and international flight destinations.

Directions

From Norwich head north on the A140 towards Aylsham. Upon reaching the roundabout on the Aylsham bypass, take the third exit continuing on the A140. Continue for 2.7 miles turning right onto Banningham Road, following past The Crown public house at the centre of the village and Highbury Farm Barns can be found after a short distance on the left hand side.

Read more
  • Floorplan
  • Map & Street View
Map View Street View
Get Directions
Have a property you want to sell?
Ref: NOR260058
Interested in this property?
Guide Price
£895,000