London SW10 9AD Ifield Road, Chelsea

Asking Price
£625 per week
plus charges
  • 1
  • C Energy Efficiency Rating
  • D Council Band
Ref: CSW250036
Interested in this property?
Asking Price
£625 per week
plus charges

Features at a glance

  • • 1 BEDROOM • RECEPTION ROOM • GARDEN

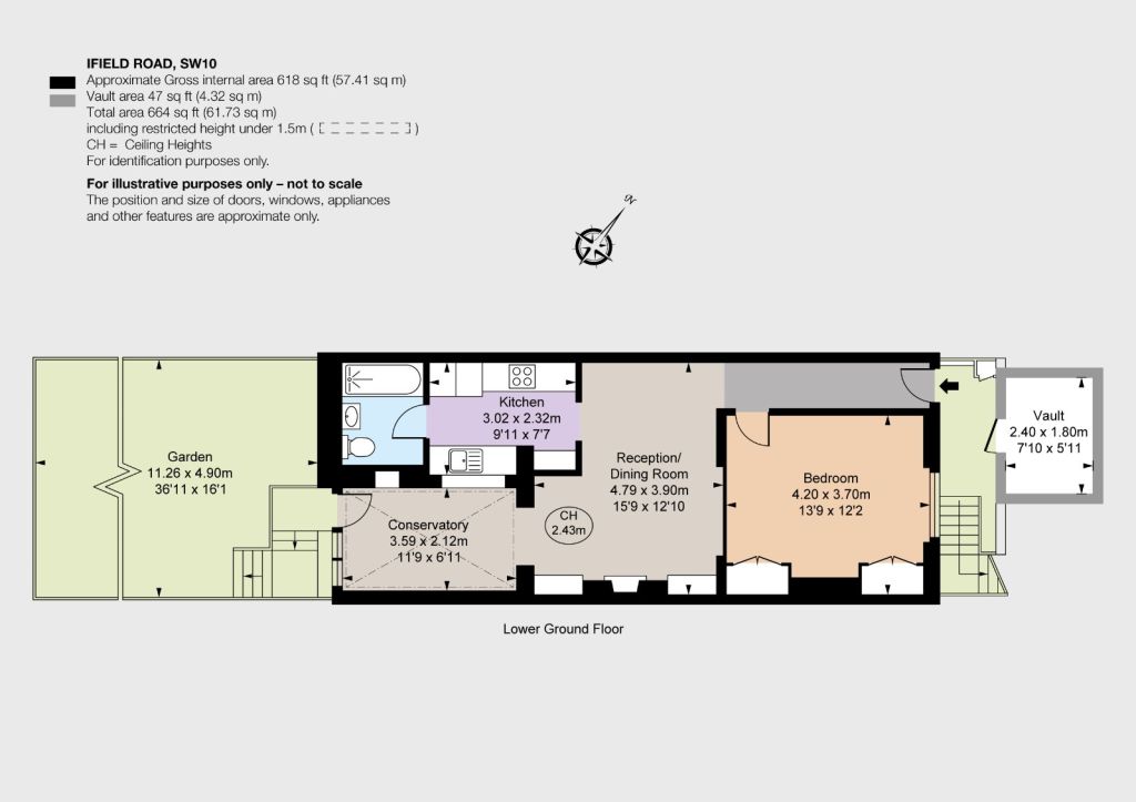
An excellently presented one bedroom garden flat located on a sought after residential street in Chelsea.

An excellently presented one bedroom garden flat located on a sought after residential street in Chelsea.

Having been recently redecorated throughout, this bright and inviting home offers an open plan kitchen/reception and dining area with attractive wooden floors, creating an ideal space for both relaxing and entertaining. The property also benefits from excellent built in storage, as well as a well proportioned double bedroom.

A standout feature is the large private garden, providing a rare and peaceful outdoor retreat in a this popular Chelsea location.

Ideally positioned moments from the shops, cafes and restaurants of Fulham Road and Old Brompton Road, the flat also offers easy access to excellent transport links, including West Brompton (Overground and District Line) and Earl's Court Underground Stations.

Read more
  • Floorplan
  • Map & Street View
Map View Street View
Get Directions
Have a property you want to sell?
Ref: CSW250036
Interested in this property?
Asking Price
£625 per week
plus charges

SW10 Chelsea Estate & Letting Agents

140 Fulham Road
London
SW10 9PY

+44 20 7373 1010