Broadstairs Kent CT10 3AX Kingsgate Place, Reading Street

Guide Price
£725,000
  • 4
  • 2
  • 2
  • Freehold
Ref: SWH250083
Interested in this property?
Guide Price
£725,000

A limited coastal collection high quality homes in historic Broadstairs

Situated in one of the most sought-after areas of beautiful Broadstairs, this attractive 4-bedroom home offers spacious living in close proximity to the resort's links golf course and celebrated beaches.

This property also has 2 bathrooms (1 en-suite) a front & rear south facing garden with patio, garage, parking and an EV charging point.

The luxury fitted kitchen is equipped with a Quooker Boiling Tap and and American fridge freezer, plus there are stonework surfaces in the utility room.

All properties come with a 10-year warranty and Elivia's 2-year aftercare service.

Situation

This select development is situated in the perfect location for families and retirees, as well as commuters who wish to combine a desirable coastal location with effortless access to key commercial hubs.

IMPORTANT NOTICE Strutt & Parker gives notice that: 1. These particulars do not constitute an offer or contract or part thereof. 2. All descriptions, photographs and plans are for guidance only and should not be relied upon as statements or representations of fact. All measurements and specifications are approximate, are not necessarily to scale and may be subject to change. Any prospective purchaser must satisfy themselves of the correctness of the information within the particulars by inspection or otherwise. 3. Some images may be Computer Generated Images, are indicative only and may differ from the final build product. 4. Images may be of the show home rather than the individual unit. 5. Lifestyle images are indicative only. 6. Strutt & Parker does not have any authority to give any representations or warranties whatsoever in relation to this property (including but not limited to planning/building regulations), nor can it enter into any contract on behalf of the vendor. 7. Strutt & Parker does not accept responsibility for any expenses incurred by prospective purchasers in inspecting properties which have been sold, let or withdrawn. 8. We are able to refer you to SPF Private Clients Limited (“SPF”) for mortgage broking services, and to Alexander James Interiors (“AJI”), an interior design service. Should you decide to use the services of SPF, we will receive a referral fee from them of 25% of the aggregate of the fee paid to them by you for the arrangement of a mortgage and any fee received by them from the product provider. Should you decide to use the services of AJI, we will receive a referral fee of 10% of the net income received by AJI for the services they provide to you. 9. If there is anything of particular importance to you, please contact this office and Strutt & Parker will try to have the information checked for you. Photographs taken July 2019. Particulars prepared April 2019. Strutt & Parker is a trading style of BNP Paribas Real Estate Advisory & Property Management UK Limited, a private limited company registered in England & Wales with company number 04176965 whose registered office is at 5 Aldermanbury Square, London EC2V 7BP.

Directions

what3words: ///dream.food.formed

Read more
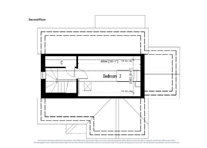
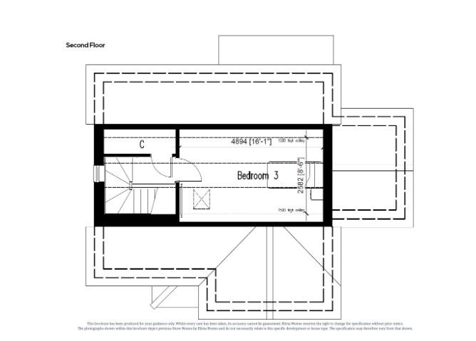
  • Floorplan
  • Map & Street View
Map View Street View
Get Directions
Ref: SWH250083
Interested in this property?
Guide Price
£725,000