Holland Park W11 3PR Ladbroke Road

Guide Price
£9,500,000
  • 6
  • 6
  • 2
  • Freehold
  • C Energy Efficiency Rating
  • H Council Band
Ref: NHL150102
Interested in this property?
Guide Price
£9,500,000

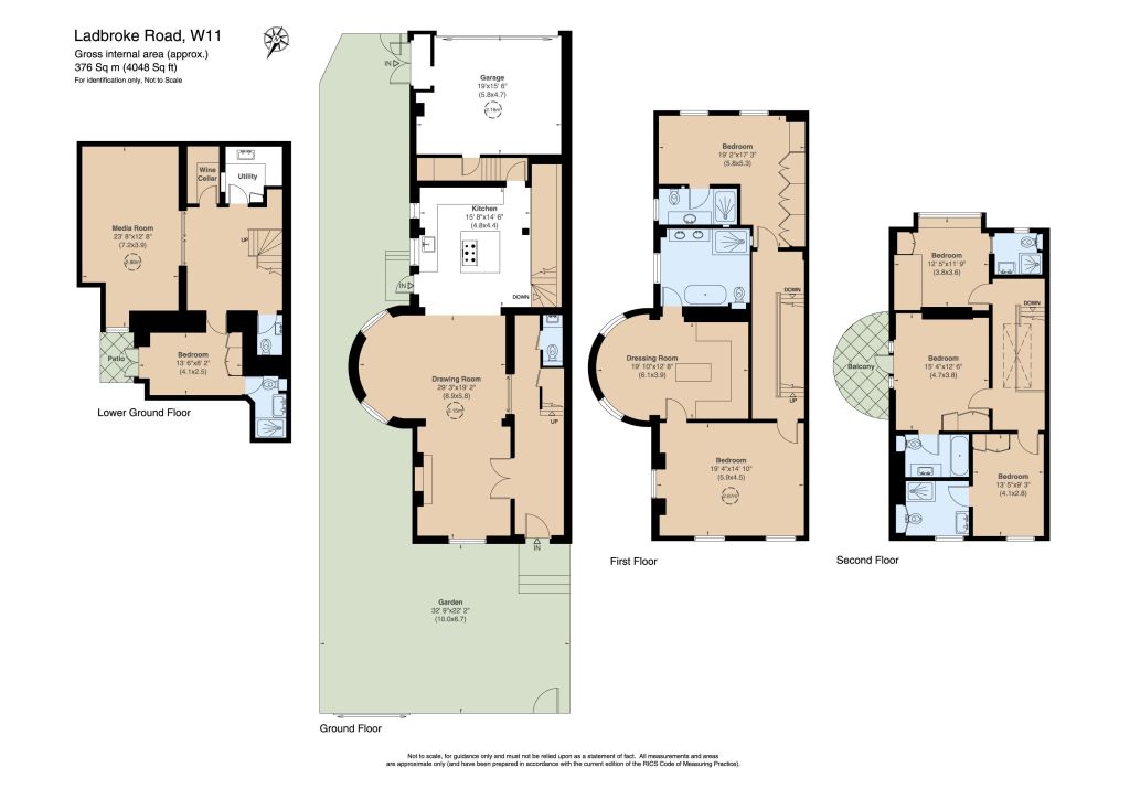
Features at a glance

  • Entrance hall
  • Drawing room
  • Kitchen
  • Media room
  • Six bedrooms
  • Six bath/shower rooms
  • Dressing room
  • Utility room
  • Wine cellar
  • Two guest WC's
  • Balcony
  • Garden
  • Garage

An impressive semi-detached six bedroom family house with off street parking and a double garage

Built in the early 1840's by William John Drew as one of four original pairs of semi-detached villas, this is one of the oldest houses on the Ladbroke estate. It is an elegant, wide house over just four floors, presented in immaculate condition.

The house offers enviable lateral accommodation and an excellent balance between formal and informal entertaining space and six outstanding bedroom suites.

The house also benefits from a double garage, light on three sides and good privacy set behind a walled front garden.

Situation

Ladbroke Road is a sought after, tree lined address with the house situated towards the western end on the road, close to the corner of Lansdowne Road and therefore near the shopping and transport facilities of Notting Hill Gate and Holland Park Avenue. The green spaces of Holland Park are also nearby.

Read more
  • Floorplan
  • Map & Street View
Map View Street View
Get Directions
Have a property you want to sell?
Ref: NHL150102
Interested in this property?
Guide Price
£9,500,000