Folkestone Kent CT18 8LL Ladwood Farm, Acrise

Guide Price
£1,500,000
  • 3
  • 2
  • 1
  • Freehold
  • C Energy Efficiency Rating
  • C Council Band
Ref: CAN260082
Interested in this property?
Guide Price
£1,500,000

Features at a glance

  • Potential to rearrange
  • Extended family possibilities
  • Holiday lets with significant income generation
  • Well appointed 3 bed house
  • Extensive barns and land
  • Beautiful AONB setting in private valley
  • Arranged as follows:
  • 4 residential units in all
  • 2 holiday lets and third residence alongside stable lodge.
  • Extensive range of workshops, stables and outbuildings
  • About 15.75 acres

Holiday lets and house with significant income and land

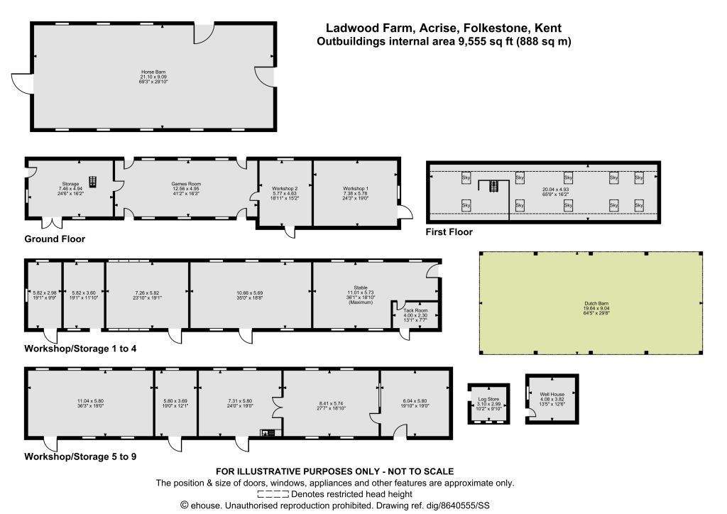
SUMMARY OF ACCOMMODATION

STABLE LODGE Recently renovated to a very high standard. A 3-bedroom residence with oak interior, marble tiling with silestone counter tops. Contemporary living space with vaulted ceilings imbuing a great sense of volume and luxury.

THE BARN An extensive traditional barn currently arranged as two holiday lets and a third residence that provide a healthy income, with potential for adaptation, perhaps to a substantial new home.

THE GAMES ROOM An attractive building with significant potential for development, possibly conversion. Currently used as a games room with generous space for entertaining.

UP TO 7 WORKSHOPS Arranged in two large chicken barns, some presently used for storage, others for business purposes. Suitable for a variety of uses whether that be renting to local businesses or equestrian use, with two further smaller workshops attached to the games room. An additional unit is being used for stabling and opens onto fenced paddocks.

THE AMERICAN BARN A large barn with significant development potential. Presently used for horses and farm animals. Opens onto fenced paddocks.

THE DUTCH BARN A large footprint with potential, currently used for storing farm machinery.

AVAILABLE IN ADDITION The Farmhouse (5 bedrooms), The Granary (2 bedrooms) and further land (totalling about 28 acres in all) are available in addition, if desired. The additional properties are coloured green and blue on the plan.

THE PROPERTIES The Barns at Ladwood Farm enjoy a private, exclusive setting in an eponymous valley deep in the Kent countryside in the heart of the North Downs.

The former farmyard is home to an extensive range of barns, including Stable Lodge, a sensitively modernised and impeccably presented 3-bedroom residence. Original period features have been retained alongside the refurbishment, which has included bespoke oak interiors, marble tiling and other high quality fittings.

Adjacent and attached is The Barn. This substantial former agricultural barn is home to two holiday cottages and a third residence. The cottages have formed the mainstay of a successful holiday letting business that sees many return visitors.

The Games Room sits in a separate building, making up the remaining wing of the courtyard which, in turn, makes a pretty, well planted Victorian style garden at the heart of the surrounding buildings. The Games Room has potential for conversion, subject to any necessary consents. The courtyard and surrounding buildings have potential for development if desired.

Beyond are the workshops, American Barn and Dutch Barn, providing further income generating opportunities. The stables and part of the grounds have been let, and the workshops have housed a number of tenants over the years. They provide great scope for future development if a purchaser wishes to further enhance the versatility of these buildings.

This property has 15.75 acres of land.

Outside

The land occupies a wonderful setting in this private valley, within the Area of Outstanding Natural Beauty.

Included with the barns are about 15.75 acres of land that currently provides equestrian and agricultural grazing. This is all found to the west of the lane (coloured pink on the plan).

Further land may be available in addition (coloured green and blue on the plan). Details of the tenancies are available from the agents.

Situation

The property is situated in a private valley setting in a beautiful rural location surrounded by woods and farmland in a designated Area of Outstanding Natural Beauty.

Acrise lies to the south-east of Elham which, together with Lyminge, provides day-to-day amenities. Canterbury offers a good range of educational facilities, together with extensive shopping and leisure facilities.

Transport links in the area are excellent, with the M20 providing access to the remaining southern motorway network. Stations at Folkestone Central and Ashford International provide the High Speed service into London St Pancras, taking from 55 and 36 minutes respectively. The area has good access to Continental Europe via Eurotunnel and the Port of Dover.

Directions

CT18 8LL

What3Words: ///saloons.dusts.fluffed brings you to the driveway to the property

Read more
  • Floorplan
  • Map & Street View
Map View Street View
Get Directions
Have a property you want to sell?
Ref: CAN260082
Interested in this property?
Guide Price
£1,500,000

National Country House Department

43 Cadogan Street
London
SW3 2PR

+44 20 7591 2213