Ivybridge Devon PL21 0TU Calancombe, Modbury

Guide Price
£1,575,000
  • 7
  • 7
  • Freehold
Ref: SWE250027
Interested in this property?
Guide Price
£1,575,000

Features at a glance

  • A stylish four bedroom converted barn
  • Indoor swimming pool
  • Two bedroom detached annexe
  • Cinema Room
  • Charming one bedroom cottage
  • Grazing land
  • Private gardens
  • Farm building
  • Flexible outbuildings
  • Tranquil location but with easy access to A38
  • Trout stream & ponds

A stunning barn conversion with two detached annexes, land and outbuildings

Lot 2: Coombe Farm Barns

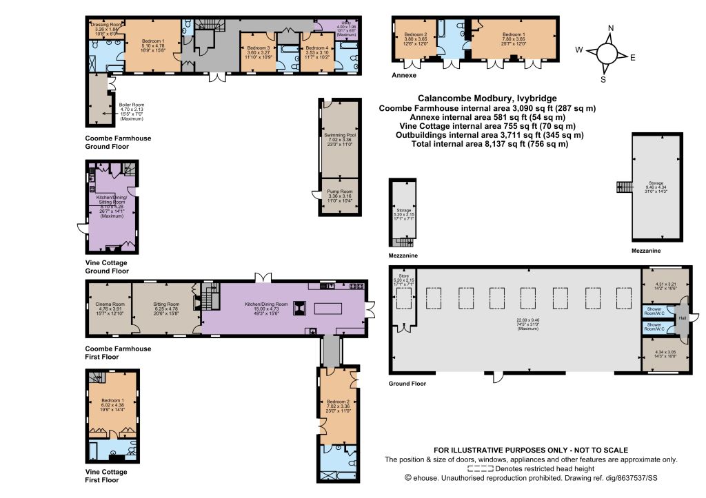
Coombe Farm Barns is a superb property on the Calancombe Estate, with splendid historic stone elevations and stylish modern accommodation in a delightful setting. With more than 5,000 square feet of beautiful living space, as well as a small indoor swimming pool and two further residential converted stone barns, there is ample space for multi-generational living in great comfort or for holiday lets. Since 2012, the owners have let property to holiday visitors and to longer-term residents, keeping annual income capped below the VAT threshold, but still producing a substantial revenue.

Coombe Farmhouse forms two sides of a south-facing 3-sided courtyard, with Vine Cottage forming the 3rd side. Together, they create a wonderful suntrap. Coombe Farmhouse is built across a slope and has its everyday living and entertaining areas on the first floor, taking advantage of its elevated position with views to the south across the beautiful valley, while this accommodation is accessed from ground level from the north side. There is a 49ft open-plan kitchen and dining room, divided by a stylish dual-sided fireplace, providing the perfect space in which to entertain guests. French doors open onto a terrace area at the side and a further patio within the courtyard, offers a sheltered and sunny space in the Courtyard. The first floor also has a well-proportioned sitting room and a cinema room complete with rows of seating for family film nights.

A glass-walled connecting walkway leads from the kitchen and dining room to the upper bedroom and its en suite bathroom. The bedroom features a Juliet balcony to one side, overlooking the front courtyard gardens, and French doors to the other opening onto a patio at ground level. On the lower level, the farmhouse offers a further three double bedrooms, all en suite. These include the principal bedroom with its dressing room and en suite bathroom. The accommodation is heated throughout by oil fired underfloor heating beneath teak floorboards.

The indoor heated swimming pool adjoins the farmhouse but is accessed via its own entrance. It has full-height bifold windows which open onto the Courtyard terrace.

On the west side of the courtyard, Vine Cottage offers luxurious self-contained accommodation for a couple, with an open-plan kitchen and living room on the ground floor and a large bedroom with vaulted timber truss ceiling and stylish en suite bathroom on the first floor. A French window from the living room leads to a small terrace overlooking the valley below, offering the perfect position for a morning coffee, a sundown drink and al fresco dining.

The Annexe is a converted single storey stone barn beyond Combe Farmhouse, offering two further bedrooms and a shared Jack and Jill bathroom. The larger of the bedrooms could be converted into an open-plan kitchen and sitting room if required. The Annexe faces south onto a garden with outstanding views over the Calancombe valley below and plenty of space for outdoor seating and dining.

This property has 11.02 acres of land.

Outside

A charming stream flows through the valley below, settling into attractive ponds on the lower ground. The current owners have enjoyed fishing wild trout from the stream and pond, all within a stone’s throw from the accommodation. Beyond the stream are 2 grass paddocks, which are perfect for horses or additional family space.

There is a further, very useful steel portal frame farm building located within this shallow sided valley, a private and relatively underdeveloped corner of the Estate presenting excellent opportunities for a range of potential alternative uses. The barn is principally used for machinery storage and there are a pair of internal rooms and shower rooms under development to provide guest/visitor facilities.

The barn is flanked by land to the front and rear with a shallow brook running along the valley bottom, creating a glorious setting and excellent provision for wildlife.

The land is mostly to pasture with some areas of rough pasture and mixed natural woodland. There is a field gate from the road which could conceivably offer an additional entrance and driveway in future.

Situation

The property is situated between Dartmoor National Park and the South Devon coast, just 2 miles from the pretty town of Modbury and 14 miles from Dartmouth and Salcombe. South Coast beaches are 8 miles away.

The area is favoured for its highly attractive rolling countryside, its proximity to several excellent beaches, towns and villages and a choice of premium hotels, retreats, pubs, bars and restaurants.

General

Method of sale: The Calancombe Estate is offered for sale as a whole or in lots by private treaty. Please note that individual lots may not be sold until sales are agreed on other lots.

Tenure: The property is sold freehold with vacant possession on completion.

Services: Coombe Farm Barns: Mains electricity; Private Water; Klargester; Oil boiler; Satellite broadband* Farm Building: Mains electricity; Private Water; Klargester

*Provided via connection in the winery. This will be disconnected in the event of a sale in lots.

Wayleaves, easements and rights of way: The property is being sold subject to and with the benefit of all rights including; rights of way, whether public or private, light, support, drainage, water and electricity supplies and other rights and obligations, easements and quasi-easements and restrictive covenants and all existing and proposed wayleaves for masts, pylons, stays, cables, drains, water and gas and other pipes whether referred to in these particulars or not.

There are no public rights of way. In the event of a sale in lots, rights of way will be reserved along the main drive to access other lots.

Sporting, timber and mineral rights: All sporting timber and mineral rights are included in the freehold sale, in so far as they are owned.

Planning: All prospective purchasers are to rely on their own planning enquiries.

Coombe Barns have planning consent for a single residential unit plus ancillary accommodation.

Fixtures and fittings, machinery, equipment & stock: All items usually regarded as tenant’s fixtures and fittings and equipment, including fitted carpets and curtains, together with garden ornaments and statuary, are specifically excluded from the sale. These may be available to the purchaser by separate negotiation.

Covenants and/or restrictions: There may be restrictions/ covenants listed on the Land Registry Title deed, details of which will be made available by the vendors’ solicitors on request.

Local authority: South Hams District Council. www.southhams.gov.uk

VAT: Any guide price quoted or discussed is exclusive of VAT. In the event that a sale of the property, or any part of it, or any right attached to it, becomes a chargeable supply for the purposes of VAT, such tax will be payable in addition.

Health and safety: Given the potential hazards of a working estate & vineyard we ask you to beas vigilant as possible when making your inspection for your own personal safety, particularly around the buildings, equipment, machinery and water.

Viewing: Strictly by confirmed appointment with the vendors’ agents, Strutt & Parker in Exeter 01392 215 631.

Directions

Directions From Exeter take the A38 dual carriageway southbound. Exit and turn left onto the A3121, signed Ermington, Modbury & Yealmpton. At the roundabout take the second exit signed Loddiswell. Continue for 1.4 miles and turn right, signed Calancombe Vineyard. The property can be found 1 mile along this road on the right-hand side.

What3Words ///sundial.hugs.gardens

SatNav Enter 'Calancombe'

Viewing Strictly by confirmed appointment with the vendors’ agents, Strutt & Parker in Exeter 01392 215 631.

Read more
  • Floorplan
  • Map & Street View
Map View Street View
Get Directions
Have a property you want to sell?
Ref: SWE250027
Interested in this property?
Guide Price
£1,575,000