Lewes East Sussex BN7 3NF Newhaven Road, Kingston

Guide Price
£1,850,000
  • 3
  • 4
  • 3
  • Freehold
  • E Energy Efficiency Rating
  • G Council Band
Ref: LEW260010
Interested in this property?
Guide Price
£1,850,000

An impressive detached house with elegant modern styling,

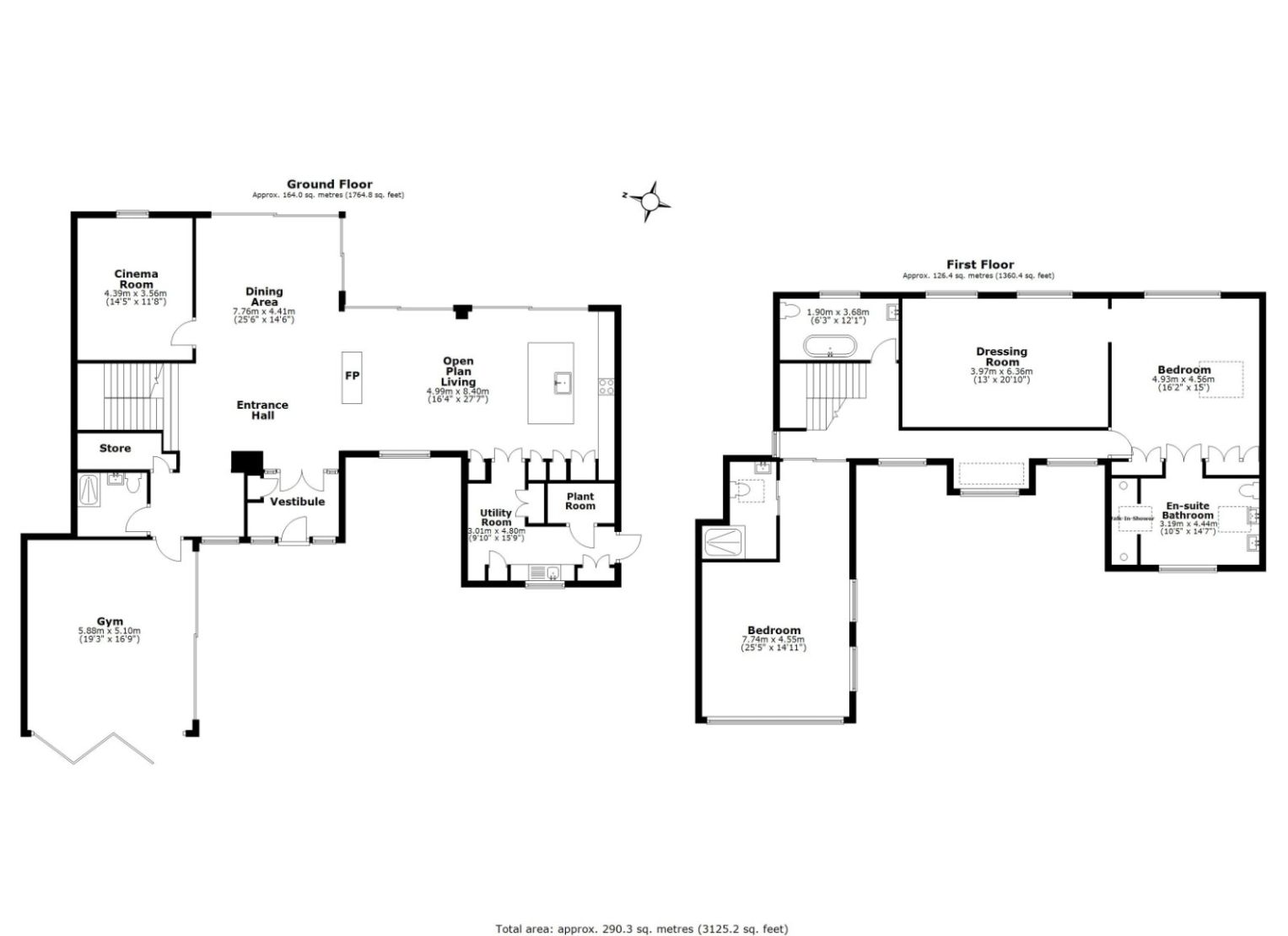
Castle Mead is a stunning detached home with striking modern styling both inside and out. The property has white rendered elevations and full-height windows that welcome an abundance of natural light into the living spaces. The accommodation is presented in a neutral colour palette, enhancing the sense of space and light, while the fittings and overall styling offer minimalist contemporary elegance throughout.The heart of the home is the open-plan, L-shaped reception room, which is oriented to the rear and opens onto the garden across the entire back wall via sliding glass doors, creating a stunning inside/outside living and entertaining space. There is a dining area with space for a large family dining table, as well as a sitting area, divided from the dining area by a central media unit and floating fireplace. The kitchen features sleek fitted units in white, a large central island and integrated appliances, plus a stainless steel range cooker, while there is also an adjoining utility room for further home storage and appliances. Additional ground-floor living space includes the fully equipped cinema room with its tiered seating, bespoke lighting and built-in cinema sound and vision system. There is also an impressive home gym with bi-folds and sliding glass doors to two aspects, which could be used as a further reception room in which to relax if preferred.Upstairs there are two generous, well-appointed double bedrooms. These include the luxury principal bedroom with its built-in wardrobes and exquisite en suite bathroom, with dual washbasins, freestanding bathtub and walk-in dual shower. The dressing room adjoining the principal bedroom provides the potential for conversion into a third bedroom. The other bedroom is also generously proportioned and features a full-height, west-facing gable-end window and an en suite shower room. Additionally, the first-floor landing provides access to a family bathroom

Outside

At the front of the property, the driveway provides plenty of parking space for several vehicles, while the west-facing front garden has lawn either side of the driveway, with various mature trees and established, high border hedgerows providing a sense of peace and privacy. At the rear, a large patio area provides ample space for al fresco dining, with a lawn beyond, also sheltered and protected by high hedgerows and mature trees for a secluded and private atmosphere.

Situation

The property is situated in a picturesque South Downs setting just to the south of Lewes and on the edge of the village of Kingston. The village and neighbouring Iford provide several everyday amenities between them, including a primary school, while the historic county town of Lewes provides a choice of shops, restaurants, cafés and leisure facilities, as well as supermarkets and a mainline train station (Victoria/London Bridge in approximately 64 minutes). There are plenty of primary schools in the surrounding villages, while secondary schooling is available in Lewes, Newhaven and Peacehaven. Lewes is also home to the renowned independent Lewes Old Grammar School.

Directions

///apple.certified.drain - brings you to the driveway

Read more
  • Floorplan
  • Map & Street View
Map View Street View
Get Directions
Have a property you want to sell?
Ref: LEW260010
Interested in this property?
Guide Price
£1,850,000