Wareham Dorset BH20 4HT North Bestwall

Guide Price
£4,500,000
  • 7
  • 4
  • 5
  • Freehold
  • G Council Band
Ref: SWE250023
Interested in this property?
Guide Price
£4,500,000

Features at a glance

  • An unlisted, Arts and Crafts, six-plus bedroom country house
  • Heated outdoor swimming pool
  • Overlooking own lake and island
  • Direct access into Poole Harbour
  • Mooring on the River Frome by separate negotiation
  • Planning permission for third floor suite plus new stable courtyard and orangery
  • Extremely private & quiet location
  • Incredible wildlife
  • Excellent sporting and landscaping opportunities
  • In all about 160 acres (65ha)

Exclusive waterside estate with abundant wildlife

Situation

Within minutes of Wareham’s thriving town centre lies Bestwall Park, commanding exceptional seclusion on a largely private peninsula. The rivers Frome and Piddle, together with Poole Harbour, form natural boundaries around this remarkable property, which stands entirely free from neighbouring development. Access is provided by two entrances of contrasting character: a lengthy, tree-shaded route arrives from the west, while a far more dramatic approach winds up from the south. This southern drive meanders through meadowlands teeming with wildlife—a defining feature of the estate—before skirting the private lake, where stands of willow frame glimpses of the magnificent Arts and Crafts house that lies beyond. From the residence itself, dramatic views to the south west sweep across lake and island, over parkland and onwards to the Purbeck Hills and the western edge of Poole Harbour.

Location

Among Dorset’s loveliest market towns, Wareham serves as gateway to the Isle of Purbeck. An intercity train service connects to London Waterloo in just over 2 hours. Magnificent scenery and rugged coastal landscapes have made this area famous, now recognised as part of the World Heritage Jurassic Coast. Local facilities include an 18-hole golf course, a cinema and sports centre. At Studland, Swanage and Sandbanks, wonderful beaches provide excellent bathing. Within easy motoring distance lie the larger towns of Poole (9 miles) and Bournemouth (13 miles). A number of excellent independent and state schools can be reached within 30 minutes by car.

Sporting & Wildlife

A well known haven for birdlife, Bestwall attracts migratory species to join rare wading birds and waterfowl in residence. The 7-acre lake was purposefully designed—based on expert guidance from Slimbridge’s Wetlands Advisory Service—to create secure and varied habitats.During the season, the water meadows at Bestwall Park provide duck flighting opportunities, with many sporting birds on offer. As renowned trout rivers, both the Piddle and Frome support healthy numbers of wild brown trout and other species that thrive in both waters. Comprising approximately one mile of single bank fishing on the Piddle, the fishing at Bestwall Park primarily targets trout, though salmon sightings are often reported.

Mooring Rights

Bestwall Park benefits from a private mooring on the River Frome, available by separate negotiation. Direct access into Poole Harbour is permitted by this mooring, where he current owners have maintained a 6.5m RIB. As the only established mooring on the east side of the Frome, this facility is complemented by a number of possible mooring sites on the River Piddle. Further details are available from the vendor’s agent.

History

Between 1991 and 2004, a 13-year archaeological investigation uncovered the peninsula’s remarkable history. The dig produced Neolithic and Mesolithic remains alongside a Bronze Age collection currently exhibited at Dorchester Museum, plus significant finds from Roman and Civil War periods. The Holme oaks surrounding the main house have been dated back 10,000 years. In 1911, Bestwall Park was constructed to exacting specifications with rendered elevations beneath a tiled roof. Attribution to renowned architect C F A Voysey (1857-1941) persisted for many years, though more recent scholarship suggests the likely designer as one of his former students.

Bestwall Park

Well-proportioned accommodation throughout the house displays many attractive period features: stone mullion windows with leaded lights, parquet flooring, original door furniture, fireplaces and woodwork all contributing to the substantial character. Fireplaces have been opened up in the main rooms and the fire surrounds showcase specimen samples of local Purbeck stone—quarried by renowned Purbeck stonemasons ‘Haysom’, including the grandson of the stonemason who worked on the original construction.

Since purchasing the house in 2001, the present owners have undertaken a sympathetic and extensive restoration programme. The magnificent kitchen/family room stands as a particular highlight, having been created from four separate rooms. Across a lovely expanse of polished Purbeck stone flooring, six full-height French windows with shutters look towards the stone terrace, garden and lake beyond. A comprehensive range of appliances including an Aga equips the bespoke, handmade kitchen, where Purbeck marble and American white oak combine to create attractive work surfaces.

Though the kitchen undoubtedly forms the heart of the home, several beautifully proportioned southfacing reception rooms provide settings perfect for both formal gatheringsand private family occasions. A sitting room, drawing room and library offer generous entertaining space. In the atrium created between the sitting room, kitchen and hall, the charming loggia creates an ideal setting for more intimate summer gatherings. The pristine, original butler’s pantry presents another noteworthy feature.

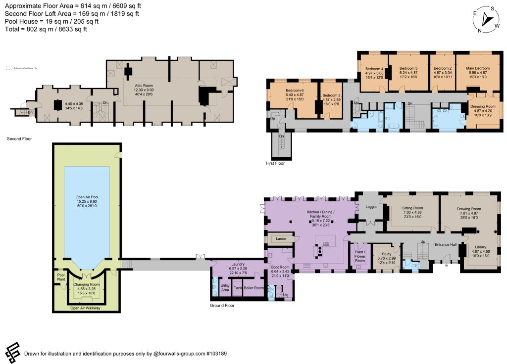
Occupying the western end of the house, the principal bedroom suite on the first floor includes a separate dressing room and bathroom. A further five double bedrooms all enjoy southern aspects with views over the lake and parkland and two further bathrooms serve this floor. Work has begun on the second floor to create two additional bedrooms and bathrooms, along with a spectacular, loft-style, doubleheight reception room. Already installed according to building regulations are a new cedar ceiling, new hardwood dormer windows and a steel roof frame, with insulation and soundproofing within the roof and floor.

Outside

A large gravel area on the northern side of the house provides parking and turning space, with room for plenty of cars. Through a pedestrian gate set within a stone wall, access opens to the main garden area south of the house. Running down to a pontoon on the wonderful lake, the lawned garden provides access to both the island and a second pontoon. Outstanding views can be enjoyed from the attractive Purbeck stone terrace that lies immediately south of the house. East of the house, a sunken Moroccan-style heated swimming pool offers saltwater bathing in the open air. Year-round use is enabled by a sliding, French-designed canopy, while a delightful tiled hammam shower and changing room with underfloor heating completes the facility.

A productive kitchen garden includes a fruit cage and espaliered fruit trees, a small greenhouse and tool shed/kennels.

A substantial building sits along the back drive measuring approximately 60’ x 15’ and of brick and rendered elevations under a tiled roof. Divided into 5 sections including an old apple store with drawers, this building currently serves as garaging and storage.

Equestrian

Excellent equestrian facilities comprise a stable block with 5 loose boxes, a separate reinforced tack room, and field shelter with several fenced paddocks in close proximity.

Land

Since 2001, the current owners have, through considerable effort, restored and maintained the land, returning it from its quarried origins to its natural beauty. With a total of 160 acres, there is plenty of space to accommodate a range of needs. Land uses range from grazing paddocks to water meadows, woodland and lakes, with plenty of wild areas for family fun as well as the more formal grounds around the house. The island particularly has been the setting for many ‘Swallows and Amazons’ adventures.

Views from the centrally located house extend across the lawn and unfenced hay field to overlook the lake and island. On the western side of the holding, there is an attractive 17 acre permanent pasture field which has been partly drained and levelled for polo use. Near the stables to the east, a number of post and rail paddocks can be found, while southwards beyond the lake, further pasture runs down to aprotecting belt of mature trees.

The land to the north of Bestwall Park is bordered by the River Piddle and comprises ancient water meadows registered as a Site of Special Scientific Interest (SSSI). Similarly, the land to the south (not owned by Bestwall Park) is also SSSI and bordered by the River Frome. Together, the two SSSI’s border the estate, ensuring permanent protection from development. The water meadows on offer have a separately metered water supply and are used for grazing from April to October under a grazing licence.

General

Method of sale: Bestwall Park is offered for sale as a whole by private treaty.

Tenure: The property is sold freehold with vacant possession on completion.

Services: Bestwall Park benefits from mains water, single phase electricity, private drainage and oil fired central heating.

Strutt & Parker has not confirmed whether or not the private drainage is compliant with current regulations.

Mobile coverage and broadband information can be found here: https://checker.ofcom.org.uk/engb/mobile-coverage

EPC: Band F

Council Tax: Band G

Wayleaves, easements and rights of way: The property is being sold subject to and with the benefit of all rights including rights of way, whether public or private, light, support, drainage, water and electricity supplies and other rights and obligations, easements and quasi-easements and restrictive covenants and all existing and proposed wayleaves for masts, pylons, stays, cables, drains, water and gas and other pipes whether referred to in these particulars or not.

There are public footpaths over the land. Further details are available from the vendor’s agent.

Schemes: The majority of the land is entered into an Higher Level Scheme which is due to expire at the end of December 2028.

The purchaser will be deemed to have full knowledge of the scheme(s) and will take it on and comply with the scheme from completion if necessary. The vendor will retain any payments payable up to completion. Further details are available from the vendor’s agent.

Designations: Part of the property lies within the Arne Reedbeds National Nature Reserve and the Dorset National Landscape.

Sporting and timber rights: All sporting and timber rights are included in the freehold sale, in so far as they are owned. Felled timber at the time of exchange of contracts is not included in the sale and will be sold by the Vendor.

Mineral rights: The mineral rights are excluded from the sale as they are owned by a third party.

Planning: 6/2019/0262 - new drive (completed), 6/2003/0164 – the swimming pool and hammam have been completed and the top floor of the house is underway. Permission was also granted for a large orangery off the western end of the drawing room and a large stable block and storage area, creating a courtyard immediately opposite the back door of the house.

Fixtures and fittings: All items usually regarded as tenant’s fixtures and fittings and equipment, including fitted carpets, curtains and poles, together with garden ornaments, furniture and statuary, are specifically excluded from the sale. These may be available to the purchaser by separate negotiation.

Covenants and/or restrictions: There may be restrictions / covenants listed on the Land Registry Title deed, details of which will be made available by the vendors solicitors on request.

Plans, Areas and Boundaries: Any representation by the owner or agent is indicative only and should not be relied upon without clarification from a legal advisor.

Local authority: Dorset County Council.

VAT: Any guide price quoted or discussed is exclusive of VAT. In the event that a sale of the property, or any part of it, or any right attached to it, becomes a chargeable supply for the purposes of VAT, such tax will be payable in addition.

Health and safety: Given the potential hazards of a landed estate with machinery and water, we ask you to be as vigilant as possible when making your inspection for your own personal safety, particularly around the water, farm buildings and machinery.

What3Words: ///final.cavalier.clashing

Viewing

Strictly by confirmed appointment with the vendor’s agents, Strutt & Parker in Salisbury on 01722 344 010, or London 020 7629 7282

This property has 160 acres of land.

Read more
  • Floorplan
  • Map & Street View
Map View Street View
Get Directions
Have a property you want to sell?
Ref: SWE250023
Interested in this property?
Guide Price
£4,500,000

National Country House Department

43 Cadogan Street
London
SW3 2PR

+44 20 7591 2213