London W8 6NT Pembroke Road, Kensington

Asking Price
£680 per week
plus charges
  • 2
  • 1
  • D Energy Efficiency Rating
  • E Council Band
Ref: KSL140083
Interested in this property?
Asking Price
£680 per week
plus charges

Features at a glance

  • Reception room
  • Kitchen
  • Two bedrooms
  • Bathroom
  • Garden

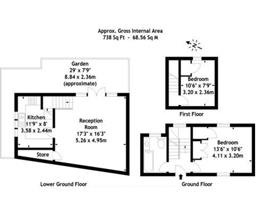
A charming two bedroom cottage with its own front door, occupying approximately 738 sqft, with a private paved garden.

The property is in excellent decorative order throughout, with accommodation arranged over three floors. There is a generous reception room with wood flooring and French doors leading onto the garden behind; a modern, neutral kitchen; two bedrooms with storage; and a bathroom.

Pembroke Villas is located just south of Kensington High Street, within an easy walk of the shopping and transport facilities of both Kensington and Earls Court. Holland Park is also nearby.

Read more
  • Floorplan
  • Map & Street View
Map View Street View
Get Directions
Have a property you want to sell?
Ref: KSL140083
Interested in this property?
Asking Price
£680 per week
plus charges

Kensington Estate & Letting Agents

103 Kensington Church Street
London
W8 7LN

+442079383866