Stratford-upon-Avon Warwickshire CV37 8NG Preston on Stour

Guide Price
£1,550,000
  • 5
  • 3
  • 4
  • Freehold
  • E Energy Efficiency Rating
Ref: MRT150152
Interested in this property?
Guide Price
£1,550,000

Features at a glance

  • Detached Grade II listed house
  • 4 reception rooms
  • Kitchen/breakfast room
  • 5 bedrooms
  • 3 bathrooms
  • Swimming pool
  • Garaging, parking and stores
  • Garden & grounds
  • About 0.9 of an acre

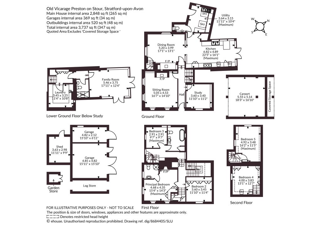
Listed Old Vicarage

The Old Vicarage is a charming, traditional home, dating from the 17th century, with later additions. Beautifully presented, the property mixes the traditional with the new and has an excellent balance of accommodation arranged over three floors. Listed Grade II , features include exposed beams, fireplaces and sash windows, along with a modern kitchen and modern bathrooms. The front door opens into a hall, off which are three principal reception rooms, the kitchen/breakfast room and adjacent large utility room. Steps from the hall lead down to a laundry room, shower room/wc and family room. The main staircase leads to the first floor where there are three bedrooms and two bathrooms, one of which is en-suite. There are two further bedrooms accessed by their own staircases.

This property has 0.9 acres of land.

Outside

The Old Vicarage stands in just under an acre of attractive and mature gardens and grounds which are predominately lawned with a number of terraces divided by hedging and pergolas. Within the garden is a swimming pool and a variety of mature trees. There are two areas of parking – one to the north of the house and one to the south. The former has a double carport, whilst the latter has a garage and stores. This building has had planning permission for an office, which has now lapsed. Planning: Prospective purchasers are advised that they should make their own enquiries of the local planning authority

Situation

The village, unspoiled by new developments, is in the heart of the Conservation Area. Many of the properties belong to the Alscot Estate and the village is well-maintained with a strong community, and includes St Mary’s Church, the village hall and village shop. The village has origins reaching back to the Domesday Book and is surrounded by historic parkland and protected countryside. Development is tightly controlled, preserving both its setting and long-established character. There is access onto an extensive network of footpaths and bridleways over the Alscot Estate, which includes a walk to Stratford-upon-Avon. The nearby village of Alderminster has a pub and farm shop. Stratford-upon-Avon is just 4 miles away providing for most leisure, educational and shopping facilities including a Waitrose store on the Preston on Stour side of the town. Warwick Parkway and Moreton-in-Marsh have rail services into London and the North. There is access to an excellent selection of schools including The Croft Preparatory School and the boys and girls Grammar schools in Stratford-upon Avon.

Read more
  • Floorplan
  • Virtual Viewing
  • Map & Street View
Map View Street View
Get Directions
Have a property you want to sell?
Ref: MRT150152
Interested in this property?
Guide Price
£1,550,000