Salisbury SP5 2NX Redlynch

Guide Price
£5,275,000
  • 5
  • Freehold
Ref: SWE260014
Interested in this property?
Guide Price
£5,275,000

Features at a glance

  • Cottage in stunning position
  • Separate detached bungalow/plot (with AOC)
  • Farm buildings
  • Storage building and woodland
  • Strategic village centre land,
  • Arable and pasture farmland
  • Paddocks
  • About 295.98 acres in total
  • As a whole or in lots

A rarely available portfolio of cottages, buildings and land around the village of Redlynch

A mixed estate in a superb location on the edge of the New Forest offering two houses for refurbishment, up to 296 acres of land, agricultural barns and various buildings with alternative re-use potential.

Mileages Redlynch 1 mile, Salisbury 9.5 miles, Southampton 15 miles (London Waterloo approximately 65 minutes), Winchester 25 miles, London 90 miles

Lot 1A – Milkhills Park Farm About 132.89 acres (53.81 hectares) Guide Price £1,750,000 A range of farm buildings with productive arable land, pasture and woodland

Lot 1B – Shearings About 1.63 acres (0.66 hectares) Guide Price £400,000 A three-bedroom bungalow subject to an Agricultural Occupancy Condition, requiring refurbishment and with land and woodland

Lot 1C – Timberley Lane Building & Webbs Copse About 8.75 acres (3.54 hectares) Guide Price £250,000 A detached single storey building with roller shutter doors, paddock and woodland

Lot 2 – Mount Pleasant Farm About 43.28 acres (17.49 hectares) Guide Price £1,400,000 A period, un-listed farmhouse in need of complete renovation set in approximately 43 acres of pasture land & woodland with spectacular far reaching views

Lot 3 – Whiteshoot Farm About 51.70 acres (20.92 hectares) Guide Price £550,000 An attractive parcel of productive farmland comprising grass paddocks and woodland

Lot 4 – Paddocks west of Bohemia About 16.24 acres (6.57 hectares) Guide Price £300,000 Strategically located grass fields around the hamlet of Bohemia

Lot 5 – Land at Loosehanger About 23.88 acres (9.66 hectares) Guide Price £300,000 A parcel of farmland and a village centre paddock with a stream

Lot 6 – Land at Lover About 5.67 acres (2.29 hectares) Guide Price £100,000 A single field on the edge of the village

Lot 7 - Land at Cole’s Copse About 11.76 acres (4.76 hectares) Guide Price £225,000 Grazing fields on the edge of the village

In all about 295.98 acres (119.78 hectares)

Situation Discreetly positioned in the northern corner of the New Forest National Park, the portfolio of properties is situated around the highly desirable village of Lover and just to the east of the village of Redlynch.

Local amenities in Redlynch include a post office/store, village hall, church, two country pubs and two well renowned golf courses. A further selection of services can be found in the market town of Fordingbridge (7 miles) or the historic cathedral city of Salisbury (9.5 miles). The commercial centres of Southampton and Bournemouth on the south coast offer further excellent shopping and recreational facilities. A direct train service runs from Southampton Parkway station to London Waterloo taking about 65 minutes. Southampton Airport is 13 miles; Heathrow Airport is 69 miles.

The area is renowned for its excellent schools including Chafyn Grove, Salisbury Cathedral and Godolphin in Salisbury, whilst there is also The Gregg and King Edward VI at Southampton; Embley Park, Winchester College and St Swithun’s are also close by.

The New Forest was created by William the Conqueror in 1079 and is still largely in the possession of the Crown, comprising woodland, pasture, heaths and the remains of 17th, 18th and 19th century coppices and timber plantations. The Forest is grazed by the ponies, cattle and pigs of the local ‘commoners’ which add to the picturesque charm of the area. The Forest is a renowned walking and riding area in the south of England and is readily accessible from the property.

The land falls within the River Test catchment area which may present opportunities for Nutrient Neutrality offsetting. Buyers are asked to undertake their own research into any potential.

Lot 1A – Milkhills Park Farm About 132.89 acres (53.81 hectares) Guide Price £1,750,000

A productive parcel of farmland comprising level and gently sloping arable, grass and woodland with a range of farm buildings, lying just to the north and east of the village of Lover.

The main block of land is predominantly arable and is bounded on three sides by village lanes, with some permanent pasture paddocks on the lower ground with separate road access. A separate parcel of arable land with woodland lies opposite Milkhills Farm yard and another pair of arable fields sits across the road on the southern side. The land at the south of the farm is predominantly permanent pasture with parcels of mixed species woodland. There are no public rights of way.

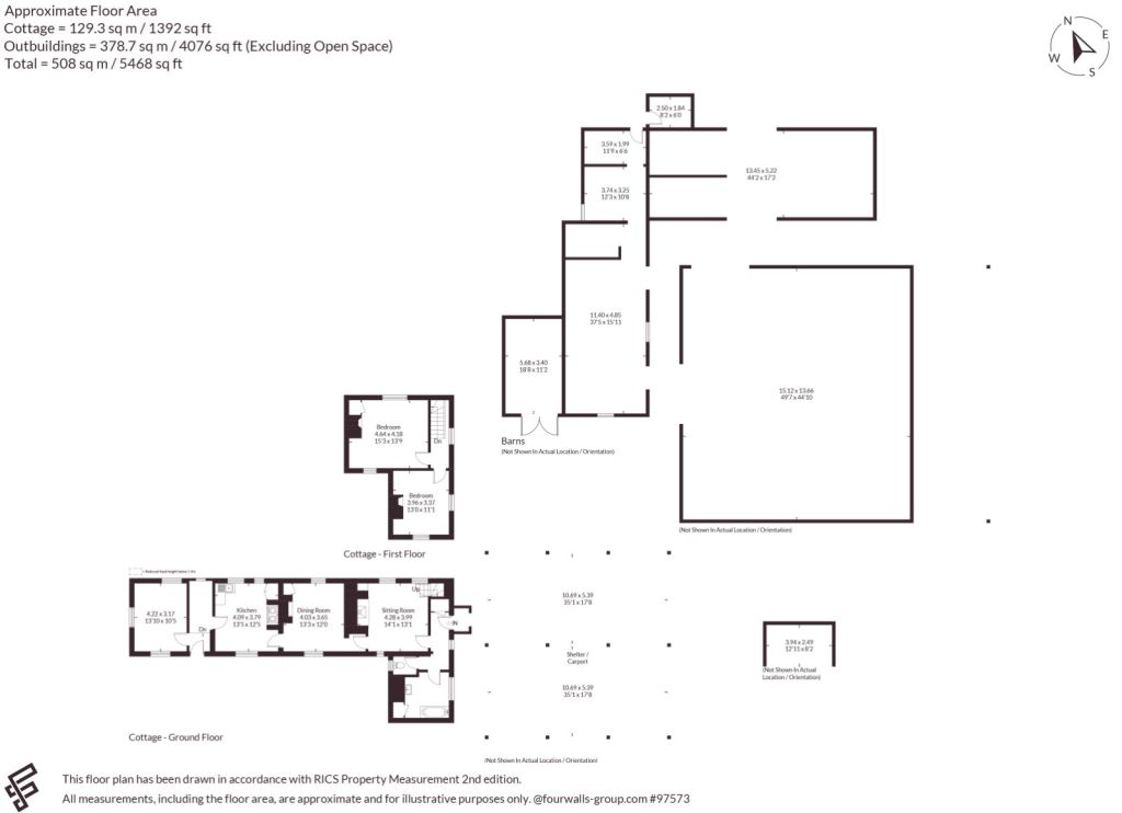
Included is a flexible range of buildings extending to over 15,000 square feet / 1,390 square metres, set around a concrete yard and offering potential for alternative re-use (subject to planning) that may include residential, storage, light industrial and commercial uses, or continued agricultural use. The yard has direct access from Gogg’s Lane and includes:

1A – Timber frame, enclosed on two sides (Yorkshire boarding), chalk floor 1B – Concrete frame, part Yorkshire boarding, part corrugated sheet walls to one side. Chalk floor 2 – Elevations of red brick, stone and concrete block with timber frame, corrugated sheet roof. Part single storey, part 1.5 storey with several internal rooms including kitchen, WCs, office, living room, bedroom. Has electricity, water & drainage. 3 – Mono-pitch steel frame with a corrugated sheet roof. Open on all sides. Concrete floor. 4A – Enclosed timber frame building with corrugated sheet sides and roof, concrete floor. Roller shutter door to front and three to rear loading area. Has electricity, and water. 4B – Lean-to to building 4A. Corrugated sheet sides and roof to front and timber frame and corrugated sheet roof to rear. Concrete floor. Open to rear. Large container doors to front. 5 – Steel frame, mono-pitch building with timber sides and corrugated sheet roof. Enclosed on three sides.

The farm buildings are set around a flat and level yard with excellent access onto the highway. They have mains water & electricity (single phase) and private drainage.

Lot 1B – Shearings About 1.63 acres (0.66 ha) Guide Price £400,000

Shearings is a detached, prefabricated bungalow requiring renovation or replacement (subject to planning), sitting in its own delightful gardens and benefitting from an additional paddock and woodland, in a popular rural location, outside of the National Park.

There is an Agricultural Occupancy Condition that restricts the occupation of the property to someone: “solely or mainly employed, or last employed, in the locality in agriculture… …or in forestry… …or a widow or widower of such a person”.

The accommodation comprises: entrance hall, sitting room, kitchen, three bedrooms, a bathroom and a separate WC.

The building is understood to be a ‘Woolaway” precast reinforced concrete construction, which may not be mortgageable in its current condition. The building is generally in fairly poor condition and the services are not in working order. There is also a prefabricated double garage within the plot.

The cottage extends in total to approximately 738 square feet and together with gardens and paddock offers significant potential for redevelopment, subject to the necessary consents, and could be an excellent location for a farmhouse for Milkhills Farm and wider land on offer.

Lot 1C – Timberley Lane Barn & Webb’s Copse About 8.75 acres (3.54 ha) Guide Price £250,000

A small concrete portal frame barn with mains water and electricity, together with an adjoining paddock and a parcel of woodland.

The building, which provides very useful storage, has concrete block walls, a corrugated metal sheet roof and a pair of roller shutter doors, each with a security bollard placed in front. The building fronts into a small gravel yard which is accessed off the public highway.

To the rear of the barn, accessed via a short track, is a grass paddock of just over 1 acre and to the side is a delightful parcel of woodland extending to around 7.49 acres with separate roadside access and recently replanted with oak and chestnut.

In the event they are sold separately, an agricultural right of way will be reserved along the track leading into Lot 1A.

Lot 2 – Mount Pleasant Farm About 43.27 acres (17.50 hectares) Guide Price £1,400,000

Brought to the open market for the first time in over 100 years, Mount Pleasant Farm offers a wonderful opportunity to acquire a period farmhouse with a significant parcel of rolling pasture land and range of brick, cob and steel framed agricultural buildings. Set on the edge of the New Forest National Park, Mount Pleasant Farm offers immense potential for redevelopment – subject to all relevant planning consents.

The property is accessed off Forest Road (the B3080) and sits on a ridge with spectacular views looking east and north. The farmstead is accessed by a private track passing through a belt of mature woodland, which provides privacy and protection for the farmhouse and buildings. The two storey farmhouse benefits from a long single storey extension and comprises, entrance hall, rear hall, sitting room, dining room, kitchen, bedroom, bathroom and separate WC on the ground floor. On the first floor there are two further bedrooms.

Mount Pleasant Farm is surrounded by informal gardens whilst the traditional and modern outbuildings/barns lie to the south of the house and themselves, require some renovation and repair. They comprise a concrete portal frame cattle yard, a timber framed and cob barn, and a red brick barn with adjoining store. The land comprises grass paddocks extending to about 35 acres with access from Loosehanger and Bohemia Lane. In addition, there is about 8 acres of woodland.

Lot 3 – Whiteshoot Farm About 51.70 acres (20.92 hectares) Guide Price £550,000

An attractive parcel of farmland comprising six good sized grass fields with significant opportunities for farming and/or equestrian use, together with mixed woodland. The land rises from Whiteshoot Hill road on the northern boundary up to Forest Road which runs along the southern boundary with access to The New Forest. There are about 35 acres of pasture and about 16 acres of woodland and a small former gravel pit along the northern boundary.

Field 5630, at the south of the property, sitting opposite land in Lot 2, has an old gateway which has been fenced off, from the unmade track along the southern boundary. It is understood this could be reinstated.

There are no public rights of way. The deer fencing was installed by the tenant and is not included in the sale, but it may be available by separate negotiation.

Lot 4 – Paddocks west of Bohemia About 16.24 acres (6.57 ha) Guide Price £300,000

An interlinked parcel of four grass paddocks laid out around the western side of the hamlet of Bohemia, south of Lover. The land includes a track off Whiteshoot Hill road from the north and has frontage to Loosehanger to the east and Bohemia Lane to the south. There are about 15 acres of pasture and about 0.6 acres of woodland in total. Due to its location around existing housing, the land may offer future development prospects, subject to planning.

A public footpath crosses field 9072 and continues along the track between fields 7063 and 7547. Another public footpath follows the track off Whiteshoot Hill road. There are no other public rights of way.

Lot 5 – Land at Loosehanger About 23.88 acres (9.66 ha) Guide Price £300,000

A parcel of bare land in the village centre including a paddock with mains water, accessed off School Lane and subdivided by a stream; and two arable fields with separate access off Loosehanger.

Due to its location close to existing housing, on the edge of the village, it may have some future development potential (subject to planning). Interested parties will need to undertake their own enquiries into planning and change of use potential.

Lot 6 – Land at Lover About 5.67 acres (2.29 ha) Guide Price £100,000

A single field with access from Black Lane, sitting behind a row of houses on Vicarage Road. There are no mains services connected.

The field would make an excellent grazing field for horses or livestock, or potentially as a recreational/amenity space. Alternatively, due to its location close to existing housing, on the edge of the village, it may have some future development potential (subject to planning). Interested parties will need to undertake their own enquiries into planning and change of use potential.

Lot 7 – Land at Cole’s Copse About 11.76 acres (4.76 ha) Guide Price £225,000

Attractive pasture paddocks on the edge of the village with access from Black Lane and from Vicarage Road. A stream runs between two of the fields (5232 and 5016) and there are mature parkland trees in the fields.

Note: the hardstanding and building on field 5929 is not included in the sale.

It is understood there was historically access between fields 5232 and 5929 which has grown over and would need to be restored, but the fields are currently accessed only via the tenant’s privately owned property.

The land would make an excellent grazing field for horses or livestock, or potentially as a recreational/amenity space. Alternatively, due to its location close to existing housing, on the edge of the village, parts of the property may have some future development potential (subject to planning). Interested parties will need to undertake their own enquiries into planning and change of use potential.

General

Method of sale The property is offered for sale as a whole or in lots, with a deadline for offers of Wednesday 22nd July 2026. Please contact the selling agent for further details and to register your interest.

Tenure, Services, EPCs, Council Tax The property is sold subject to the leases, licenses and agreements as outlined in the sales brochure. Further details are available from the vendors’ agent.

There is a lease of sporting rights across Lots 1 to 6, permitting the shooting of deer, running to 1st March 2027, with a break clause for early surrender.

Mobile coverage and broadband Information can be found here: https://checker.ofcom.org.uk/engb/mobile-coverage

Wayleaves, easements and rights of way The property is being sold subject to and with the benefit of all rights including; rights of way, whether public or private, light, support, drainage, water and electricity supplies and other rights and obligations, easements and quasi-easements and restrictive covenants and all existing and proposed wayleaves for masts, pylons, stays, cables, drains, water and gas and other pipes whether referred to in these particulars or not.

We understand that the private drainage at this property may not comply with the relevant regulations. Further information is being sought.

There are public rights of way over the property.

Schemes None.

Designations The property is all within a Nitrate Vulnerable Zone and all Lots except Lot 1B (Shearings) are within the New Forest National Park.

Sporting, timber and mineral rights All sporting, timber and mineral rights are included in the freehold sale, in so far as they are owned.

Planning All enquiries as to current and any future proposed uses of the property are to be directed to the Local Planning Authority.

Overage An overage will be applied for 25% of the value of any planning consent for non-agricultural and non-equestrian uses within the next 30 years on parts of Lots 3, 4 & 5 as shown cross hatched on the plan.

Fixtures and fittings All items usually regarded as tenant’s fixtures and fittings and equipment, including fitted carpets and curtains, together with garden ornaments and statuary, are specifically excluded from the sale. These may be available to the purchaser by separate negotiation. The deer fencing in Lot 3 (Whiteshoot) is excluded from the sale but may be available by separate negotiation with the tenant.

Covenants and/or restrictions There may be restrictions / covenants listed on the Land Registry Title deed, details of which will be made available by the vendors’ solicitor on request.

Plans, areas and boundaries Any representation by the owner or agent is indicative only and should not be relied upon without clarification from a legal advisor.

Local authority New Forest District Council, Appletree Court, Beaulieu Road, Lyndhurst, SO43 7PA www.newforest.gov.uk Tel: 02380 285 000

VAT Any guide price quoted or discussed is exclusive of VAT. In the event that a sale of the property, or any part of it, or any right attached to it, becomes a chargeable supply for the purposes of VAT, such tax will be payable in addition.

Health and safety Given the potential hazards of a working farm and houses in poor condition we ask you to be as vigilant as possible when making your inspection for your own personal safety, particularly around farm buildings and machinery and the houses.

Viewing Strictly by confirmed appointment with the vendors’ agents, Strutt & Parker.

This property has 295.98 acres of land.

Situation

Situation Newhouse is a truly magnificent Grade I Listed country house set in a beautiful private location with fine views over its own parkland and woodland beyond. Discretely positioned on the north eastern corner of the New Forest National Park, the Estate is situated around the highly desirable village of Lover and just to the west of the village of Redlynch.

Local amenities in Redlynch include a post office/store, village hall, church, two country pubs and two well renowned golf courses.

A further selection of services can be found in the market town of Fordingbridge 7 miles or the historic cathedral city of Salisbury 9.5 miles to the north. The commercial centres of Southampton and Bournemouth on the south coast offer further excellent shopping and recreational facilities. A direct train service runs from Southampton Parkway station to London Waterloo taking 65 minutes. Southampton Airport is 13 miles and has private aircraft facilities; Heathrow Airport is 69 miles.

The south coast provides access to numerous water sports facilities including yachting at Lymington, Beaulieu, Hamble and Poole. The area is renowned for its excellent schools including Chafyn Grove, Salisbury Cathedral and Godolphin in Salisbury, whilst there is also The Gregg and King Edward VI at Southampton; Embley Park, Winchester College and St Swithun’s are also close by.

The New Forest The Forest was created by William the Conqueror in 1079 and is still largely in the possession of the Crown, comprising woodland, pasture, heaths and the remains of 17th, 18th and 19th century coppices and timber plantations. It is grazed by the ponies, cattle and pigs of the local ‘commoners’ which add to the picturesque charm of the area. The Forest is a walking and riding paradise unmatched anywhere in the south of England.

Directions

Directions Exit the M27 at junction 2 and follow the signs to Salisbury on the A36 for 7.5 miles until immediately after a large lay-by followed by a brick and flint barn on the left hand side there is a small crossroads. Turn left at the crossroads on to Moor Lane. Continue on Moor Lane for about 2 miles (passing a signed secondary entrance to Newhouse) until you reach a T junction. Turn left, and continue past a right turn to Lover and the entrance drive is found after 100m on the left hand side.

Read more
  • Floorplan
  • Map & Street View
Map View Street View
Get Directions
Have a property you want to sell?
Ref: SWE260014
Interested in this property?
Guide Price
£5,275,000