Crediton Devon EX17 1BG Shobrooke

Guide Price
£5,750,000
  • 11
  • 5
  • Freehold
  • H Council Band
Ref: LON250030
Interested in this property?
Guide Price
£5,750,000

Features at a glance

  • An exceptional country house
  • 11 bedrooms
  • Separate lodge with 3 bedrooms
  • Indoor swimming pool and gym
  • Superb equestrian facilities including indoor sand school
  • Stables
  • Walled garden
  • Pastureland and woodland
  • About 60 acres in all

An exceptional country house set in approximately 60 acres with an additional Lodge House

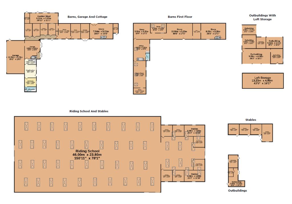
The Sanctuary is an exquisite country house and estate, offering a magnificent house, additional self-contained accommodation, and extensive outbuildings including fantastic equestrian facilities. The property is set within 60 acres of beautiful gardens and rolling grounds, in a sought-after position just outside the village of Shobrooke.

The house itself combines handsome period details with elegant, understated contemporary décor to create a refined yet comfortable country house. Rich wood panelled reception rooms include the inner reception hall with its stained-glass, stone-mullion windows, as well as the generous billiards room, both of which have handsome fireplaces with ornately carved wooden surrounds, with the latter fitted with a log burner. Additional reception rooms include the airy drawing room and the formal dining room, as well as the cosy snug, the sun room, the conservatory and two studies, while the generous kitchen and breakfast room also provides social everyday living space, with its triple aspect, electric Aga and central island.

Three staircases provide access to the first floor, where there are 11 beautifully presented bedrooms. These include the principal bedroom with its en suite bathroom and picturesque views across the surrounding gardens and grounds. In total there are a further five bathrooms. The detached Lodge offers useful further accommodation for guests, lodgers or family members. It includes two ground-floor reception rooms and a well-equipped kitchen, while upstairs there are three bedrooms, plus a family bathroom. Further self-contained accommodation includes The Cottage, with its large sitting and dining room, separate kitchen and one double bedroom en suite.

This property has 60 acres of land.

Outside

The house is set within breathtaking gardens and grounds, which extend to 60 acres and include open fields and paddocks for equestrian activities. The formal gardens include an early 19th century ‘Crinkle Crankle’ walled garden with pristine lawns and paved terracing for al fresco dining. Within the walled garden is the pool house with its stunning indoor swimming pool, gym and changing and shower facilities. The gardens also include a walled kitchen garden and beautiful open, rolling lawns, as well as parkland beyond with meadows, woodland and open fields. Outbuildings include the indoor sand school and extensive stabling, as well as a tack room and feed room. Additional stables are accessible from the main yard, as are the further extensive outbuildings, centred around the cobbled courtyard, which include a Victorian dairy, workshops, stores, garaging, office space and a games room. There is also the potential for further development of many of the current outbuildings, subject to the necessary consents. The wider grounds include paddocks and open pastureland, which are ideal for hacking or grazing livestock

Situation

The property is idyllically located on the edge of the charming Devon village of Shobrooke, surrounded by attractive rolling countryside and offering a peaceful rural setting while remaining within easy reach of local amenities. The nearby market town of Crediton provides a good range of independent shops, cafés, restaurants and everyday services, together with schools and leisure facilities. The historic cathedral city of Exeter is also easily accessible, offering a wider selection of shopping, cultural and recreational opportunities, along with excellent dining and entertainment. There are well-regarded schools in the area, including Queen Elizabeth’s School and Blundell’s School. Transport connections are strong, with rail services from Crediton linking to Exeter and beyond, while the M5 motorway provides convenient access to the wider motorway network and the south west.

Read more
  • Floorplan
  • Map & Street View
Map View Street View
Get Directions
Have a property you want to sell?
Ref: LON250030
Interested in this property?
Guide Price
£5,750,000