Gerrards Cross Buckinghamshire SL9 8JH South Park Drive

Guide Price
£1,850,000
  • 4
  • 3
  • 2
Ref: GDX250114
Interested in this property?
Guide Price
£1,850,000

Features at a glance

  • Mews style town house
  • 4 bedrooms
  • 3 bathrooms
  • Kitchen/dining/living area
  • Drawing room
  • Off street parking
  • Landscaped garden

A stunning and spacious mews style home ideally located within striking distance of the town centre

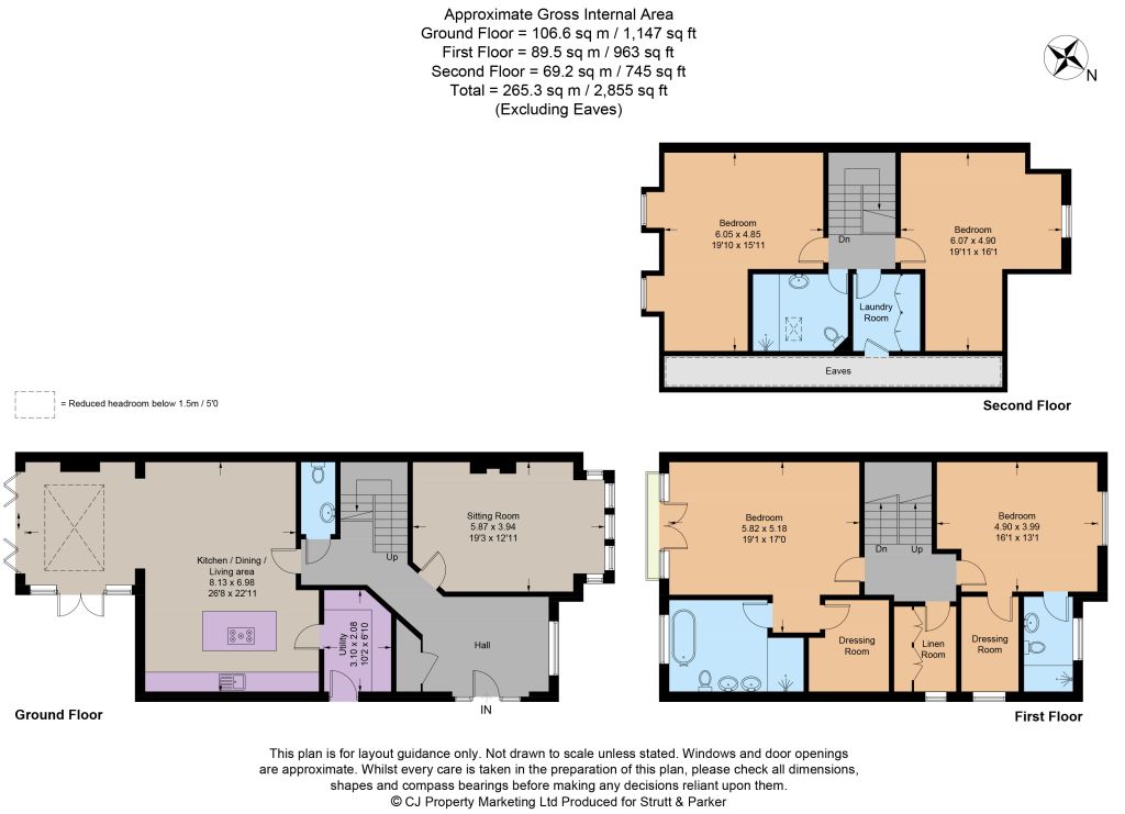
This beautifully presented home was constructed to an exceptional specification approximately ten years ago, and has since been tastefully and stylishly enhanced and extended by the current owner.

A large and impressive reception hall entices you through to rest of the ground floor, which includes a fabulous kitchen/dining room/living area with luxurious orangery beyond, which features a fitted living flame fire. The Kitchen area is superbly equipped with an extensive range of high quality units and domestic appliances. There is a useful secondary kitchen with a range of matching units. A grand yet cosy drawing room with a gas fire and large bay window. Also on the ground floor is a very plush cloakroom.

On the first floor, there a two very impressive bedrooms, each with ensuite bathrooms and dressing rooms. The principal suite also feature a Juliette balcony with lovely far reaching views. The first floor also incorporates a linen room. From the landing, stairs rise again to the 2nd floor, where there are two further gorgeous bedrooms, one of which is currently used as a very smart office. There is an addition bathroom on this floor and a laundry room.

Outside

The property is approached through an electric security gate where there is parking for three cars and privacy ewe hedging along with cherry trees, pleached hornbeam trees and grasses. The rear garden has been cleverly landscaped including a generous patio area creating an ideal area for outside entertaining. The garden is well screened for privacy and is laid mainly to lawn with well stocked flower beds, a water feature and feature spot lighting.

Situation

Gerrards Cross town provides excellent shopping, including Waitrose and Tesco, as well as a host of independent stores, restaurants, public houses, an Everyman cinema and community library. Local sporting amenities are excellent and include Gerrards Cross Squash Club, Bull Lane Tennis Club, Gerrards Cross Golf Club and Dukes Wood Sports Club, the latter offering tennis, cricket and hockey.

Buckinghamshire is celebrated for its outstanding educational options, both state and independent schools.

Read more
  • Floorplan
  • Map & Street View
Map View Street View
Get Directions
Have a property you want to sell?
Ref: GDX250114
Interested in this property?
Guide Price
£1,850,000