Chippenham Wiltshire SN15 3JN St Mary Street

Guide Price
£1,750,000
  • 6
  • 4
  • 3
  • Freehold
  • E Energy Efficiency Rating
  • F Council Band
Ref: CSD242158
Interested in this property?
Guide Price
£1,750,000

Features at a glance

  • Elegant town house
  • Separate one bedroom cottage
  • 5/6 bedrooms
  • 3 reception rooms
  • West facing walled garden with gazebo
  • Parking for two cars
  • Period features throughout
  • Exquisitely presented

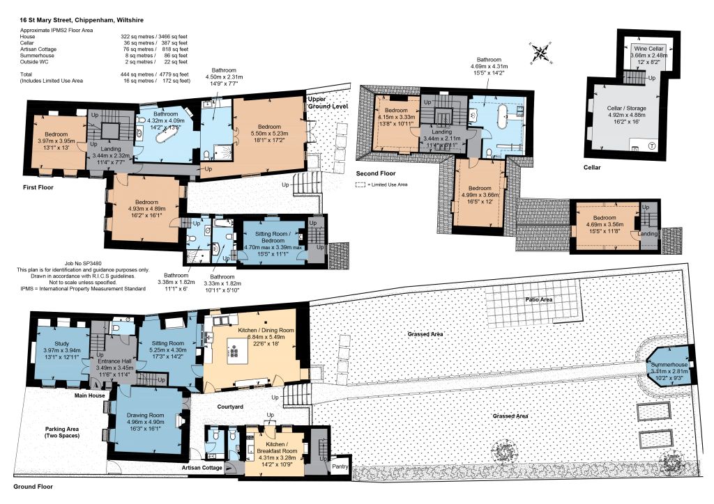
A beautifully presented and immensely elegant town house with a private walled garden and cottage

Gwalter House

An historic house, believed to be of Tudor origins and later adapted in the Queen Anne style, Gwalter House is Grade II* listed and a fine example of period architecture, seamlessly blending historic character with modern comforts. Refined and generously proportioned, this family home is exquisitely presented throughout and is within easy reach of the river, Monkton Park and the mainline station. St Mary Street was described by John Betjeman as “one of the most beautiful streets in England.”

The impressive entrance hall, with its exposed galleried staircase and Bath stone flooring, creates a striking first impression. The ground floor accommodation is thoughtfully arranged and includes a drawing room, a separate sitting room with a working stone fireplace, a charming study, and a stylish handcrafted kitchen/dining room with exposed stone walls. There is also a wine cellar and guest cloakroom. All principal rooms feature working fireplaces.

On the first floor are three large, individually designed double bedrooms, two with luxurious en suite bathrooms. The largest bedroom is light-filled and opens directly onto the garden through double doors. Features across the bedrooms include elm flooring and original Queen Anne panelling, while a further spacious panelled bathroom, complete with a roll-top bath, adds a touch of classic luxury. Large Queen Anne sash windows flood the rooms with natural light, highlighting both the scale and period character of the interiors.

The second floor is equally impressive, offering two more double bedrooms with stunning views, along with a charming bathroom featuring a roll-top bath, where original elm flooring and exposed roof beams add a sense of heritage.

Artisan Cottage

Located within the grounds of Gwalter House, Artisan Cottage is equally well-presented and offers additional accommodation for guests. Set over three floors, it has been sympathetically restored to reflect a traditional Wiltshire cottage, with exposed Bath stone walls and oak lintels. The ground floor features a kitchen/dining room with an original range, from which a staircase leads to a charming sitting room and handsome bathroom. A second staircase leads to a bedroom with exposed beams.

Outside

To the rear of Gwalter House, a stone courtyard complements the charm of the home and provides the perfect spot for morning coffee or evening relaxation. Steps lead up to the large, enclosed west facing walled garden, offering a private and secluded sanctuary.

At the far end of the garden stands a Grade II listed 19th-century gazebo, sympathetically converted with an inviting open fireplace, creating a flexible space for work or relaxation throughout the year.

Along the southern wall, a further paved terrace provides an additional peaceful area for outdoor enjoyment.

To the front of the house, there is off-road parking for two cars.

Situation

Chippenham is a traditional Wiltshire market town, on the edge of the Cotswolds, with an extensive range of shops, supermarkets, a cinema, restaurants and services, all of which are within close proximity of Gwalter House. Chippenham Station can be swiftly reached through the park, as well as by road (approx. 0.6 miles). The station provides direct rail services to London from 63 minutes and to Bath from 10 minutes. There are regular bus services from Chippenham to Bath as well as to various schools within Bath.

The main regional centres include Bath, Bristol and Swindon. St Mary Street, a no-through road and considered to be the most sought-after residential street in town, is characterised by its fine period houses and cottages.

Directions

Postcode: SN15 3JN

What3words: ///silver.resist.ranks

Read more
  • Floorplan
  • Map & Street View
Map View Street View
Get Directions
Have a property you want to sell?
Ref: CSD242158
Interested in this property?
Guide Price
£1,750,000