Cirencester GL7 5FY Waters Edge, Cerney Wick Lane, South Cerney

Guide Price
£1,000,000
  • 4
  • 3
  • 1
  • Freehold
Ref: CRN260020
Interested in this property?
Guide Price
£1,000,000

A beautifully designed lakeside residence with expansive open - plan living and a private terrace.

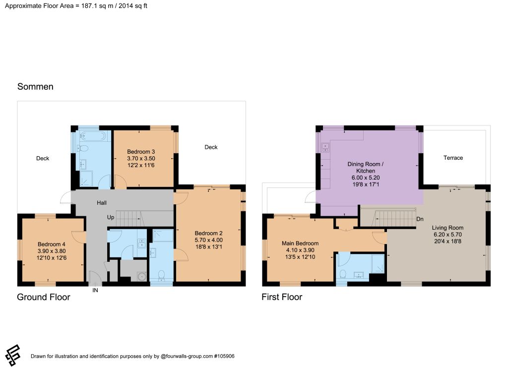
Plot 36 presents an exciting opportunity to construct The Sommen, a stylish contemporary home designed around a reverse-living concept that maximises the property’s position overlooking the lake. Combining modern Scandinavian inspired architecture with carefully considered internal planning, the design prioritises light, views and connection to the surrounding landscape. The external appearance reflects a contemporary aesthetic, incorporating natural timber and rendered finishes alongside large expanses of glazing. The design is intentionally focused on capturing the views and enhancing the indoor-outdoor lifestyle associated with waterside living.

A defining feature of the property is the elevated living accommodation positioned on the first floor, allowing the principal rooms to benefit from the best outlook across the water and surrounding countryside. From this level, sliding doors open onto a generous terrace extending toward the lake, creating an exceptional setting for outdoor dining, relaxation and entertaining. Glass balustrades maintain clear sightlines and reinforce the modern architectural style.

The first floor accommodation centres around a spacious open-plan kitchen, dining and living area designed to function as the social heart of the home. The layout has been carefully considered to provide a sense of separation between functional areas while retaining an open and connected feel. This arrangement is particularly well suited to entertaining guests or accommodating holiday visitors, offering both flexibility and comfort. The principal bedroom suite is also located on this level and benefits from direct access to its own private terrace, providing a peaceful and private outdoor retreat.

The suite includes an en suite bathroom and generous storage, creating a comfortable and self-contained living space. The ground floor accommodation provides three further bedrooms, including one with en suite facilities, together with a family bathroom. This arrangement offers practical separation between sleeping and living areas, making the property well suited to families or visiting guests. A separate utility room provides additional storage and laundry space.

From the ground floor, doors lead directly onto a striking cantilevered deck that projects over the water, offering a unique outdoor experience and further enhancing the property’s strong connection to its lakeside setting. Overall, the design of The Sommen successfully combines architectural interest with functional living space, resulting in a property that is both visually distinctive and highly adaptable.

Outside

Development overview

Waters Edge is an exclusive lakeside development comprising approximately fifty individual homes set around a picturesque freshwater lake within the wider Cotswold Water Park. The setting offers a peaceful and secure environment with a strong emphasis on lifestyle and leisure.

Residents benefit from access to a range of recreational opportunities, including non-motorised water sports, fishing and wildlife observation, all within a carefully managed and private environment. Entry to the development is controlled via secure electric gates, while the remaining plots are positioned toward the far end of the site, providing an additional sense of privacy and seclusion.

The location is particularly well suited to those seeking a second home, holiday investment or full-time residence within a tranquil waterside setting.

Read more
  • Floorplan
  • Map & Street View
Map View Street View
Get Directions
Ref: CRN260020
Interested in this property?
Guide Price
£1,000,000