Hythe Kent CT21 4EN Bluehouse Lane, Saltwood

Guide Price
£795,000
Ref: CAN260078
Interested in this property?
Guide Price
£795,000

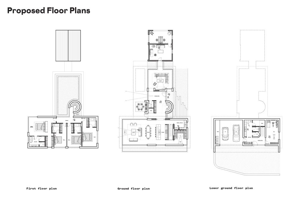
**BUILDING PLOT** An exciting opportunity to secure a site with consent to build a luxury home

The land at Bluehouse Lane is approximately 3.75 acres. It includes two derelict buildings and benefits from planning consent for the construction of an extremely generous, unique family home across 3 levels, thoughtfully designed by the award-winning architects at Hollaway Studios.

This bold scheme blends past and present in a seamless fusion of materials and design creating a landmark contemporary residence in a secluded setting. (Folkestone & Hythe District Council Planning ref: 24/1619/FH).

The preliminary room layout delivers 4 en-suite bedrooms, a large kitchen/dining/family space, snug, lounge, library, office, boot room plus a gym with a separate bathroom. This could be reconfigured to incorporate a separate annexe or further bedrooms as required. The principal rooms will all benefit from direct, west facing views across the site and the countryside beyond.

This property has 3.77 acres of land.

Outside

Set in and elevated position near the charming village of Saltwood, this attractive 3.77 acre plot enjoys far-reaching views across the surrounding hillside and open countryside. The land offers a wonderful sense of space and tranquillity. This site presents a rare opportunity for those seeking a picturesque setting in a highly desirable part of Kent.

Situation

The property is situated on the fringes of Saltwood, with amenities including a shop, a Michelin-star restaurant and primary schools. Nearby Hythe provides a comprehensive range of additional facilities, whilst Folkestone, Ashford and Canterbury provide further amenities and transport links.

The M20 gives convenient road connections, with Folkestone and Ashford International providing High-Speed rail services to London St Pancras. The local station at Sandling offers services to London St Pancras, Cannon Street, Charing Cross and Victoria.

Directions

CT21 4EN ///instance.wobbling.wolf takes you directly to the entrance

Read more
  • Floorplan
  • Map & Street View
Map View Street View
Get Directions
Have a property you want to sell?
Ref: CAN260078
Interested in this property?
Guide Price
£795,000