London SW6 6AB Bronsart Road

Asking Price
£1,154 per week
plus charges
  • 4
  • 2
  • C Energy Efficiency Rating
  • F Council Band
Ref: FHL210002
Interested in this property?
Asking Price
£1,154 per week
plus charges

A four bedroom family home, available in the desirable Munster Village, within nearby reach of several green spaces.

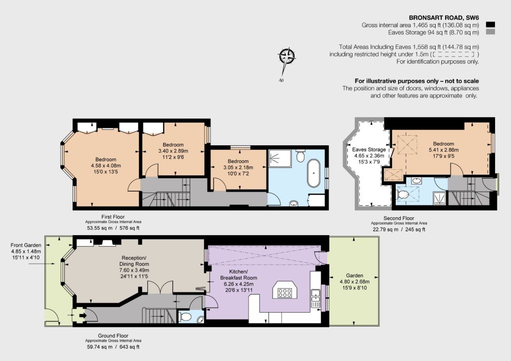
This lovely four bedroom family home is located on a quiet residential street in Munster Village. The house comprises a double reception room, leading onto a bright eat-in kitchen opening out onto a patio garden as well as a groundflooor cloakroom. The first floor includes the Principal bedroom along with two further double bedrooms and an incredibly generous family bathroom with a roll-top bath and separate walk-in shower. The top floor has a further large double bedroom as well as an additional bathroom and plenty of eaves storage. The property further benefits from currently being redecorated.

Bronsart Road is a quiet residential street moments from the shops, restaurants and transport facilities of Munster Road and a short walk from Parsons Green with its Underground station.

EPC Rating C

Read more
  • Floorplan
  • Map & Street View
Map View Street View
Get Directions
Have a property you want to sell?
Ref: FHL210002
Interested in this property?
Asking Price
£1,154 per week
plus charges

Fulham Estate & Letting Agents

701 Fulham Road
London
SW6 5UL

+44 20 7731 7100