Reading Berkshire RG7 4HQ Church Lane, Ufton Nervet

Guide Price
£2,250,000
  • 5
  • 5
  • 3
  • Freehold
Ref: SSH240094
Interested in this property?
Guide Price
£2,250,000

Features at a glance

  • Plot & Build Contract available for superb home
  • Available as plot for Self Build if preferred
  • 0.71 Acre Plot
  • Barns with planning for one dwelling
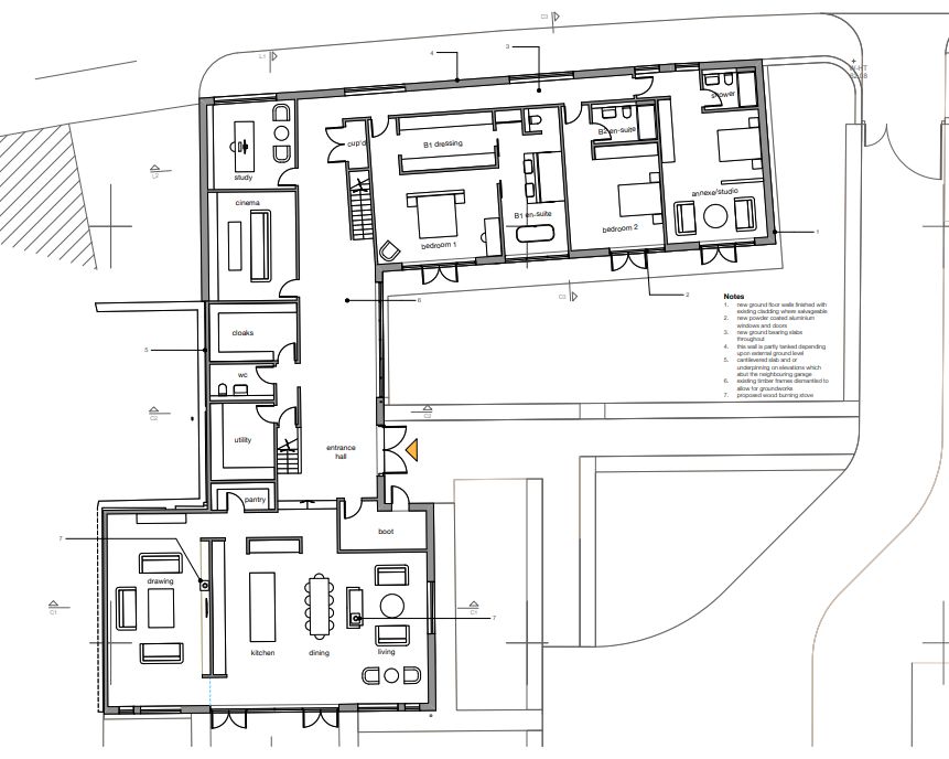
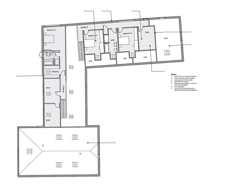
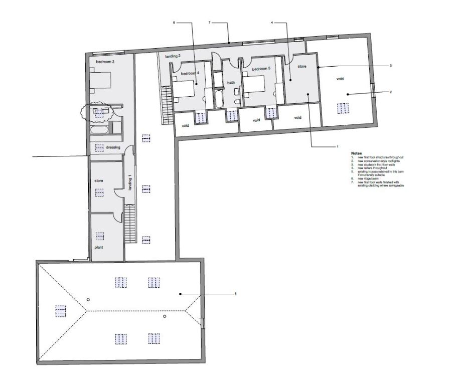
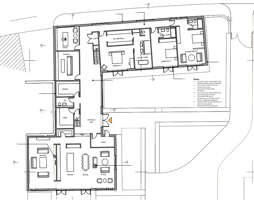
  • Main house of 6717 sq ft
  • Triple garage with an additional 581 sq ft
  • 5/6 Bedrooms, 5 Bathrooms
  • Possible Annexe Suite
  • Lovely Village Location

An opportunity to create a spectacular 5 bedroom, 5 bathroom barn conversion

Please note the land is available for sale at £500,000 with a build contract of £1,750,000 allowing you to save stamp duty on a plot & build project.

This exceptional derelict farm barn offers a rare opportunity to create a stunning single dwelling with over 6700 sq. ft. of internal living space, set on a generous plot of approximately 0.7 acres. The barn benefits from full planning permission for a bespoke five-bedroom residence, complete with an annexe, ideal for multi-generational living or guest accommodation.

The proposed plans feature expansive living areas, a luxurious principle suite, and flexible spaces designed to maximize natural light and countryside views. Additionally, the property includes a triple garage (with nearly 600 sq ft) and a plot of 0.71acres, providing a perfect blend of rural tranquillity and modern living.

Ground GIA is 457 m2 – 4919 sq ft First GIA is 167 m2 – 1798 sq ft Total GIA 624 m2 – 6717 sq ft Garage GIA is 54m2 – 581sqft

The property provides the opportunity to retain some of the beautiful existing features such as the trusses and cladding if structurally suitable.

PLANNING:

24/00596/FUL | Conversion of existing agricultural barns to provide a single dwelling, carport (retrospective) and parking, landscaping and associated works. | Barns Ufton Green Farmhouse Church Lane Ufton Nervet Reading RG7 4HQ (westberks.gov.uk)

https://publicaccess.westberks.gov.uk/online-applications/applicationDetails.do?previousCaseType=Property&keyVal=SAWSL6RD0NK00&previousCaseNumber=PAX72KRD01A00&previousCaseUprn=010093423000&activeTab=summary&previousKeyVal=PAX72XRD01A00

Please note CIL relief is available for self-builders.

Ufton Green Farm is located in the peaceful hamlet of Ufton Nervet, just south of the A4 between Newbury and Reading. The area is surrounded by picturesque countryside, yet within easy driving distance to the towns of Newbury, Reading, and Basingstoke, as well as the smaller market town of Theale and the village of Woolhampton. Mainline railway stations in Woolhampton, Theale, and Reading offer excellent rail services to central London, with fast trains taking approximately 40 minutes to reach Paddington.

IMPORTANT NOTICE Strutt & Parker gives notice that: 1. These particulars do not constitute an offer or contract or part thereof. 2. All descriptions, photographs and plans are for guidance only and should not be relied upon as statements or representations of fact. All measurements and specifications are approximate, are not necessarily to scale and may be subject to change. Any prospective purchaser must satisfy themselves of the correctness of the information within the particulars by inspection or otherwise. 3. Some images may be Computer Generated Images, are indicative only and may differ from the final build product. 4. Images may be of the show home rather than the individual unit. 5. Lifestyle images are indicative only. 6. Strutt & Parker does not have any authority to give any representations or warranties whatsoever in relation to this property (including but not limited to planning/building regulations), nor can it enter into any contract on behalf of the vendor. 7. Strutt & Parker does not accept responsibility for any expenses incurred by prospective purchasers in inspecting properties which have been sold, let or withdrawn. 8. We are able to refer you to SPF Private Clients Limited (“SPF”) for mortgage broking services, and to Alexander James Interiors (“AJI”), an interior design service. Should you decide to use the services of SPF, we will receive a referral fee from them of 25% of the aggregate of the fee paid to them by you for the arrangement of a mortgage and any fee received by them from the product provider. Should you decide to use the services of AJI, we will receive a referral fee of 10% of the net income received by AJI for the services they provide to you. 9. If there is anything of particular importance to you, please contact this office and Strutt & Parker will try to have the information checked for you. Photographs taken July 2019. Particulars prepared April 2019. Strutt & Parker is a trading style of BNP Paribas Real Estate Advisory & Property Management UK Limited, a private limited company registered in England & Wales with company number 04176965 whose registered office is at 5 Aldermanbury Square, London EC2V 7BP.

This property has 0.71 acres of land.

Read more
  • Floorplan
  • Map & Street View
Map View Street View
Get Directions
Have a property you want to sell?
Ref: SSH240094
Interested in this property?
Guide Price
£2,250,000