West Berkshire RG7 4AJ Theale, Reading

Guide Price
£10,000,000
  • 9
  • 7
  • 7
  • Freehold
  • H Council Band
Ref: LON240050
Interested in this property?
Guide Price
£10,000,000

Features at a glance

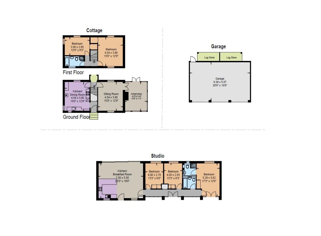
  • Main house measuring over 7,000 sq ft with four double bedrooms and four en-suite bathrooms, an integrated double garage and striking glass extension.
  • Two bedroom cottage - 1076 sq ft.
  • Three bedroom, two bathroom, ground floor living, studio annexe - 1098 sq ft.
  • Further triple garage.
  • Various out-buildings for garden equipment and a wine store.
  • Direct river access with fishing rights.
  • Income generating hydro-electricity.
  • Historic ruins of a Victorian paper mill - recently restored and preserved.
  • Beautifully designed and mature surrounding gardens.
  • Agricultural fields, combining to offer over 22.5 acres in total.

An immaculately renovated Grade II listed Georgian house in a stunning riverside setting

Located on the River Kennet, this Georgian house dates back to 1800. The ruins of the original Georgian paper mill are still found within the grounds of the property. It was purchased by our clients in 2011 and is the former home of the singer and song writer Kate Bush who repurposed the outbuildings to house a dance and recording studio. The current owners have invested heavily to create what exists today which included significant repairs and maintenance to the to the mill, and reconstructing the river banks.

Listed Grade II, the main residence is a refurbished and modernised, red-brick, Georgian period house which as part of the full renovation and upgrading programme in 2015 was taken back to the bare brick and has seen the addition of a striking, contemporary glass extension, perfectly contrasting the period features with the new. The footprint of the house has increased in size by 50%. The house has four double bedrooms all with en-suite bathrooms. The principal bedroom measures nearly 500 sq ft in size and has views down onto water and the historic remains of the water mill. There are a number of downstairs reception rooms, allowing for a various uses with a drawing room, relaxed sitting room, study, and library. Arguably the most impressive room is the spectacular glass extension, orangery measuring nearly 1200 sq ft and enjoying exceptional views across the gardens and the river with a modern 75ft steel and tile footbridge as a central feature. The high-end Smallbone kitchen includes Gaggenenau appliances and, also has a secondary prep kitchen and is then, via a glass link connected to a large laundry and boot room with access to a wide double garage, easily capable of accommodating large, modern vehicles. The entire house benefits from underfloor heating as well as air conditioning and air recirculation. The property is extremely environmentally efficient and heated and cooled via air source heat pumps.

Other accommodation exists in the form of firstly the former recording studio which has been transformed into a smart three bedroom property with a living room and kitchen, where there is also additional garaging in the form of a triple garage, meaning five in total. There is also a Victorian period, two bedroom, two bathroom cottage with an orangery extension which has proved very comfortable for equally guests and staff in the past. There is also another building which was formerly a dance / rehearsal studio with views onto the Kennet which is currently useful for storage but subject to planning has potential to be repurposed.

This property has 22.54 acres of land.

Outside

The house and outbuildings are set in beautifully landscaped gardens, which sit alongside the River Kennet where it is possible to fish. The gardens are a haven for wildlife including kingfishers and kestrels due to its riverside setting, There are pristine lawns, with various paths flanked by neat yew hedging, walled gardens, including a manicured rose and acer garden and a multitude of mature specimen trees together with a range of ornamental trees planted over the last ten years. There are also plenty of well-stocked flower beds. A major feature are the ruins of the historic mill itself with its water wheels which we understand in the 1870’s employed around 100 workers and was sadly later destroyed by fire. The entire plot measures 22.54 acres and in addition to the immediate gardens, a proportion of this are securely fenced, agricultural fields with some mobile animal shelters to house a variety of grazing livestock. An unusual but very useful feature is a private hydro electrical scheme created by the current owner, employing a 3 metre diameter Archimedes screw which generates (on average) 40kw per hour of electricity that not only powers the entire estate for self-sufficiency but has the ability to generate a significant annual income.

The property also benefits from a 22kw EV charger due to the three-phase power supply.

Situation

The property is in a stunning position beside the River Kennet on the edge of Theale, surrounded by beautiful Berkshire countryside and within easy reach of Reading, the surrounding towns and villages and the magnificent Chiltern Hills. There are plenty of local amenities in Theale including the nearby Burghfield Sailing Club. Further amenities can be found in Pangbourne with the popular Cobbs farm shop en-route. Theale’s mainline station offers services to London Paddington, either direct or via Reading. There are several highly rated independent schools nearby including but not limited to Bradfield College, St. Andrews, Pangbourne College, Reading Oratory, Elstree and Cheam. Junction 12 of the M4 is also reached easily providing easy access for London, Heathrow, Reading and Newbury.

Directions

(RG7 4AJ) From junction 12 of the M4, take the A4/Bath Road towards Theale and at the roundabout go straight on taking the left sliproad. after a few hundred yards and marked for Theale Station. Turn right at the next mini roundabout and straight on at the second mini roundabout. Several hundred yards beyond traffic lights control the River Kennet Crossing and Shenfield Mill can be found on the right immediately before the bridge.

What3Words///trim.beast.crops brings you to the property’s driveway.

Read more
  • Floorplan
  • Map & Street View
Map View Street View
Get Directions
Have a property you want to sell?
Ref: LON240050
Interested in this property?
Guide Price
£10,000,000