Shrewsbury Shropshire SY5 6RF Eaton Constantine

Guide Price
£1,250,000
  • 6
  • 3
  • 4
  • Freehold
  • G Council Band
Ref: SBY260103
Interested in this property?
Guide Price
£1,250,000

Features at a glance

  • 4 reception rooms
  • 6 bedrooms
  • 3 bathrooms
  • Double garage
  • 1.6 acres
  • Countryside views
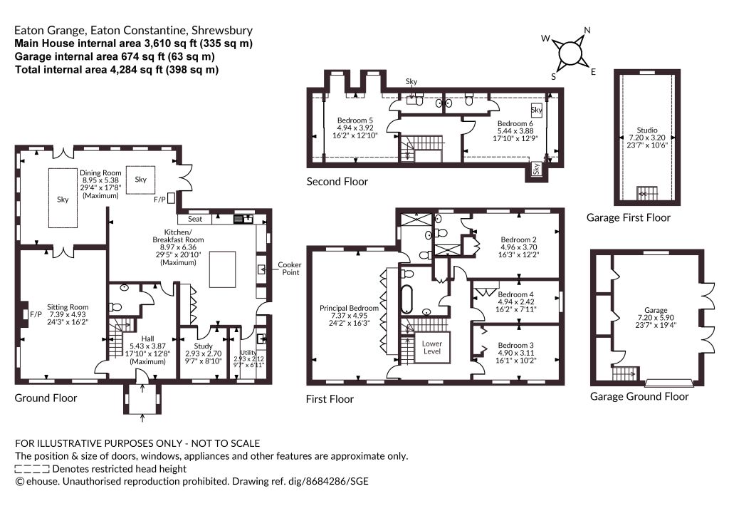
  • 3,610 sq ft

An exceptional six-bedroom house with stylish accommodation, extensive grounds and beautiful rural views, set in a peaceful Shropshire village setting

The Property Eaton Grange is an outstanding detached house with a wealth of beautifully styled accommodation arranged over three floors. The property features four elegant reception rooms and six comfortable bedrooms.

The ground floor accommodation includes a welcoming entrance hall with flagstone flooring, and a splendid formal reception room, with a dual aspect and a fireplace with a log burner. There is also a study at the front for private home working, while at the rear there is a generous open-plan living and entertaining space combining a family seating area with a Scandinavian-style log burner, a well-equipped kitchen and an airy dining area with ceiling lantern skylights overhead, full-height windows and French doors opening to the gardens. The kitchen itself is fitted with shaker-style units, a large central island and a range cooker. Stairs lead from the reception hall to the galleried first floor landing, off which there are four well-appointed double bedrooms. These include the luxury, 24ft principal bedroom with its built-in wardrobes, triple aspect affording views across the surrounding countryside, and its en suite shower room. One further first-floor bedroom is en suite, while there is also a family bathroom off the first-floor landing. The stairs continue to the second floor, where you will find an additional two double bedrooms, both with their own en suite WCs.

Services: Mains electricity and water. Oil fired central heating. Private drainage (we are investigating if this complies with the current regulations).

This property has 1.6 acres of land.

Outside

Outside The house is set in beautiful and far-reaching gardens, with gates at the front opening to a gravel driveway with parking space and access to the detached garage, with its useful studio or store room to its first floor. The gardens extend mostly to the rear, and include split-level patio and decking, colourful border beds and an elevated lawn. Post and rail fencing separates the gardens from a large open paddock from which there are tremendous views of the Shropshire countryside.

Directions

Directions Postcode: SY5 6RF What3words: geese.bring.obligated

Read more
  • Floorplan
  • Virtual Viewing
  • Map & Street View
Map View Street View
Get Directions
Have a property you want to sell?
Ref: SBY260103
Interested in this property?
Guide Price
£1,250,000