Follifoot HG3 1EQ The Hay Barn, Eden Park Estate, Haggs Road

Guide Price
£2,395,000
  • 6
  • 4
  • 4
  • Freehold
  • B Energy Efficiency Rating
  • G Council Band
Ref: HRG250193
Interested in this property?
Guide Price
£2,395,000

Features at a glance

  • 4/6 Bedroom & 3/5 Reception rooms
  • Lift
  • Large wraparound garden
  • South facing roof terrace
  • Triple garage
  • Private electric-gated entrance
  • Eco-friendly with solar panels
  • Stunning countryside view
  • CGI Imagery used
  • EPC Rating B

Innovative architectural design is at the forefront of this impressive, newly built detached home.

Innovative architectural design is at the forefront of this impressive, newly built detached barn conversion. It features high-specification fixtures and fittings, solar panels, lift, triple garage and located between sought-after villages close to Harrogate.

The property The Hay Barn boasts beautiful part natural stone elevations with Therma wood panelling, black metal beams and expansive bronze-tinted aluminium windows to create an aesthetic that melds with the local landscape. This magnificent, detached Class Q barn conversion has been recently completed and benefits from a 10-year building warranty. It offers an abundance of light-filled, flexible accommodation arranged over two floors and designed to maximise the picturesque rural views.

The property is accessed via a dramatic oversized timber pivot door, with a statement bronze bar handle that opens into a grand entrance hall with galleried landing, setting the tone for the rest of the property. A sophisticated palette of Farrow & Ball ‘Skimming Stone’ paint brings forth a timeless backdrop throughout the home. You can expect elegant bronze ironmongery and premium Lapicida tiles gracing the hallway, kitchen, utility, and bathrooms. There is plush carpeting to the remaining areas and wooden panelling and cabinetry throughout adding a touch of warmth and comfort. The high specifications continue with underfloor heating that extends across both the ground and first floors for consistent and efficient comfort. Lastly a whole-home Lutron lighting system that allows you to create and control custom lighting 'scenes' for any occasion.

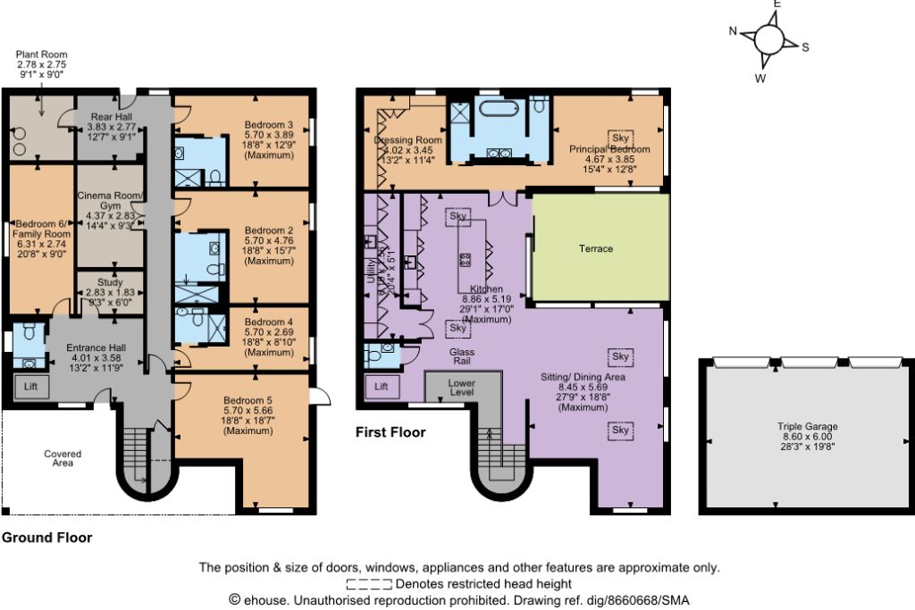
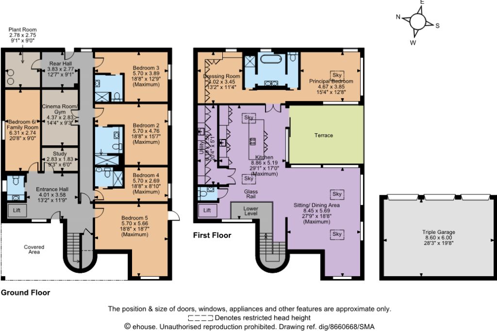
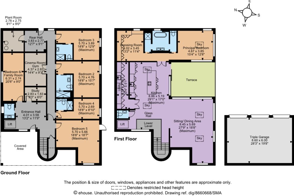
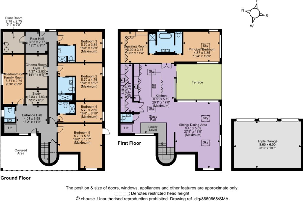
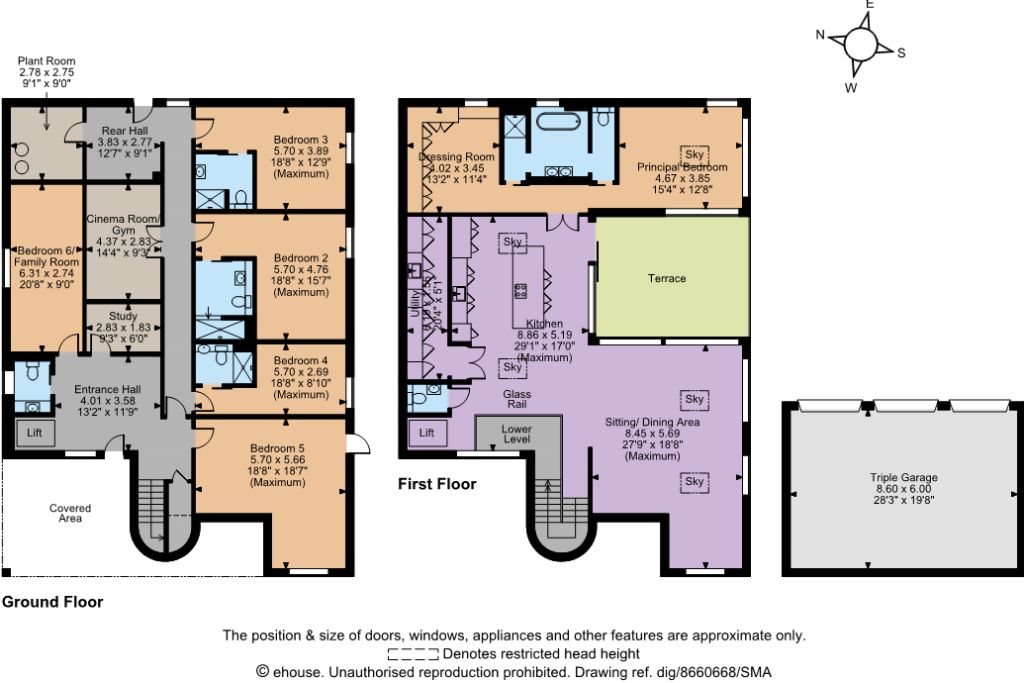
The ground floor accommodation comprises a practical home study, a useful cloakroom and a comfortable cinema room/home gym. There are three double bedrooms, all of which are serviced with opulent shower rooms fitted with Lusso Stone and tiled-in trays for a seamless and luxurious feel. There are two further sizable double bedrooms to include an L-shaped bedroom with an oversized door to the garden and 20ft bedroom both of which lend themselves for a multitude of uses such as a family room and additional living space.

From the entrance hall a discreet Stiltz domestic lift provides easy access between floors, alternately a timber staircase rises to the first floor and to the extensive open plan kitchen, sitting and dining area all surrounded with large, south facing picture windows, each illuminating the interior with natural light, whilst framing the outstanding views.

The heart of the home is the fabulous bespoke kitchen, designed by RoomRoom. It features a range of wall and base units, a large central island with wine bottle storage, beautiful complementary 80mm quartzite worktops and splashback, and a full suite of top-tier integrated appliances. A little ‘hidden gem’ of the kitchen is a cleverly concealed utility room, accessible via a secret door in which it maintains the clean interior design. A set of sliding doors open to the superb, south facing decked roof terrace and seamlessly blends the interior to the glorious exterior landscape which adds another level of depth to this generous open space. Extending to just under 28ft, the sitting/dining area is configurable to the purchaser’s own requirements and provides ample space for a good-sized dining table, perfect for hosting dinner parties or for family meals. Lastly double doors from the kitchen open to the palatial principal bedroom suite that spans the entirety of the property. To one end a fully fitted dressing room with wardrobes, dressing table and a centre island. The luxurious bathroom is also fitted with Lusso Stone and include twin sinks, a freestanding bath and separate walk-in shower with the bedroom area having a triple aspect in which to wake up and enjoy the long-reaching, stunning southerley views.

Services: Mains electric and water. Private drainage which we believe to be compliant. Solar panels with battery storage. Bosch air source underfloor heating.

Outside

Outside This cutting-edge family home has plenty of kerb appeal and is approached via a private, gated entrance with automated electric gates leading to a gravel drive, lit by post lights. Parking includes a triple car garage with EcoGrid paving and an integrated electric vehicle charger. The wrap around landscaped gardens includes areas of lawn and a peaceful private courtyard, featuring a curved sleeper wall elegantly illuminated by spotlights ideal for entertaining and al fresco dining.

Potential: An external silo tank to the rear presents a unique opportunity to be cladded for a creative conversion such as a distinctive garden feature/storage, garden room or outdoor kitchen. Subject to the necessary planning consents.

Situation

Location Having an enviable Follifoot address, this property has the advantage of being close to two local villages, Follifoot and Spofforth. The sought-after village of Follifoot has a good range of day-to-day amenities including a village store, post office, church, two public houses, a favoured primary school, a popular children’s play area and a cricket club. The area offers a wide range of sporting clubs including cricket, tennis, football, squash and Follifoot Riding Stables, all within a short drive of the property. Harrogate Rugby Club and Rudding Park Golf Club and Spa are close by along with Spofforth Golf Club which is adjacent to Eden Park.

The spa town of Harrogate is approximately four miles and is the perfect base from which to explore the Yorkshire Dales. There are plenty of shopping facilities including a shopping centre, arcade and a wide range of independent retailers as well as the larger supermarkets with Sainsbury’s and Fodder a short drive from the property.

The nearby A1(M) ensures easy access to both the north and south of the country, as do the excellent links from Pannal and Harrogate train stations.

Schooling The area provides a good selection of state schooling including Follifoot C of E Primary School, St. John Fisher Catholic High School (rated Outstanding by Ofsted) and St. Aidan’s C of E High School together with Harrogate Grammar School.

There is also a wide range of notable independent schools including Ashville College, Harrogate Ladies’ College, Brackenfield, Gateways, The Grammar School at Leeds, Belmont Grosvenor and Queen Ethelburga’s College. The Eden Park gateway is an official bus stop on the Ashville College bus route.

Developer Quarters Life specialise in creating a diverse range of properties, encompassing single distinctive new builds, the renovation and restoration of existing structures, and multi-unit developments. They have several current developments, and to acquire an understanding of the quality and detail they work to then please view some of their past developments. www.quarters-life.co.uk

Directions

HG3 1EQ

what3words: ///libraries.daydream.season

Read more
  • Floorplan
  • Map & Street View
Map View Street View
Get Directions
Have a property you want to sell?
Ref: HRG250193
Interested in this property?
Guide Price
£2,395,000

National Country House Department

43 Cadogan Street
London
SW3 2PR

+44 20 7591 2213