London SW3 3JY Elystan Place, Chelsea

Asking Price
£5,950,000
  • 4
  • 3
  • 3
  • Freehold
  • C Energy Efficiency Rating
Ref: SLN240005
Interested in this property?
Asking Price
£5,950,000

A brand new family house with Airconditioning just off the immensely popular Chelsea Green.

The house was demolished behind a retained front façade and redeveloped by the award-winning Jubilee Partners (www.jubilepartners.co.uk), a highly regarded and experienced firm, known for delivering some of the very best property in Chelsea.

The developers live in Chelsea on the Green and understand the importance of not just building a beautiful property, utilising the best craftsmen, joiners and contractors, but to also build a house that is functional on a day-to-day basis. Having the right storage in the right place, a working utility room, a seasonal store room for all the kit you change half-yearly or just want out of the way.

The house took two and a half years to construct and the project has delivers a house with fabulous interiors and wonderful fabrics, fine joinery, fixture’s and fittings. These features include: - Air conditioning in every room. - A bespoke kitchen and utility room. - Under floor heating. - Lutron Lighting (that can be tailored to suit). - Water Monopoly bathrooms throughout. - Wi-Fi and integrated speakers throughout. - Acoustic and thermal wall linings.

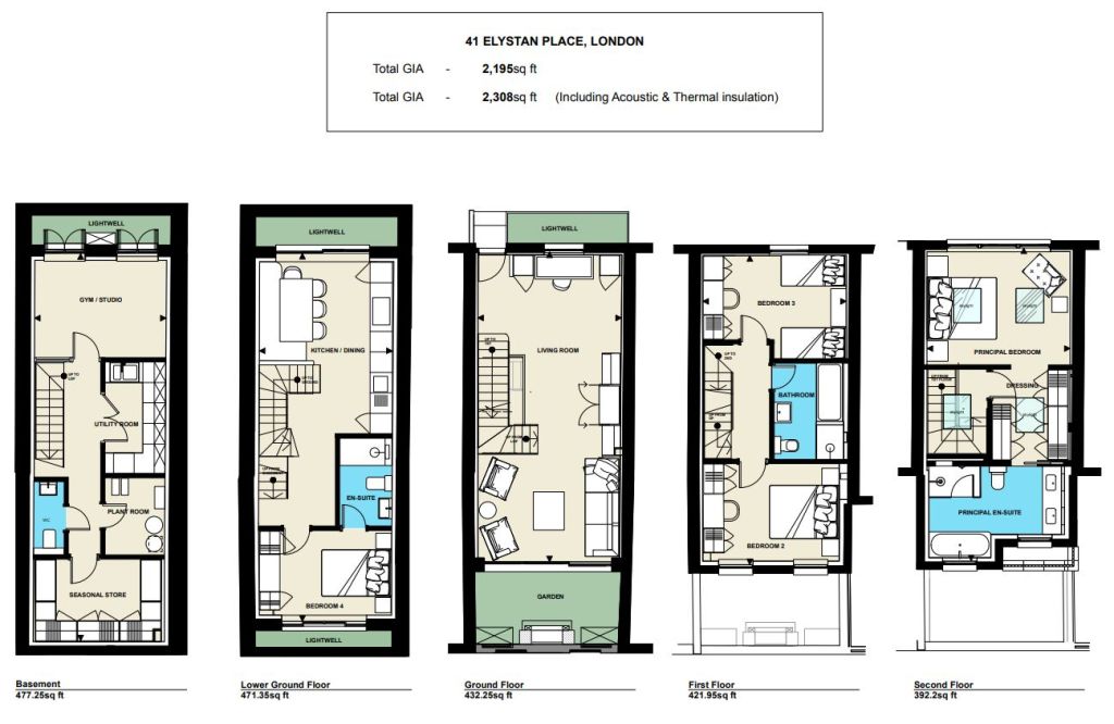
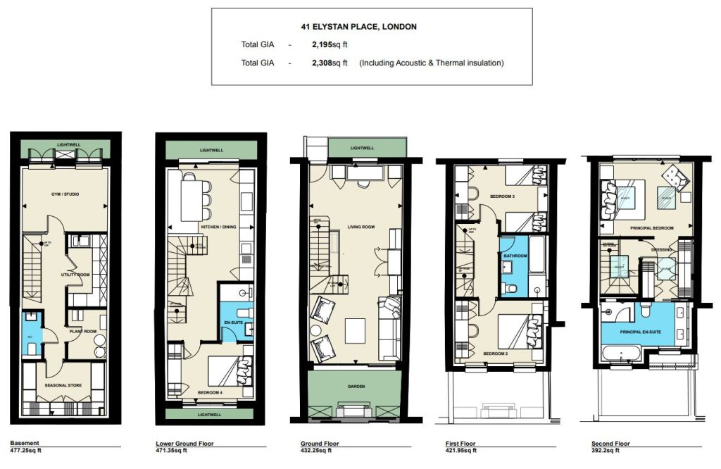
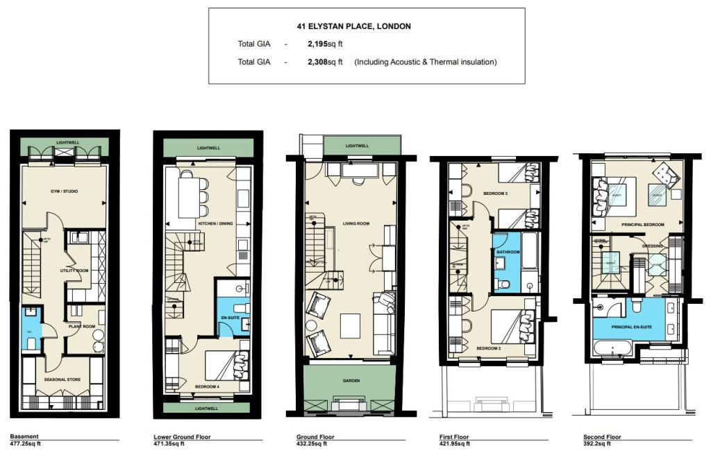
The finished house provides ground floor double reception room that leads onto a paved garden with a large central fireplace ideal for formal entertaining. From the ground floor, stairs lead down to the bespoke kitchen / dining room and bedroom 4, which is discreet/well separated and has an en suite shower room.

The first floor has two double bedrooms that share a large family bathroom. The whole of the top floor is given to the principal bedroom which is beautifully designed with a dressing room and fine joinery which together with vaulted ceilings provides a tranquil atmosphere full of light and arresting views from the large windows.

The basement level comprises a gym / studio room, with doors opening into the light-well; bespoke utility room, plant room and seasonal store room.

Outside

The garden is a spectacular feature of the house, with a central outdoor fire place with gas fire.

Accessed by sliding French doors, this creates a fabulous focal point of the reception room and a wonderful entertaining space.

Situation

The house sits just off the world-renowned village atmosphere of Chelsea Green, a picturesque enclave just north of the Kings Road and only a short walk to Sloane Square underground station.

London is undoubtedly one of the best cities in Europe to live, offering stability and an unrivalled opportunity to delight in every cultural experience, whilst being only a flight away from most of the rest of the world!

The local amenities 'on the door-step' are fantastic including Birley’s Bakery, Jago’s the butcher, The Wild Tavern and Andreas the Grocer to name but a few. The recently opened Wholefoods on the Kings Road, compliments Waitrose and Marks and Spencer, all a very short walk en route to Sloane Square, passing Duke of Yorks Square with its restaurants, high fashion retail.

Chealsea Green is a visible/safe and a highly accessible location, offering a unique lifestyle for such a central location. St. Luke’s Gardens is also nearby and ideal for dog walking or the children’s play-ground.

Read more
  • Floorplan
  • Virtual Viewing
  • Map & Street View
Map View Street View
Get Directions
Have a property you want to sell?
Ref: SLN240005
Interested in this property?
Asking Price
£5,950,000