London SW10 0HQ Harbour Avenue, Chelsea Harbour
- Guide Price
- £995,000
- 1
- 1
- 1
- Leasehold
- G Council Band
Elegant, lateral one-bedroom apartment in a modern Chelsea development.
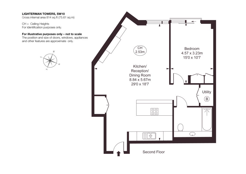
The reception space is particularly well-proportioned, offering ample room for both seating and dining, ideal for modern living and entertaining. Large windows allow for an abundance of natural light, enhancing the sense of space throughout. The kitchen is thoughtfully designed with integrated appliances and sleek cabinetry, providing a practical yet stylish environment.
The bedroom is generously sized, benefitting from built-in storage and the bathroom is finished to a high standard, with contemporary fittings and a clean, modern design. Further benefits include excellent storage throughout and a well-maintained communal setting, reflecting the overall quality of the development.
Situation
Lighterman Towers is conveniently located for the excellent amenities of Chelsea, Fulham and the King’s Road, with a wide array of shops, restaurants and transport links nearby. The property is well positioned for access into Central London, while also enjoying the relative calm of this sought-after residential address.
Read more- Floorplan
- Map & Street View