Salisbury Wiltshire SP3 6AF Holloway, East Knoyle

Guide Price
£400,000
  • 3
  • 1
  • 2
  • Freehold
  • D Council Band
Ref: CSD252594
Interested in this property?
Guide Price
£400,000

Features at a glance

  • ** Viewing days Thursday 6th and Saturday 8th November between 10am and 2pm **
  • ** STRICTLY BY APPOINTMENT ONLY **
  • In need of modernisation
  • 3 bedrooms
  • Approaching 0.4 acre
  • large southerly rear garden
  • Garage and parking
  • No upper chain

An appealing semi-detached property in need of renovation and located in sought after village

An opportunity to modernise a spacious semi detached house which is set in about 0.4 of an acre with a sunny southerly rear facing aspect. The property is in need of renovation and offers the potential to create a lovely family home. It is located in a quiet country lane near to local amenities and within easy reach of the historic town of Shaftsbury.

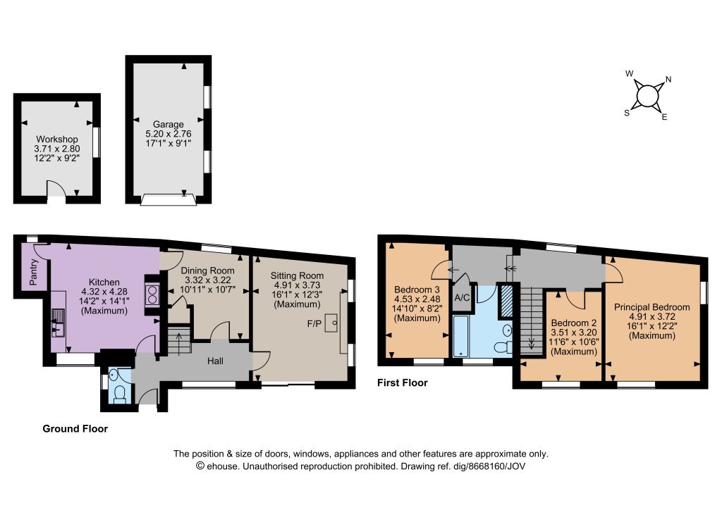
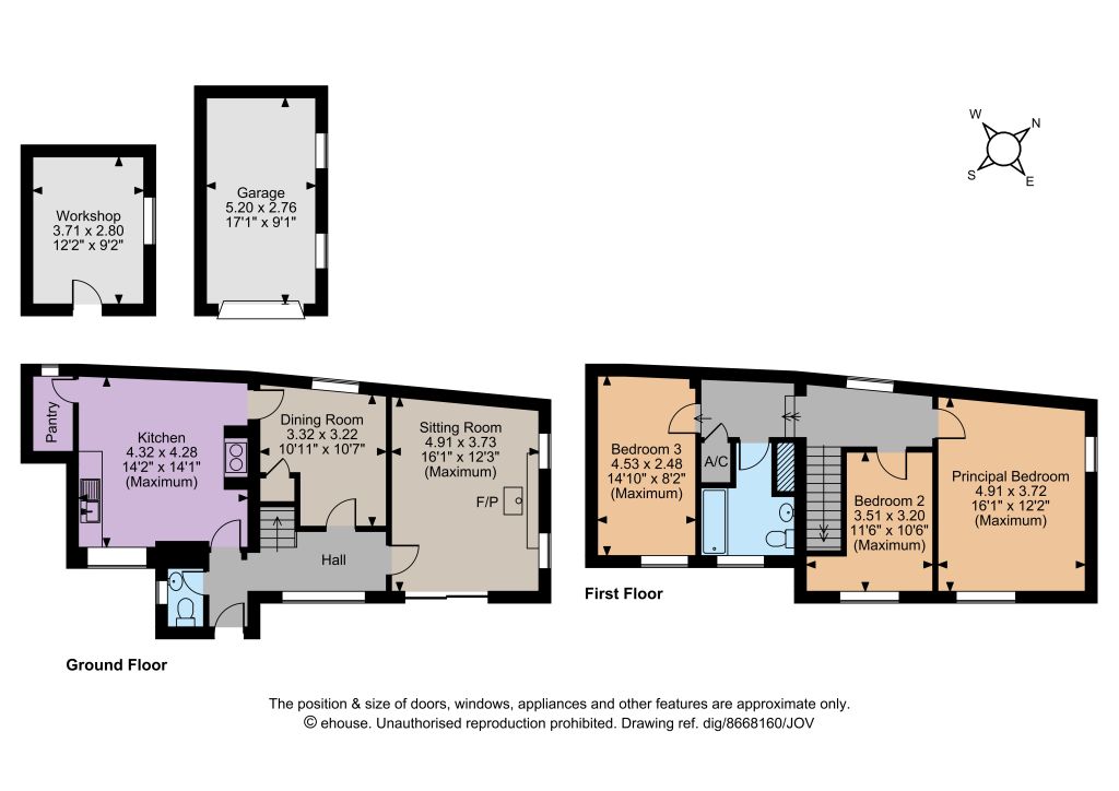
Capua is a un-listed period property constructed of part-rendered red brick and offering almost 1,300 sq ft of light-filled accommodation arranged over two floors. In its current configuration, the accommodation flows from a reception hall with a useful cloakroom and a staircase rising to the first floor. It comprises a dual aspect sitting room with hard-wearing engineered wooden flooring, a feature exposed stone fireplace with woodburning stove and patio doors to the garden, together with a neighbouring dining room with a fitted store cupboard and a rear aspect sash window overlooking the lane. Accessible from the reception hall and dining room, the generous kitchen/breakfast room has an exposed ceiling beam, a range of modern base units, a complementary work surface and splashback, an ingle with Aga, space for modern integrated appliances, a walk-in pantry, and plenty of room for a sizeable table for more informal meals. On the first floor, the split-level landing has a sash window overlooking the lane together with a useful airing cupboard. It gives access to a dual aspect principal bedroom and the property’s two remaining double bedrooms, and all three benefitting from lovely views over the garden, together with a family bathroom.

This property has 0.4 acres of land.

Outside

Capua is set in gardens of about 0.4 of an acre and backs directly onto a quiet lane and is approached over a side driveway providing private parking and with double wrought iron gates giving access to a detached garage and neighbouring brick-built workshop which is in need of repair.

A separate adjacent wrought iron pedestrian gate opens to the garden and gives access to the front door. The generous garden is also in need of some cosmetic maintenance, but also offers the prospective purchaser the opportunity to create their own landscaped garden. Its current layout features areas of level and gently-sloping lawn bordered by mature hedging, shrubs and trees, the whole enjoying views over neighbouring woodland.

Situation

Situated on the Wiltshire-Dorset border in the Cranborne Chase National Landscape, East Knoyle village has a church, village hall, convenience store, Post Office, pub and playground. Nearby Hindon village has a church, general store, Post Office, GP surgery, primary school and two pubs. The Underhill Wood Nature Reserve and Wessex Ridgeway and Monarch’s and Orange Ways offer miles of walking and riding routes. More extensive shopping, service and educational amenities are available in Shaftesbury, Tisbury, Gillingham, Warminster and Salisbury. Transportation links are excellent: the A303 links to the A30 (London-Land’s End road) and motorway network, and Tisbury and Gillingham stations (6.2 and 67 miles respectively) offer mainline services to regional centres and London Waterloo.

Shaftesbury 5.9 miles Tisbury 6.0 miles Gillingham 6.3 miles Warminster 10.3 miles Salisbury 18.9 miles

Directions

What3words ///dummy.rots.streak

Read more
  • Floorplan
  • Map & Street View
Map View Street View
Get Directions
Have a property you want to sell?
Ref: CSD252594
Interested in this property?
Guide Price
£400,000