Sevenoaks Kent TN15 9DD Oldbury Lane, Ightham

Guide Price
£725,000
Ref: SVN250233
Interested in this property?
Guide Price
£725,000

Features at a glance

  • Rare building plot
  • Village setting
  • Stunning proposed house
  • Approx. 3200 sq feet
  • Substantial garden

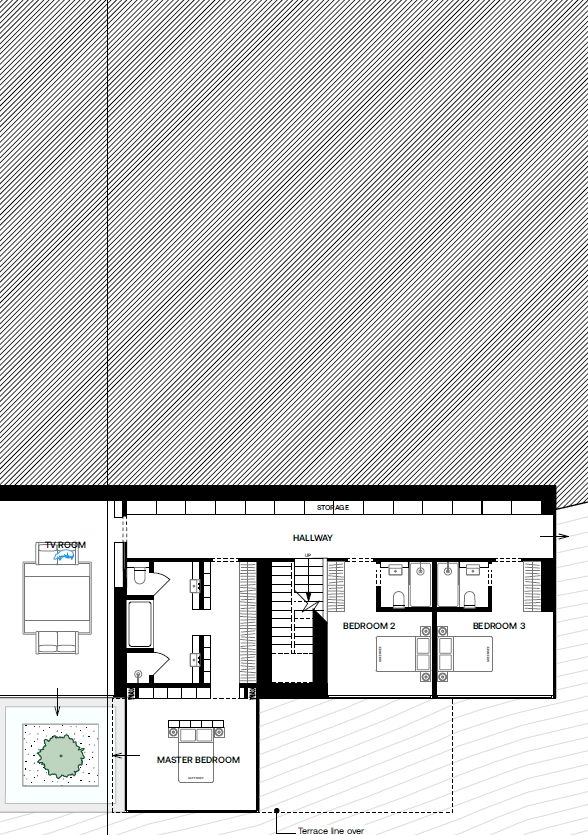
A substantial building plot with planning consent for a stunning contemporary house

A substantial building plot with planning consent for a stunning contempoary house. The plot is located in an enviable setting in the highly regarded village of Ightham. The proposed house has been carefully and imagibatively architect designed for the setting, maximising the use of the levels and creating accommodation over two floors.

Full details of the planning application, decision notice and associated documents can be found on Tonbridge & Malling website via this link: https://planning.agileapplications.co.uk/tmbc/ application-details/156842

Proposed internal area approx. 3200sq ft (297sq m)

Situation

The sought-after and picturesque Kentish village of Ightham has a parish church, recreation ground, farm/village shop, pubs and a primary school, all surrounded by numerous walks in the National Trustowned Ightham Mote and Oldbury Woods and in the Kent Downs National Landscape. Nearby Sevenoaks is easily accessible and offers an extensive selection of shops, restaurants, supermarkets including Waitrose, a mainline station with services to central London in around 30 minutes.

Directions

The plot lies adjacent to: Aboret Oldbury Lane Ightham Sevenoaks TN15 9DD

Read more
  • Map & Street View
Map View Street View
Get Directions
Ref: SVN250233
Interested in this property?
Guide Price
£725,000

Sevenoaks Estate Agents

15 Bank Street
Sevenoaks
TN13 1UW

+44 1732 459 900