London SW7 3QD Onslow Gardens, South Kensington

Guide Price
£4,200,000
  • 3
  • 2
  • 1
  • Leasehold
  • D Energy Efficiency Rating
  • H Council Band
Ref: SOK250082
Interested in this property?
Guide Price
£4,200,000

A spectacular garden maisonette apartment in Onslow Gardens

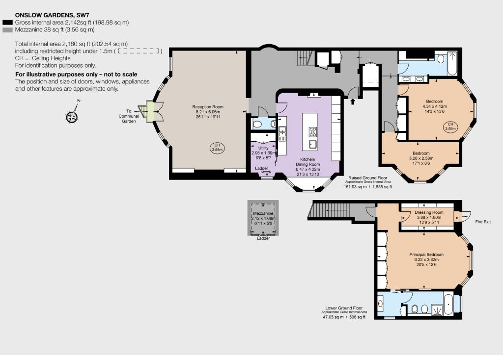
Set across the raised ground and lower ground floors of one of South Kensington’s most desirable garden squares, this beautifully presented split-level apartment offers exceptional lateral space, direct access to the communal gardens and a calm, contemporary finish throughout. Measuring approximately 2,180 sq ft, the home is arranged for both elegant entertaining and comfortable day-to-day living. A generous reception and dining room enjoys attractive proportions and opens directly onto the greenery outside, creating a wonderful connection to the gardens. To the rear, a spacious open-plan kitchen/dining room is centred around a statement island with breakfast seating, complemented by a utility room and a guest powder room. The bedroom accommodation is equally impressive. The principal suite features a dedicated dressing area/walk-in wardrobe and an en-suite bathroom, while the second bedroom includes built-in wardrobes and there is an additional study/third bedroom ideal for home working or guests. A well-appointed family bathroom provides a double vanity, bath and separate shower. Onslow Gardens is one of the most sought after garden squares in the heart of South Kensington with a broad array of amenities, shops and restaurants within close proximity to the property. Transport links abound and in close proximity, with Gloucester Road and South Kensington tube stations offering access to the District, Circle and Piccadilly lines. In addition, Hyde Park is within walking distance to the property.

Read more
  • Floorplan
  • Map & Street View
Map View Street View
Get Directions
Have a property you want to sell?
Ref: SOK250082
Interested in this property?
Guide Price
£4,200,000