London SW7 5RP Queen's Gate Gardens, South Kensington

Asking Price
£1,650,000
  • 2
  • 2
  • Leasehold
  • G Council Band
Ref: SOK160023
Interested in this property?
Asking Price
£1,650,000

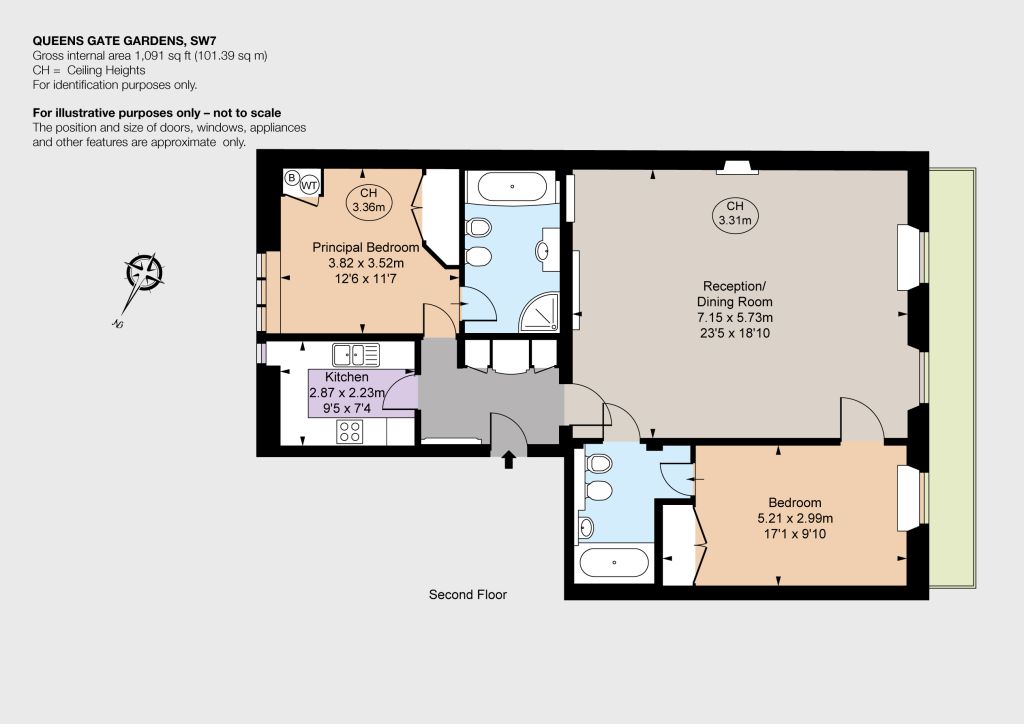
Spacious two-bedroom apartment overlooking the prestigious Queen's Gate Gardens.

The reception room is spacious with a high ceiling including a dining area. Large windows that lead onto the terrace looking onto the Queen's Gate Garden Square. Located on the opposite side of the entrance hall is a fitted kitchen.

The first bedroom is quaint with a large sachet window that warms the room with light. This room includes an ensuite bathroom. The principal bedroom also benefits from built in wardrobes and large windows. The en-suited bathroom includes a shower and a bathtub.

Situation

Queens Gate Gardens is an impressive garden square of Stucco fronted period conversions around the superb communal gardens. Gloucester Road underground station (Piccadilly, District & Circle lines) is within a short walk as are the open spaces of Kensington Gardens and Hyde Park.

Read more
  • Floorplan
  • Map & Street View
Map View Street View
Get Directions
Have a property you want to sell?
Ref: SOK160023
Interested in this property?
Asking Price
£1,650,000