Ascot Berkshire SL5 7DP Queens Hill Rise

Asking Price
£2,750,000
  • 6
  • 6
  • 6
  • Freehold
  • C Energy Efficiency Rating
  • H Council Band
Ref: ASC160337
Interested in this property?
Asking Price
£2,750,000

Features at a glance

  • 4 Reception rooms
  • Cinema/games room
  • Kitchen/breakfast room/orangery
  • Utility room and cloakroom
  • Principal bedroom with dressing room and bathroom
  • 4 Further bedrooms (all en suite)
  • Self-contained 1-bedroom annexe
  • Secluded, landscaped gardens
  • Ample secure parking
  • Private road setting

A sensational family residence, set within a secluded and private, secure gated setting

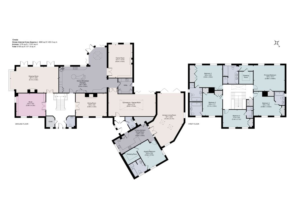
The impressive reception hall, with its bifurcated staircase, opens out to many of the principal rooms including the beautifully appointed, fully integrated kitchen/breakfast room/orangery that is a undeniably a central feature of the house. This room enjoys a southerly aspect, with a roof lantern, and bi-folding doors and double doors opening out to the rear garden, and admitting an abundance of natural light. There is an adjoining family room with a fireplace, whilst situated to the front of the house is an impressive study, for those seeking to work from home.

The spacious drawing room features a fireplace and three sets of double doors that open the room out to the garden, and combined with the formal dining room, also with a fireplace, provides superb excellent entertaining and relaxation space. The ground floor further comprises a 29 ft gymnasium/games room with a large roof lantern and bi-folding doors to the outside, a utility room, and two cloakrooms.

The self-contained annexe comprises a striking 34 ft reception room with a contemporary fireplace, vaulted ceiling and bi-folding doors out to a courtyard garden, a kitchen/dining room, and a bedroom with a dressing room and an en suite bathroom.

Upstairs, the accommodation is arranged around a galleried landing and provides a principal bedroom with an en suite dressing room and bathroom, along with four bedrooms, all en suite.

This property has 0.75 acres of land.

Outside

Cresta is set behind mature shrubs and hedging that provide seclusion and privacy. There is ample parking for several vehicles to the front whilst to the rear, the beautifully landscaped garden includes and area of lawn, well-stocked flower and shrub beds, and a patio area that may be reached from the drawing room and kitchen/breakfast room/orangery and provides excellent space for outdoor dining and entertaining.

Situation

The property is situated in a private lane, within close proximity to Ascot High Street with its excellent range of shopping and leisure facilities and to Sunningdale and its Waitrose supermarket. Further more extensive facilities are available in the nearby towns of Windsor, Camberley, Guildford and Bracknell.

Road connections are excellent with easy access to both the M3 (J3) and the M25 (J13) and rail services to London (Waterloo) are available from Sunningdale and Ascot stations.

Leisure and sporting facilities in the area are varied and include golf at Sunningdale, Wentworth, Windlesham and Swinley Forest; horse racing at Ascot and Windsor, and horse riding on Chobham Common and in Windsor Great Park. Excellent spa facilities are available at Pennyhill Park, Coworth Park, MacDonald Berystede, Wentworth and Foxhills.

There is also highly-regarded schooling in both the state and independent sectors available in the vicinity.

NEARBY SCHOOLS Sunningdale School, Sunningdale Charters School, Sunningdale Papplewick, Ascot Heathfield, Ascot St. George’s, Ascot St. Mary’s, Ascot LVS, Ascot The Marist, Ascot Lambrook, Winkfield Row Wellington College, Crowthorne Eton College, Eton ASC International School, Egham TASIS, Thorpe

Directions

What3words: ///pouch.clues.clean - brings you to the Queens Hill Rise entrance

Read more
  • Floorplan
  • Map & Street View
Map View Street View
Get Directions
Have a property you want to sell?
Ref: ASC160337
Interested in this property?
Asking Price
£2,750,000