Perranporth Cornwall TR6 0BY Ramoth Way

Offers In Excess Of
£950,000
  • 3
  • 2
  • 1
  • Freehold
Ref: EXE250297
Interested in this property?
Offers In Excess Of
£950,000

Features at a glance

  • Luxury Living In Harmony With Nature
  • Net Zero Luxury In The Dunes
  • Luxury Net-Zero Custom Beach Houses with Stunning Sea Views
  • Dream Oceanside Living amongst the Dunes
  • Sustainable by Design, Coastal by Nature
  • Steps from the Sand. Miles from Ordinary
  • Design-Led. Low-Carbon. Sea-View
  • Two house types now launching, additional plots and larger house types to be released

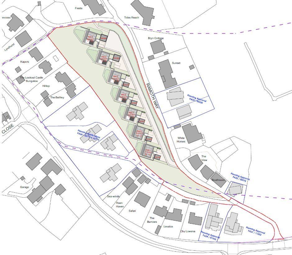
DUNEscape, Perranporth — Sea-view eco beach houses in a private dune landscape

A rare collection of just seven custom beach houses set within a private two-acre dune landscape above Perranporth's famous beach. Each home is oriented for sea and sunset views, with terraces and gardens designed for coastal living.

Fabric-first, low-energy design targets AECB CarbonLite certification with target A-rated EPC (subject to final specification)—bringing exceptional comfort, low running costs, and a healthy living environment. Walk to the South West Coast Path, links golf, surf clubs, skate park and Perranporth's cafés and village amenities; Ofsted "Good" primary nearby and a new secondary school under review.

Freehold, fixed-price design-and-build with 10-year structural warranty. Four house types. Two plots now launching. Additional plots and larger house types to be released: • Plot 1 (House Type 1, 2-storey, 3 beds) In Excess Of £950,000, • Plot 3 (House Type 2, 3-storey, 4 beds) In Excess Of £1,200,000, • Plots 5 and 6 (House Type 3, 3-storey, 4-5 beds) Launching Soon, • PLOT 7 ALREADY RESERVED.

Key features • Private, gated enclave of only seven homes in a landscaped two-acre dune setting with sea and sunset aspects • Award-winning design team including architecture by KAST and landscape by Mei Loci • Three house types with layout and finish options for early buyers • First floor bridge entrance direct to cloakroom, kitchen, dining and living spaces with large balcony offering sea, beach, sunset, and Chapel Rock views • Fabric-first eco specification: AECB CarbonLite approach, A-rated EPC target (subject to final specification), triple glazing, heat pump, underfloor heating, MVHR, solar PV • 22kW EV fast charging and future-proofed 3 phase supply; optional home battery and smart controls • Gigabit fibre for seamless remote work; quiet, light-filled spaces ideal for a home office • Walk/cycle to; beach; dunes & South West Coast Path; links golf, surf and community sports on the doorstep; family and dog-friendly coastal lifestyle • Perranporth village: cafés, pubs (including iconic Watering Hole beach bar), shops and clubs strong year-round community • Freehold with share of communal areas; 10-year structural warranty; fixed-price design-and-build route

Welcome to DUNEscape: a unique enclave of seven sea-view beach houses set in a private, ecologically restored dune landscape above one of Cornwall's most loved beaches. Architecture and landscape work together here—terraces for sunsets, outdoor showers for sandy feet, generous storage for boards and bikes—making daily life easy for families, retirees and second-home owners alike.

Inside, a fabric-first, low-energy specification aims for AECB CarbonLite performance to deliver year round comfort, low running costs and a healthy indoor environment. Every plot includes 22kW EV charging and a future-proofed 3-phase electrical connection; gigabit fibre supports smooth remote work. Early purchasers can tailor layouts, finishes and curated options (from wardrobes and flooring to bioclimatic pergolas or battery storage).

Step out to the South West Coast Path, Penhale Dunes and the links golf course; stroll to surf lessons, community sports clubs and the village's cafés and pubs (including the UK's only bar on the beach). The primary school is Ofsted "Good," with a new secondary under government review - ideal for growing families and for downshifters seeking a strong year-round community.

Sustainability & tech (highlights) AECB CarbonLite target based on Passivhaus design approach; A-rated EPC target; super insulation & triple glazing; heat pump with underfloor heating and large cylinder; MVHR; solar PV; optional battery; gigabit fibre; 22kW EV charging; SUDS, water-saving fittings and optional rainwater harvesting; biodiversity-led landscape with native planting. (Performance subject to final specification and user behaviour.)

Outside

Southwest-facing private gardens/balconies terraces, carport/garage, bin/bike/watersports stores included with all house types.

Balcony external area: 212 sq ft / 19.7 sq m Private Garden/Terrace area: 1,110 sq ft / 103.2 sq m

Situation

Moments to beach, dunes and village amenities. Typical journey times: • Beach: 2 mins • Village: 5 mins • Golf/Skate/Football/Rugby: 5 mins • Riding: 10 mins • Truro: 20 mins • Newquay & mainline rail: 15 mins • Cornwall Airport: 25 mins • A30: 10 mins • Bus stop: 2 mins (routes to Truro, St Agnes, Newquay etc.)

South West Coast Path and Saints Cycle/Bridle Trails close by.

• Tenure: Freehold (with shared ownership of communal areas) • Services: 3-phase electricity; water; mains drainage; soakaways for surface water • Warranty: 10-year structural warranty • Planning: Ref PA25/05916 • Timeline: Start on site Spring-Summer 2026 with completion Autumn 2027 • EPC: A (target) — subject to final specification • Incentives: BUS grant up to £7,500 for eligible heat pump installations; specialist custom-build mortgage support available (all subject to eligibility and prevailing regulations)

These particulars are intended to give a fair description of the property but do not form part of any offer or contract and must not be relied upon as statements or representations of fact. All development information, images and CGIs are indicative and may change. Prospective purchasers must satisfy themselves by inspection or otherwise as to their accuracy. Energy and carbon performance are subject to design development, final specification and user behaviour. Planning permissions and local amenities (including schools) are subject to third-party programmes and approvals. Floor areas are approximate and for guidance only. All measurements, distances and journey times are approximate. No warranty is given regarding services, fixtures and fittings.

Directions

what3words: ///eruptions.magical.multiples.

Read more
  • Floorplan
  • Virtual Viewing
  • Map & Street View
Map View Street View
Get Directions
Have a property you want to sell?
Ref: EXE250297
Interested in this property?
Offers In Excess Of
£950,000

Exeter Estate Agents

24 Southernhay West
Exeter
EX1 1PR

+44 (0)1392 215631