Charvil RG10 9TP Thames Drive, Sonning On Thames

Offers In Excess Of
£2,800,000
  • 4
  • 3
  • 3
  • Freehold
  • G Energy Efficiency Rating
  • G Council Band
Ref: LON210043
Interested in this property?
Offers In Excess Of
£2,800,000

Features at a glance

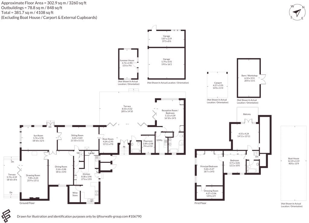
  • 4,108 sq ft in total
  • Flexible living space with exciting potential
  • Stunning, peaceful, River Thames location
  • Modern jetty mooring and wet boathouse with power and slip launch
  • Summer house, garaging and outbuildings
  • 1.35 acres
  • Quick access to A4 and Twyford Station (Elizabeth Line)
  • Nearly 300 ft of riverbank frontage

A fabulous riverside home offering flexible accommodation set within picturesque and peaceful grounds of 1.35 acres enjoying unique views onto the Thames with a mooring and boathouse

St Patrick’s Lodge originates from the 1920s when it would have likely served as a desirable riverside paradise and escape from London at weekends and holidays. It has since been significantly extended and enjoys over 400 ft of direct river frontage with unspoilt views over the River Thames.

The house now offers over of 3,200 sq.ft of flexible accommodation for various requirements with the potential to further alter if desired across two floors and additional outbuildings and structures increasing the total to a little over 4,000 sq ft. It has been a much loved home within the same family for over 50 years.

The majority of downstairs receptions rooms are westerly facing and orientated towards the river to maximise the stunning, scenic views. The panoramic outlook allows for much natural light and two rooms have modern bi-fold doors opening out onto an open, raised terrace, which is ideal for outdoor entertaining taking in the garden and best of the river. The kitchen includes a larder and a cool wine store adjoining the dining room. As well as a bright sun-room, a spacious over 300 sq ft, south facing drawing room with terrace and a smart, yet cosy sitting room with a log-burner, there is also an additional reception room which can double as a downstairs bedroom with an en-suite bathroom and double wardrobes. Finally there is a dedicated utility / laundry room and second bathroom.

Upstairs consists of two double bedrooms, a family bathroom and a versatile office come bedroom. The generously sized principal bedroom has a connected dressing room which could always be converted into an en-suite bathroom. The river facing office room has an original balcony which benefits from impressive elevated views of the river and the rural land opposite, providing plenty of inspiration for what might be on offer if the upstairs were to be further developed.

This property has 1.35 acres of land.

Outside

St Patrick’s Lodge is accessed via a no through-road called Thames Drive onto a sizeable gravel driveway allowing for the parking and manoeuvring of numerous vehicles at any one time. On the driveway is a covered carport, triple garage, as well as a store with workshop. The driveway also provides access to a boathouse and launch slip to enable a trailer with boat to back-in. Totalling 1.35 acres, the gardens consist of flat lawns with numerous planted boarders with tall hedging for privacy and a number of mature trees, including a couple of striking Weeping Willows on the riverbank. Given its location and the peace and quiet, it’s also become a sanctuary for wildlife, in particular those reliant on their river habitat.

There are two raised, paved terraces, linked to reception rooms, south and west facing to capture the majority of the day’s sunshine, but with the advantage of two extendable awnings allowing plenty of cool shade in the summer. A pretty summer house exists with power and the wet boathouse and launch slip, also with power, is tucked neatly into the far corner of the plot with again potential to be further developed and made more of a feature. In addition, for water enthusiasts is a modern jetty mooring with steps down into the river for paddleboarding and swimming. Importantly the Thames Path is located on the opposite bank, which particularly in summer months, is well screened from view by trees, granting even greater privacy and a sense of tranquillity. The property is registered under two title plans, presenting potential—subject to planning consent—for division and the addition of a further dwelling

Situation

St Patrick’s Lodge is positioned on the Thames on the outskirts of the highly desirable Sonning with the likes of Shiplake, Wargrave and Henley-on-Thames to the east. Nearby Twyford station offers a high-speed London and Heathrow service on the Elizabeth Line and the A4 is close by for quick access to neighbouring Reading, Maidenhead and the option of two different M4 junctions depending on your direction.

There is a wide selection of highly regarded schools in the area, including nearby Reading Blue Coat, Shiplake College – which can be accessed by boat, Queen Anne’s School and The Dolphin School. The Piggott Infant, Junior, Secondary and Sixth Form College is located in nearby Wargrave

Read more
  • Floorplan
  • Map & Street View
Map View Street View
Get Directions
Have a property you want to sell?
Ref: LON210043
Interested in this property?
Offers In Excess Of
£2,800,000