St. Albans Hertfordshire AL4 8LW The Broadway, Wheathampstead

Guide Price
£1,895,000
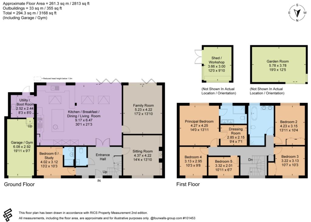
  • 6
  • 3
  • 3
  • Freehold
  • C Energy Efficiency Rating
  • G Council Band
Ref: HPN250032
Interested in this property?
Guide Price
£1,895,000

Features at a glance

  • 3 Reception rooms
  • Cloakroom
  • Kitchen/Breakfast room
  • Utility/Boot Room
  • 6 Bedrooms/2 en suite
  • 3 Bathrooms
  • Garage
  • Outbuildings

A generously proportioned six-bedroom family home in a desirable setting of Gustard Wood.

The house has been completely remodelled and improved by the vendor with beautifully designed interiors presented at an exceptionally high standard, including designer-led landscaped garden stocked with a profusion of native plants.

The property The highlight of the home is the open plan kitchen and living space to the rear, which is bathed in natural light and provides a fabulous space for both entertaining and relaxing as a family. Vast south-facing bifold doors frame views of the rear garden, while the kitchen is beautifully appointed with bespoke cabinetry, painted in heritage Farrow & Ball colours and featuring a statement Bianco Eclipse Quartzite topped island. The remaining surfaces are granite. Adjoining the kitchen is the utility/boot room with a door leading to the barbecue and outdoor entertainment and dining area. Separate from the main living area is a beautifully versatile front drawing room, ideal as a music room, library or peaceful relaxation space. Thoughtfully designed for comfort and quiet enjoyment, it features a charming wood-burning stove, while natural light pours in to create a warm and uplifting ambience. There is a spacious family lounge off the kitchen/dining room with bi-fold doors opening onto an outdoor sitting area, allowing for a seamless transition between the indoors and outdoors in the spring and summer.

The ground floor has been thoughtfully designed for a busy family life, with large spaces for coming together and separate areas to retreat to, to enjoy a quiet moment.

The ground floor also comprises a double bedroom and en suite shower room, which is ideal for visiting grandparents or an au pair. The remaining five bedrooms occupy the first floor, including a generous principal bedroom with a fitted dressing room and an en suite shower room with twin vanity and a walk-in glass-walled shower. The four additional bedrooms are all well-proportioned and share an impressive family bathroom which features a shower and freestanding bathtub. The house benefits from zone-controllable wet underfloor heating, delivering even and efficient warmth to the stone and wood floors throughout.

This property has 0.3 acres of land.

Outside

The house sits on a plot in excess of a third of an acre and enjoys outstanding kerb appeal, approached via a sizeable gravel carriage driveway framed by elegant parterre topiary, offering parking for several cars. An insulated garage provides flexibility for family needs, whether as secure parking, storage or hobby space. There are two electric car charging points.

To the rear, the large south-facing garden is a particular highlight and perfectly designed for family life. An expansive lawn provides ample space for children to play, in addition to a dedicated, bark-mulched children’s play area. The garden has been thoughtfully curated to provide both structure and year-round interest, with elegant beech hedging, pleached hornbeams and sculpted Portuguese laurels creating a sense of privacy and refinement. Specimen trees including Himalayan birch, crab apple and Tibetan cherry add seasonal colour and a profusion of blossoms through spring.

The winter garden ensures vibrancy in the colder months and a woodland walk in other seasons. Natural perennial borders and native and specimen plants provide texture and depth throughout the year, alongside a charming herb garden for those who enjoy growing their own.

A large sun-dappled terrace to the rear of the house is perfect for alfresco entertaining, while the garden studio provides a space for entertaining/games/cinema - it is the ideal space for a growing family or for retreating quietly, with internal and external lights and power connections, an electric radiator and wired-internet making it a perfect year-round space. There is a large separate workshop/outbuilding, previously used to support a beekeeping hobby.

Locally there is excellent access to country walks in and around Gustard Wood including the bluebell woods and a network of footpaths and bridleways - ideal for family outings, walking and enjoying the outdoors. There is also a scenic footpath to Wheathampstead village.

Situation

Location Set within the picturesque surroundings of Upper Gustard Wood and the nearby sought-after village of Wheathampstead, this exceptional home enjoys the perfect balance of idyllic country charm and outstanding connectivity. Just four miles east of ever-popular Harpenden, Wheathampstead offers a thriving village atmosphere with a wonderful sense of community and has been featured in the ‘Best Places to Live 2023’ by the Sunday Times. The village itself provides an excellent array of everyday amenities, including independent shops, a convenience supermarket, pubs and restaurants, a Post Office, and both doctor’s and dental surgeries – all contributing to its self-contained and vibrant appeal. Surrounded by beautiful Hertfordshire countryside, the area is rich in scenic walks and riverside trails, making it as attractive for lifestyle as it is for convenience.

Families with children are well served, with highly regarded independent and state schools nearby, including the prestigious independent options of Aldwickbury School and St Albans High School for Girls (Prep School), both within easy reach. St Albans High School for Girls (Senior School) and St Albans School are approximately six miles away and served by a direct bus route.

Harpenden is within easy reach expanding the offering with an excellent selection of shops, cafés, and supermarkets, together with its mainline station. From here, fast and frequent services reach London St Pancras in approximately 30 minutes, making this an ideal location for commuters seeking a more tranquil home life without compromising on accessibility.

By road, the A1(M) lies less than 3.5 miles away, with the M1 also easily accessible, ensuring superb links to London, the wider motorway network and beyond. In every respect, this is a location that combines village elegance, family practicality and exceptional connectivity. Heathrow, Luton and Stanstead airports are all accessible (40 miles, 7.8 miles and 35 miles respectively).

Distances Wheathampstead 2 miles Harpenden 3.8 miles St. Albans 6.8 miles

Nearby Stations Harpenden Station St Albans City Station

Key Locations Mid-Herts Golf Club Gustard Wood country walks Heartwood Forest Shaw’s Corner (National Trust) Harpenden Common St Albans Cathedral & Abbey Sopwell House, St Albans Verulamium Park Brocket Hall, Welwyn Luton Hoo Estate Hatfield House Knebworth House & Gardens The Grove, Chandler’s Cross Whipsnade Zoo

Nearby Schools St Albans High School for Girls St Helens C of E Primary School Katherine Warrington School Aldwickbury School St Albans Girls School Sandringham

Directions

AL4 8LW what3words: ///remark.again.oasis

Read more
  • Floorplan
  • Virtual Viewing
  • Map & Street View
Map View Street View
Get Directions
Have a property you want to sell?
Ref: HPN250032
Interested in this property?
Guide Price
£1,895,000