Truro Cornwall TR2 4JX Wagg Lane, Probus

Guide Price
£1,600,000
  • 5
  • 5
  • 4
  • Freehold
  • D Energy Efficiency Rating
  • G Council Band
Ref: CSD253183
Interested in this property?
Guide Price
£1,600,000

Features at a glance

  • Handsome Grade II listed Victorian former rectory
  • Five en suite bedrooms
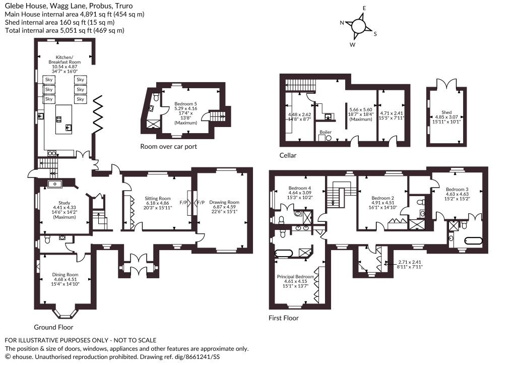
  • C. 5,000 sq ft of flexible accommodation
  • Elegant combination of period features and modern fittings
  • 1 acre of manicured private grounds
  • Sought-after village location
  • Must view

An elegant double-fronted Grade II listed Victorian family home, with 5 en suite bedrooms and 4 reception rooms arranged across nearly 5,000 sq ft. set in c. 1 acre of private gardens within a highly sought-after village.

Built as a rectory in 1839, Glebe House is a double-fronted stuccoed family home, sensitively extended to offer almost 5,000 sq. ft of light-filled, flexible accommodation arranged over three floors. Configured to provide an elegant and practical living and entertaining environment, it combines quality fixtures and fittings with features including some Tudor Gothic styling, sash and casement glazing, generously-proportioned rooms, high ceilings, fine cornicing, and original fireplaces.

The accommodation flows from a vaulted wooden-floored through reception hall with useful storage, a cloakroom and doors to the rear and side aspects. It briefly comprises a dual aspect drawing room and a rear aspect sitting room , both with full-height glazing, a dining room with a full-height front aspect bay window and a wooden-floored study, all four having fireplaces, the study’s with a woodburner. The ground floor accommodation is completed by a modern triple aspect kitchen/breakfast room extension. It has a vaulted ceiling, a range of wall and base units, a large central island, complementary work surfaces and splashbacks, a double Belfast sink, modern integrated appliances and space for a table, numerous sky lanterns and bi-fold doors to the rear garden flooding the whole area with natural light. The property also benefits from generous cellarage with a sink and garden access, suitable for a variety of uses.

On the first floor the property provides a front aspect principal bedroom with fitted wardrobes and an en suite bathroom with twin sinks, freestanding bath and separate shower, a separate fitted dressing room and three further rear aspect double bedrooms, all en suite. A separate staircase neighbouring the kitchen/breakfast room rises to the property’s self-contained fifth bedroom. It has a vaulted ceiling, en suite shower room and is ideal for use as staff accommodation, if required.

This property has 1.05 acres of land.

Outside

Set at the end of a no-through road and having plenty of kerb appeal, the property is approached through electric double wooden gates over a gravelled forecourt providing private parking. The well-maintained garden surrounding the property is laid mainly to areas of lawn bordered by mature trees. To the rear it is split-level and features a useful garden shed, a wraparound paved terrace part-covered by a pergola and steps rising to a landscaped upper garden. The whole enjoys stunning views over the church spire and surrounding countryside.

Situation

The pretty village of Probus sits to the north-east of Truro city centre. It has a church boasting the tallest tower of any parish church in Cornwall, a village hall, pub, farm shop, convenience store, members’ club, GP surgery, sports field, and primary school. The village enjoys easy access to the Roseland Peninsula and Cornwall’s north coast, both offering a wide range of watersports and fine dining.

Nearby Truro offers great facilities including many supermarkets, businesses, first class shopping, restaurants and bars, a cinema, theatre and golf course. There is a choice of state and independent schooling including Truro School, Truro Prep School and Truro High School for Girls. It is on the mainline to London Paddington which takes approx. 4 ½ hours. Cornwall Airport Newquay conveniently offers international and national flights, including flights to London Gatwick taking around an hour.

Services: Connected to mains electricity, gas, water and drainage.

Read more
  • Floorplan
  • Virtual Viewing
  • Map & Street View
Map View Street View
Get Directions
Have a property you want to sell?
Ref: CSD253183
Interested in this property?
Guide Price
£1,600,000