Bracknell Berkshire RG42 6AU Warfield Street, Warfield

Guide Price
£925,000
  • 4
  • 3
  • 3
  • Freehold
  • C Energy Efficiency Rating
  • E Council Band
Ref: ASC250022
Interested in this property?
Guide Price
£925,000

Features at a glance

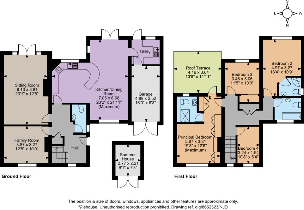
  • Entrance hall
  • Kitchen/dining room
  • Sitting room
  • Family room
  • Principal bedroom with en suite shower room & roof terrace
  • Bedroom 2 with en suite shower room
  • 2 further bedrooms
  • Family bathroom
  • Garage
  • Summer house

An attractive semi-detached four bedroom cottage

Lupin Cottage is a handsome rendered family home offering almost 1,900 sq ft of light-filled, flexible accommodation arranged over two floors, with a 'tardis' like feel to it when inside. Configured to provide a practical and cohesive living and entertaining environment, the property features modern amenities, quality fixtures and fittings including contemporary sanitaryware and elegant décor throughout.

The accommodation flows from a welcoming wooden-floored reception hall with useful storage and a cloakroom. It briefly comprises a generous part-panelled front aspect family room with exposed wooden flooring and a feature fireplace together with a spacious rear aspect sitting room, also with exposed wooden flooring together with a contemporary wall-mounted inset fireplace and full-height glazing incorporating French doors to the rear garden. The large triple aspect kitchen/dining room features flagstone flooring throughout, while the kitchen area offers a range of contemporary wall and base units, a feature curved breakfast bar, complementary work surfaces and splashbacks, and modern integrated appliances. The remaining space provides room for a sizeable table and seating area, with French doors opening onto the rear terrace, and access to a fitted utility room, which connects to both the terrace and the integral garage.

Stairs rise from the reception hall to a first floor landing with further useful storage. It gives access to an L-shaped dual aspect principal bedroom with extensive fitted storage, a fully-tiled en suite shower room and a door to a private 163 sq ft decked and railed roof terrace overlooking the rear garden. The property offers three further well-proportioned bedrooms, one with fitted storage and another with an en suite shower room, together with a family bathroom.

Outside

Having plenty of kerb appeal, the property is approached from the pavement over a low maintenance block-paved forecourt spanning the full width of the property. It provides private parking for multiple vehicles and gives access to the integral garage. The well-maintained enclosed garden to the rear is south-facing. It is laid mainly to level lawn bordered by well stocked flower and shrub beds and features a vaulted timber summer house with French doors to a covered decked terrace, currently used as an office, together with a generous decked terrace accessible from the kitchen/dining and utility rooms, ideal for entertaining and al fresco dining. All in all, these elements create an immersive and restorative outdoor sanctuary.

Situation

The sought-after Berkshire village of Warfield offers two pubs, with everyday amenities such as local shops, a post office and further facilities available in nearby Binfield and Bracknell. The popular towns of Ascot and Windsor are also close at hand, providing a wide selection of shops, restaurants, bars and cultural attractions. Leisure options in the area include golf at Bird Hills Golf Centre, horse racing at Ascot and Windsor, walking and riding in Windsor Great Park, and a variety of health and fitness clubs. Excellent transport connections include the M4 within six miles, while Bracknell provides mainline rail services.

Directions

RG42 6AU

What3words: ///gifted.dogs.minute - brings you to the driveway

Local Authority: Bracknell Forest Council - 01344 352000 Services: Mains electricity, gas, water and drainage Mobile and Broadband checker: Information can be found here https://checker.ofcom.org.uk/en-gb/ Council Tax: E EPC Rating: C

Read more
  • Floorplan
  • Map & Street View
Map View Street View
Get Directions
Have a property you want to sell?
Ref: ASC250022
Interested in this property?
Guide Price
£925,000