Petham Kent CT4 5RN Kenfield

Guide Price
£1,650,000
  • 5
  • 3
  • 4
  • Freehold
  • F Energy Efficiency Rating
  • G Council Band
Ref: CAN250263
Interested in this property?
Guide Price
£1,650,000

Features at a glance

  • Stunning rural location
  • Very accessible to Canterbury for Schools and High Speed trains
  • Stables and paddocks
  • Extenisve grounds
  • Reception hall
  • 4 Reception rooms
  • Kitchen/breakfast room
  • Principal bedroom with en suite bathroom
  • 4 Further bedrooms and 2 further bathrooms
  • Gardens and grounds
  • Extensive garaging
  • 4 Stables, tack room and open paddocks
  • Swimming pool and tennis court

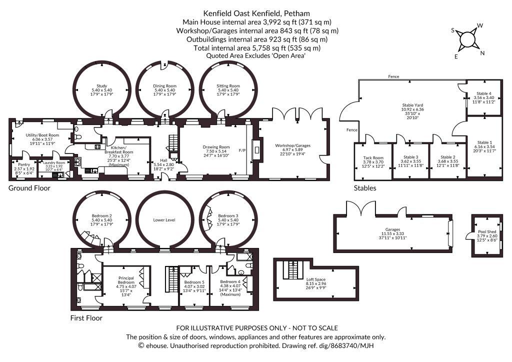
A substantial Grade II listed oast house set in beautiful grounds

Dating from 1837, Kenfield Oast is a magnificent Grade II listed home with three striking roundels and full of wonderful features and character. Comprising almost 4,000 square feet of accommodation, the property sits within delightful gardens in a peaceful and picturesque Kent countryside setting.

The main range of the house connects with the stunning spaces withing the roundels, creating a very comfortable family home. The reception rooms include a well-proportioned sitting room with a fireplace, while the roundels provide further reception space including a useful study and a charming drawing room, as well as a formal dining room with a dramatic vaulted ceiling.

The welcoming kitchen provides the heart of the house with traditional wooden cabinetry and mellow herringbone brick flooring arranged around an Aga. The adjoining utility room, pantry and boot room provide the excellent, practical spaces so essential in a country house.

Upstairs there are five well-proportioned bedrooms, two of which are located in the roundels, and include a generous principal suite with built-in wardrobes and an en suite bathroom. The remaining bedrooms are served by a family bathroom and family shower room. Stairs continue from the first-floor landing to a useful loft.

This property has 6 acres of land.

Outside

The property is set within delightful gardens and grounds of about six acres. At the entrance, the gravel driveway leads to the house and provides plenty of parking, as well as access to the garaging block.

The gardens to both the front and rear include beautiful lawns, an array of mature trees, established hedgerows and colourful flowering perennials. There is also a large terrace for al fresco dining, as well as a discreetly located swimming pool and tennis court set on rising ground with beautiful views. Beyond the gardens there is stabling for four horses, with open paddocks.

Situation

Kenfield enjoys a peaceful rural setting on the edge of Petham, surrounded by rolling Kent countryside yet within easy reach of Canterbury. Local amenities are available in the village and nearby Chartham, while Canterbury provides an array of shops, restaurants, and cultural attractions. Nearby independent schools include Kent College, St Edmund’s, and The King’s School, all within convenient reach.

Transport links are excellent, with Canterbury West offering high-speed services to London St Pancras in under an hour, and the A2 and M2 providing swift road access to London, the coast, and airports.

Directions

CT4 5RN

///fetches.clearcut.sounding

Read more
  • Floorplan
  • Virtual Viewing
  • Map & Street View
Map View Street View
Get Directions
Have a property you want to sell?
Ref: CAN250263
Interested in this property?
Guide Price
£1,650,000